Załączniki do Umowy na Wynajem 2010 - pol_ang.cdr

Transkrypt

Załączniki do Umowy na Wynajem 2010 - pol_ang.cdr
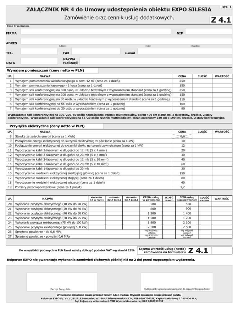
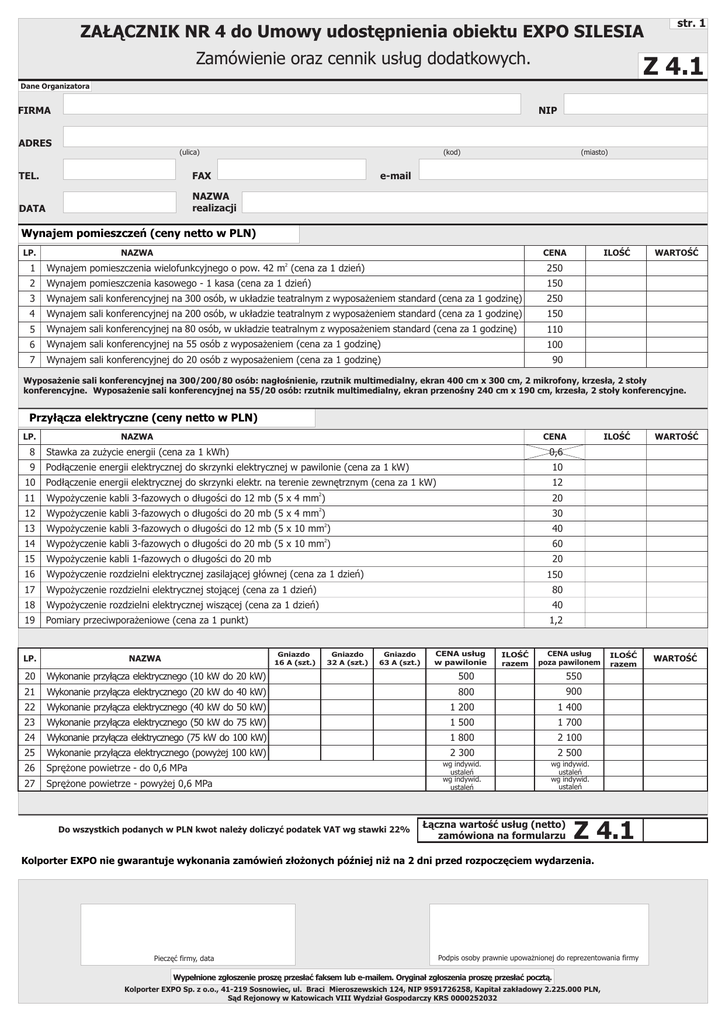
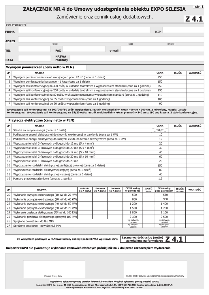
ZAŁĄCZNIK NR 4 do Umowy udostępnienia obiektu EXPO SILESIA
Zamówienie oraz cennik usług dodatkowych.
str. 1
Z 4.1
Dane Organizatora
FIRMA
NIP
ADRES
(ulica)
TEL.
FAX
DATA
NAZWA
realizacji
(kod)
(miasto)
e-mail
Wynajem pomieszczeń (ceny netto w PLN)
LP.
NAZWA
ILOŚĆ
CENA
1
Wynajem pomieszczenia wielofunkcyjnego o pow. 42 m2 (cena za 1 dzień)
250
2
Wynajem pomieszczenia kasowego - 1 kasa (cena za 1 dzień)
150
250
3
Wynajem sali konferencyjnej na 300 osób, w układzie teatralnym z wyposażeniem standard (cena za 1 godzinę)
4
Wynajem sali konferencyjnej na 200 osób, w układzie teatralnym z wyposażeniem standard (cena za 1 godzinę)
150
5
Wynajem sali konferencyjnej na 80 osób, w układzie teatralnym z wyposażeniem standard (cena za 1 godzinę)
110
6
Wynajem sali konferencyjnej na 55 osób z wyposażeniem (cena za 1 godzinę)
100
7
Wynajem sali konferencyjnej do 20 osób z wyposażeniem (cena za 1 godzinę)
90
WARTOŚĆ
Wyposażenie sali konferencyjnej na 300/200/80 osób: nagłośnienie, rzutnik multimedialny, ekran 400 cm x 300 cm, 2 mikrofony, krzesła, 2 stoły
konferencyjne. Wyposażenie sali konferencyjnej na 55/20 osób: rzutnik multimedialny, ekran przenośny 240 cm x 190 cm, krzesła, 2 stoły konferencyjne.
Przyłącza elektryczne (ceny netto w PLN)
LP.
8
9
10
NAZWA
CENA
Stawka za zużycie energii (cena za 1 kWh)
0,6
Podłączenie energii elektrycznej do skrzynki elektrycznej w pawilonie (cena za 1 kW)
10
Podłączenie energii elektrycznej do skrzynki elektr. na terenie zewnętrznym (cena za 1 kW)
12
2
11
Wypożyczenie kabli 3-fazowych o długości do 12 mb (5 x 4 mm )
20
12
Wypożyczenie kabli 3-fazowych o długości do 20 mb (5 x 4 mm2)
30
13
Wypożyczenie kabli 3-fazowych o długości do 12 mb (5 x 10 mm2)
40
14
Wypożyczenie kabli 3-fazowych o długości do 20 mb (5 x 10 mm2)
60
15
Wypożyczenie kabli 1-fazowych o długości do 20 mb
16
Wypożyczenie rozdzielni elektrycznej zasilającej głównej (cena za 1 dzień)
17
Wypożyczenie rozdzielni elektrycznej stojącej (cena za 1 dzień)
ILOŚĆ
20
150
80
18
Wypożyczenie rozdzielni elektrycznej wiszącej (cena za 1 dzień)
40
19
Pomiary przeciwporażeniowe (cena za 1 punkt)
1,2
LP.
NAZWA
Gniazdo
16 A (szt.)
Gniazdo
32 A (szt.)
Gniazdo
63 A (szt.)
CENA usług
w pawilonie
ILOŚĆ
razem
CENA usług
poza pawilonem
20
Wykonanie przyłącza elektrycznego (10 kW do 20 kW)
500
550
21
Wykonanie przyłącza elektrycznego (20 kW do 40 kW)
800
900
22
Wykonanie przyłącza elektrycznego (40 kW do 50 kW)
1 200
1 400
23
Wykonanie przyłącza elektrycznego (50 kW do 75 kW)
1 500
1 700
2 100
24
Wykonanie przyłącza elektrycznego (75 kW do 100 kW)
1 800
25
Wykonanie przyłącza elektrycznego (powyżej 100 kW)
2 300
2 500
26
Sprężone powietrze - do 0,6 MPa
27
Sprężone powietrze - powyżej 0,6 MPa
wg indywid.
ustaleń
wg indywid.
ustaleń
wg indywid.
ustaleń
wg indywid.
ustaleń
Do wszystkich podanych w PLN kwot należy doliczyć podatek VAT wg stawki 22%
Łączna wartość usług (netto)
zamówiona na formularzu
ILOŚĆ
razem
Z 4.1
Kolporter EXPO nie gwarantuje wykonania zamówień złożonych później niż na 2 dni przed rozpoczęciem wydarzenia.
Pieczęć firmy, data
WARTOŚĆ
Podpis osoby prawnie upoważnionej do reprezentowania firmy
Wypełnione zgłoszenie proszę przesłać faksem lub e-mailem. Oryginał zgłoszenia proszę przesłać pocztą.
Kolporter EXPO Sp. z o.o., 41-219 Sosnowiec, ul. Braci Mieroszewskich 124, NIP 9591726258, Kapitał zakładowy 2.225.000 PLN,
Sąd Rejonowy w Katowicach VIII Wydział Gospodarczy KRS 0000252032
WARTOŚĆ
ZAŁĄCZNIK NR 4 do Umowy udostępnienia obiektu EXPO SILESIA
Zamówienie oraz cennik usług dodatkowych.
str. 2
Z 4.2
Dane Organizatora
FIRMA
NIP
ADRES
(ulica)
TEL.
FAX
DATA
NAZWA
realizacji
(kod)
(miasto)
e-mail
Inne media i usługi (ceny netto w PLN)
LP.
NAZWA
ILOŚĆ
CENA
Dostęp bezprzewodowy do Internetu - 1 przyłącze
180
29
Doprowadzenie wody z odpływem w pawilonie (cena za 1 punkt)
250
30
Doprowadzenie wody z odpływem na terenie zewnętrznym (cena za 1 punkt)
300
31
Stawka za zużycie gazu (cena za 1 m3)
2,50
32
Stawka za zużycie wody (cena za 1 m3)
28
9,34
2
33
Sprzątanie powierzchni stoisk w trakcie imprezy (cena za 1 m /dzień)
34
Wywóz śmieci (cena za 1 kontener o obj. 30 m3)
2,0
1 200
35
Wywóz śmieci (cena za 1 kontener o obj. 1100 L.)
36
Wynajem powierzchni magazynowej (cena za 1 m2/dzień)
37
Przedłużenie godzin funkcjonowania pawilonu w okresie montażu i demontażu (cena za 1 godzinę)
100
10
600
38
Ochrona w godz. 6.00 - 22.00 (cena za 1 osobo/godzinę)
22
39
Ochrona w godz. 22.00 - 6.00 (cena za 1 osobo/godzinę)
25
40
Uruchomienie punktu medycznego (cena za 1 godz.)
41
Obowiązkowy dyżur strażaka w trakcie imprezy (cena za dzień - 8 godz.)
400
42
Hostessa (cena za 1 dzień)
220
43
Wypożyczenie aparatury multimedialnej (rzutnik + ekran) (cena za dzień - 8 godz.)
300
44
Wypożyczenie flagi narodowej na czas trwania imprezy(cena za 1 sztukę, w tym 40 PLN kaucji)
45
Zawieszenie i przymocowanie do konstrukcji stałej pawilonu elementów Wystawcy - cena za 1 punkt
700
46
Udostępnienie radiowęzła z wyposażeniem wraz z opłatą ZAiKS - cena za 1 dzień
230
Do wszystkich podanych w PLN kwot należy doliczyć podatek VAT wg stawki 22%
300
60
Łączna wartość usług (netto)
zamówiona na formularzu
Z 4.2
Kolporter EXPO nie gwarantuje wykonania zamówień złożonych później niż na 2 dni przed rozpoczęciem wydarzenia.
Pieczęć firmy, data
Podpis osoby prawnie upoważnionej do reprezentowania firmy
Wypełnione zgłoszenie proszę przesłać faksem lub e-mailem. Oryginał zgłoszenia proszę przesłać pocztą.
Kolporter EXPO Sp. z o.o., 41-219 Sosnowiec, ul. Braci Mieroszewskich 124, NIP 9591726258, Kapitał zakładowy 2.225.000 PLN,
Sąd Rejonowy w Katowicach VIII Wydział Gospodarczy KRS 0000252032
WARTOŚĆ