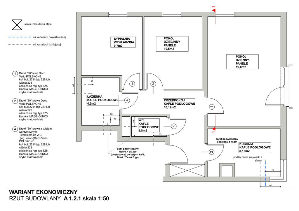
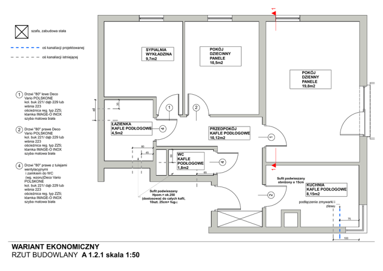
projekt 121 RZUT BUD..

Transkrypt

projekt 121 RZUT BUD..
1
szafa, zabudowa stała
oś kanaliacji projektowanej
POKÓJ
DZIECINNY
PANELE
10,5m2
SYPIALNIA
WYKŁADZINA
9,7m2
oś kanaliacji istniejącej
POKÓJ
DZIENNY
PANELE
19,8m2
WC
KAFLE
PODŁOGOWE
1,8m2
1
50
45
65
Sufit podwieszany
obniżony o 15cm
Sufit podwieszany
Hpom.= ok.250
(dostosować do całych kafli,
10szt. 25cm+ fuga)
2
wentylacyjnymi
i zamkiem do WC
(wg. wzoru)Deco Vario
POLSKONE
kol. buk 221/ dąb 229 lub
wiśnia 223
ościeżnica reg. typ ZZ5;
klamka IMAGE-O INOX
szyba matowa biała
80
4
4 Drzwi "80" prawe z tulejami
PRZEDPOKÓJ
KAFLE PODŁOGOWE
10,12m2
1
ŁAZIENKA
KAFLE PODŁOGOWE
4,5m2
2
4
2
Drzwi "80" prawe Deco
Vario POLSKONE
kol. buk 221/ dąb 229 lub
wiśnia 223
ościeżnica reg. typ ZZ5;
klamka IMAGE-O INOX
szyba matowa biała
1
80
Vario POLSKONE
kol. buk 221/ dąb 229 lub
wiśnia 223
ościeżnica reg. typ ZZ5;
klamka IMAGE-O INOX
szyba matowa biała
35
1 Drzwi "80" lewe Deco
KUCHNIA
KAFLE PODŁOGOWE
8,15m2
podłączenie zmywarki i
zlewu
75
100
WARIANT EKONOMICZNY
RZUT BUDOWLANY A 1.2.1 skala 1:50
1
szafa, zabudowa stała
oś kanaliacji projektowanej
POKÓJ
DZIECINNY
PANELE
10,5m2
SYPIALNIA
WYKŁADZINA
9,7m2
oś kanaliacji istniejącej
POKÓJ
DZIENNY
PANELE
19,8m2
WC
KAFLE
PODŁOGOWE
1,8m2
1
50
45
65
Sufit podwieszany
obniżony o 15cm
Sufit podwieszany
Hpom.= ok.250
(dostosować do całych kafli,
10szt. 25cm+ fuga)
2
wentylacyjnymi
i zamkiem do WC
(wg. wzoru)Deco Vario
POLSKONE
kol. buk 221/ dąb 229 lub
wiśnia 223
ościeżnica reg. typ ZZ5;
klamka IMAGE-O INOX
szyba matowa biała
80
4
4 Drzwi "80" prawe z tulejami
PRZEDPOKÓJ
KAFLE PODŁOGOWE
10,12m2
1
ŁAZIENKA
KAFLE PODŁOGOWE
4,5m2
2
4
2
Drzwi "80" prawe Deco
Vario POLSKONE
kol. buk 221/ dąb 229 lub
wiśnia 223
ościeżnica reg. typ ZZ5;
klamka IMAGE-O INOX
szyba matowa biała
1
80
Vario POLSKONE
kol. buk 221/ dąb 229 lub
wiśnia 223
ościeżnica reg. typ ZZ5;
klamka IMAGE-O INOX
szyba matowa biała
35
1 Drzwi "80" lewe Deco
KUCHNIA
KAFLE PODŁOGOWE
8,15m2
podłączenie zmywarki i
zlewu
75
100
WARIANT EKONOMICZNY
RZUT BUDOWLANY A 1.2.1 skala 1:50