Rys. A1

Transkrypt

Rys. A1
1
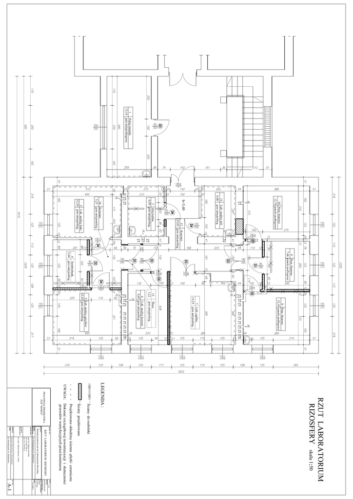
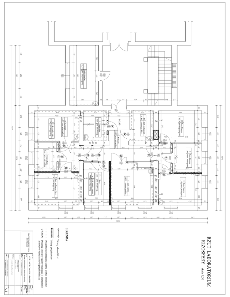
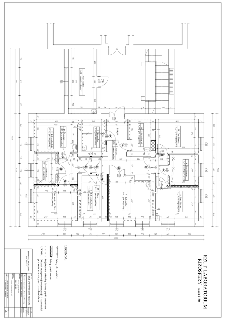
Pokój śniadań
15,14 gres antypoślizgowy
12 Korytarz
15,05 gres antypoślizg.
Lab. analizy żeli
gres antypoślizg.
10 Pom. biurowe
12,78 panele podłogowe
11
6,00
h=3,40
2 Zmywalnia
6,30 gres antypoślizg.
14 Korytarz
5,25 gres antypoœlizg.
3 Lab. analizy bakt.
12,28 gres antypoślizg.
Symbiobank
gres antypoślizg.
9 Pom. biurowe
7,46 panele pod³ogowe
4
5,64
13
1,22
8 Pom. biurowe
12,10 panele podłogowe
7 Lab. ogólne
15,25 gres antypoślizg.
Śluza
gres antypoślizg.
6 Lab. analizy korzeni
9,65 gres antypoślizg.
5 Lab. analizy grzybów
12,81 gres antypoślizg.
RZUT LABORATORIUM
RIZOSFERY skala 1 50
RZUT LABORATORIUM RIZOSFERY
A-1
05-2009 r.
projekt
budowlany
architektoniczno
-konstrukcyjna
1:50
Dokonać szczegółowej inwentaryazcji i skuteczności
przewdów wentylacyjnych przez kominiarza
Projektowane okładziny ścienne -płytki ceramiczne
Ściany projektowane
Ściany do rozbiórki
LEGENDA :
UWAGA:
PRACOWNIA PROJEKTOWA
ZUB "MAREX"
ul. Pomologiczna 18, Skierniewice
Remont pomieszczeń na Laboratorium Rizosfery
mgr inż. Tadeusz Gruchała
upr. nr 36/85 Sk-ce
upr. nr 11/89 Sk-ce
inż. arch. Adriana Starosta - Szulc
Instytut Sadownictwa i Kwiaciarstwa
ul. Pomologiczna 18, Skierniewice