Geometria wykreślna WYDZIAŁ ARCHITEKTURY, BUDOWNICTWA

Transkrypt

Geometria wykreślna WYDZIAŁ ARCHITEKTURY, BUDOWNICTWA
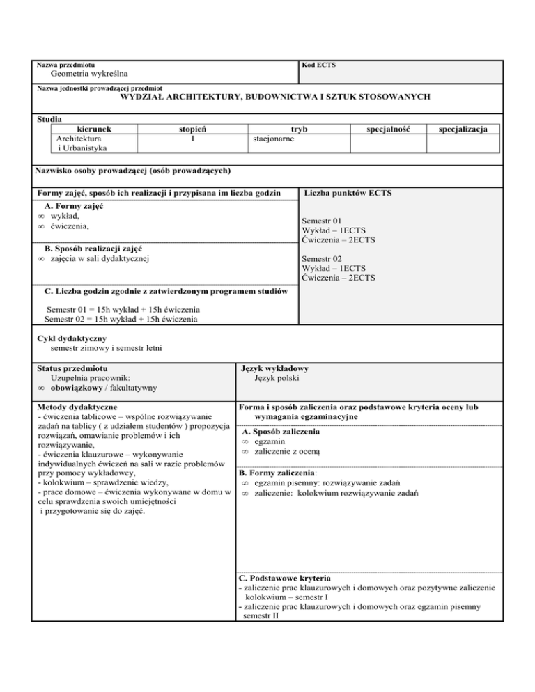
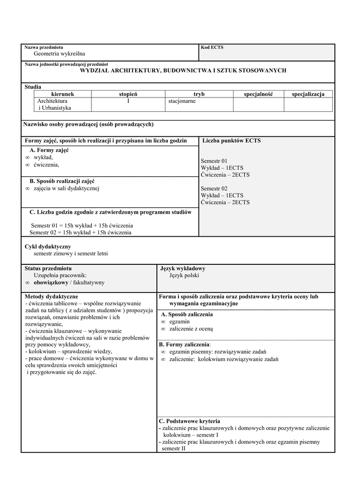
Nazwa przedmiotu
Kod ECTS
Geometria wykreślna
Nazwa jednostki prowadzącej przedmiot
WYDZIAŁ ARCHITEKTURY, BUDOWNICTWA I SZTUK STOSOWANYCH
Studia
kierunek
Architektura
i Urbanistyka
stopień
I
tryb
stacjonarne
specjalność
specjalizacja
Nazwisko osoby prowadzącej (osób prowadzących)
Formy zajęć, sposób ich realizacji i przypisana im liczba godzin
A. Formy zajęć
• wykład,
• ćwiczenia,
Liczba punktów ECTS
Semestr 01
Wykład – 1ECTS
Ćwiczenia – 2ECTS
B. Sposób realizacji zajęć
• zajęcia w sali dydaktycznej
Semestr 02
Wykład – 1ECTS
Ćwiczenia – 2ECTS
C. Liczba godzin zgodnie z zatwierdzonym programem studiów
Semestr 01 = 15h wykład + 15h ćwiczenia
Semestr 02 = 15h wykład + 15h ćwiczenia
Cykl dydaktyczny
semestr zimowy i semestr letni
Status przedmiotu
Uzupełnia pracownik:
• obowiązkowy / fakultatywny
Język wykładowy
Język polski
Metody dydaktyczne
Forma i sposób zaliczenia oraz podstawowe kryteria oceny lub
- ćwiczenia tablicowe – wspólne rozwiązywanie
wymagania egzaminacyjne
zadań na tablicy ( z udziałem studentów ) propozycja
A. Sposób zaliczenia
rozwiązań, omawianie problemów i ich
• egzamin
rozwiązywanie,
• zaliczenie z oceną
- ćwiczenia klauzurowe – wykonywanie
indywidualnych ćwiczeń na sali w razie problemów
B. Formy zaliczenia:
przy pomocy wykładowcy,
- kolokwium – sprawdzenie wiedzy,
• egzamin pisemny: rozwiązywanie zadań
- prace domowe – ćwiczenia wykonywane w domu w • zaliczenie: kolokwium rozwiązywanie zadań
celu sprawdzenia swoich umiejętności
i przygotowanie się do zajęć.
C. Podstawowe kryteria
- zaliczenie prac klauzurowych i domowych oraz pozytywne zaliczenie
kolokwium – semestr I
- zaliczenie prac klauzurowych i domowych oraz egzamin pisemny
semestr II
Określenie przedmiotów wprowadzających wraz z wymogami wstępnymi
Podstawowe wiadomości z zakresu geometrii euklidesowej, umiejętność sporządzania szkicu odręcznego.
Cele przedmiotu
Celem przedmiotu jest kształcenie u studentów umiejętności odwzorowywania brył przestrzennych na płaszczyźnie
rysunku, przygotowanie geometrycznych podstaw świadomego kształtowania obiektu budowlanego, praktycznego
korzystania z odwzorowań powierzchni terenu, nauczanie praktycznych, wykreślnych metod wizualizacji obiektów
budowlanych, rozwijanie wyobraźni przestrzennej.
Treści programowe
wykłady
- Niezmienniki rzutu równoległego. Rzut równoległy – aksonometria.
- Metoda Monge’a – odwzorowanie i restytucja. Odwzorowanie podstawowych elementów.
- Odwzorowanie wielokątów. Rzutnia boczna.
- Przynależność elementów. Rzut równoległy.
- Elementy wspólne.
- Przynależność elementów.
- Rzut równoległy ukośny (cienie).
- Elementy prostopadłe. Obroty.
- Transformacja układu rzutni.
- Wielościany. Rozwinięcia wielościanów.
- Dachy. Kład połaci dachowych.
- Rzuty okręgu i sfery.
- Powierzchnie stopnia drugiego. Rozwinięcia. Powierzchnia stożkowa.
- Powierzchnie stopnia drugiego. Rozwinięcia. Powierzchnia walcowa.
- Rzut cechowany. Odwzorowanie powierzchni terenu.
ćwiczenia
- Niezmienniki rzutu równoległego. Rzut równoległy – aksonometria.
- Metoda Monge’a – odwzorowanie i restytucja. Odwzorowanie podstawowych elementów.
- Odwzorowanie wielokątów. Rzutnia boczna.
- Przynależność elementów. Rzut równoległy.
- Elementy wspólne.
- Przynależność elementów.
- Rzut równoległy ukośny (cienie).
- Elementy prostopadłe. Obroty.
- Transformacja układu rzutni.
- Wielościany. Rozwinięcia wielościanów.
- Dachy. Kład połaci dachowych.
- Rzuty okręgu i sfery.
- Powierzchnie stopnia drugiego. Rozwinięcia. Powierzchnia stożkowa.
- Powierzchnie stopnia drugiego. Rozwinięcia. Powierzchnia walcowa.
- Rzut cechowany. Odwzorowanie powierzchni terenu.
Wykaz literatury
A. Literatura wymagana do ostatecznego zaliczenia zajęć (zdania egzaminu):
BŁACH Anna : „Inżynierska geometria wykreślna podstawy i zastosowania”. Wyd. Pol. Śl. Gliwice
BŁACH Anna, PAWLAK Anita: „Inżynierska geometria wykreślna – zbiór zadań”. Wyd. Pol. Śl. Gliwice
BŁACH Anna, DUDZIK Piotr : „Wybrane definicje i konstrukcje geometryczne. Planimetria i stereometria.”. Wyd. Pol. Śl.
Gliwice
BOGACZYK Tomasz, ROMASZKIEWICZ – BIAŁAS Teresa : „13 wykładów z geometrii wykreślnej”, Oficyna
Wydawnicza Pol. Wrocławskiej”. Oficyna Wydawnicza Pol. Wrocławskiej, Wrocław 2006
GROCHOWSKI Bogusław : „Geometria wykreślna z perspektywą stosowaną”. PWN Warszawa 1995
B. Literatura uzupełniająca
JANKOWSKI Wiktor: „Geometria wykreślna”. PWN Warszawa 1971
OTTO Franciszek i Edward: „Podręcznik geometrii wykreślnej”. PWN Warszawa 1994
KANIA Andrzej: „Geometria wykreślna z grafiką inżynierską. Część II – Rzuty Monge’a”. Wyd. Pol. Śl. Gliwice
PRZEWŁOCKI Stefan: „Geometria wykreślna w budownictwie”. Arkady 1997
WOJCIECHOWSKI Lech: „Rysunek budowlany” (seria dokumentacja budowlana – db 1)”. WSiP SA 1999
Efekty uczenia się
- zna metody potrzebne do
pracy z zawodzie inżyniera,
- umie korzystać ze
zdobytej wiedzy i stosować
ją w praktyce,
- zna zależności pomiędzy
poszczególnymi naukami
i potrafi swobodnie je
łączyć,
- ma świadomość swoich
kompetencji oraz stale je
podnosi
Wiedza
1. Zna metody odwzorowań graficznych elementów przestrzennych stosowanych w praktyce
inżynierskiej.
2. Zna związki i zależności wynikające z wzajemnych położeń elementów przestrzennych.
3. Ma uporządkowaną wiedzę w zakresie podstaw logiki, algebry liniowej i geometrii analitycznej,
rachunku różniczkowego, całkowego i prawdopodobieństwa oraz ich zastosowań.
Umiejętności
1. Umie odczytać rysunki architektoniczne, budowlane i geodezyjne oraz potrafi sporządzić
dokumentację graficzną w środowisku wybranych programów CAD.
2. Potrafi przeprowadzić analizę geometryczną obiektów budowlanych na podstawie dokumentacji
rysunkowej.
3. Potrafi rozwiązywać zadania z zakresu konstruowania obiektów geometrycznych.
Kompetencje społeczne (postawy)
1.Potrafi pracować samodzielnie oraz współpracować w zespole nad wyznaczonym zadaniem.
2.Ma świadomość konieczności rozwijania wyobraźni przestrzennej i stałego podnoszenia
kompetencji.
3.Samodzielnie uzupełnia i poszerza wiedzę w zakresie nowoczesnych procesów i technologii.
4.Jest odpowiedzialny za rzetelność uzyskanych wyników swoich prac i ich interpretację.