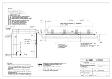
załącznik_nr9c_rys4

Transkrypt

załącznik_nr9c_rys4
LEGENDA:
MN - proj. mieszadło napowietrzające,
MP1/1-2 - proj.hydrostatyczny miernik poziomu,
MP2 - proj.ultradźwiękowy miernik poziomu,
P - proj. przepływomierz elektromagnetycznym DN100,
PA - proj. przelew awaryjny DN150,
PŚ - proj. pompa Q=65 m³/h, ∆H=8m,
ZE1, ZE2 - proj. zasuwa nożowa DN100 z napędem elektrycznym,
ZK1, ZK2 - proj. złącze strażackie z przyłączem kołnierzowym,
ZR1 - proj. zasuwa nożowa DN200 zprzedłużaczem wrzeciona z kółkiem
ręcznym,
ZR2 - proj. zasuwa z płytą odcinającą DN100 sterowana ręcznie,
ZR4 - proj. zasuwa nożowa DN200 sterowana ręcznie,
ZR5,..ZR7 - proj. zasuwa nożowa DN80 sterowana ręcznie,
ZR8 - proj. zasuwa nożowa DN100 sterowana ręcznie,
ZR9 - proj. zawór odwadniający DN50 sterowana ręcznie,
MP1/2
1,5%
DN100
Zbiornik retencyjno-uśredniajacy nr 1 (projektowany)
V = 30 m³, PE SN2
istn.barierki
ochronne
Istn. komora retencyjna
(proj.remont)
V = 30 m³,
ZE1
ZR8
P
3%
ZR5
3%
MP2
PA
przejście szczelne
1,5%
PE Ø90
3%
KO DN100
ZR1
3%
ZR2
rurociąg tłoczny ścieków
prowadzić na głębokości 1,5
m ze spadkiem w kierunku
komory retencyjnej
płyta betonowa 3000mm x 1200mm gr. 15 cm,
podsypka piaskowa gr. 5 cm,
podbudowa z kruszywa łamanego 0/31,5 mm gr. 20 cm,
warstwa odsączająca z piasku gr. 15 cm
MP1/1
P1
ścieki
do przepompowni PŚ
(istn. kolektor)
MN
ul. Staroszkolna 16/28
85 - 209 BYDGOSZCZ
Gmina Łabiszyn
UWAGA:
1.Odcinki instalacji oraz armature odcinającą i regulującą
naziemną wykonać w izolacji termicznej - wełna mineralna gr.
10 cm+ kabel grzewczy 10W/mb w płaszczu z blachy
aluminiowej.
2.Odcinki instalacji prowadzoną w strefie przemarzania
zaizolować termicznie za pomocą gotowych otulin z pianki
poliuretanowej gr. 5 cm
3.Przejście przez ścianę komory retencyjnej wykonać jako
szczelne przy wykorzystaniu łańcuchów uszczelniających
- proj. przewód kan. ciśnieniowej napełniania zbiornikównr 1 i nr 2,
- proj. odwodnienie grawitacyjne zbiorników nr 1 i nr 2,
- proj. przelew awaryjny,
- proj. przewód łączący zbiornik nr 1 i zbiornik nr 2,
- proj. odwodnienie,
- istn. kolektor grawitacyjny ścieków dowożonych,
- istn. zewnętrzna instalacjia wodociągowa
ul. Plac 1000-lecia 1, 89-210 Łabiszyn
Uporządkowanie systemu wodno-ściekowego
dla miasta Łabiszyna
- Oczyszczalnia Ścieków
Funkcja
Imię i nazwisko
Specjalność
Projektant
mgr inż. Marek Pianowski
Ochr. środ.
Inst. sanit.
Punkt zlewny ścieków dowożonych
- przekrój A:A
Nr uprawnień
Podpisy
GP-KZ-7342/35/94
GP-KZ-7342/213/92
Opracowała mgr inż. Marta Nowak
Opracowała mgr inż. Marlena Bąk
Faza:
PB-W
Skala:
1:50
Data:
07.2014
Branża:
ochr. środ.
Nr kontraktu:
Nr
rysunku:
4