załącznik_nr9c_rys6
Transkrypt
										załącznik_nr9c_rys6
                                        
                                        
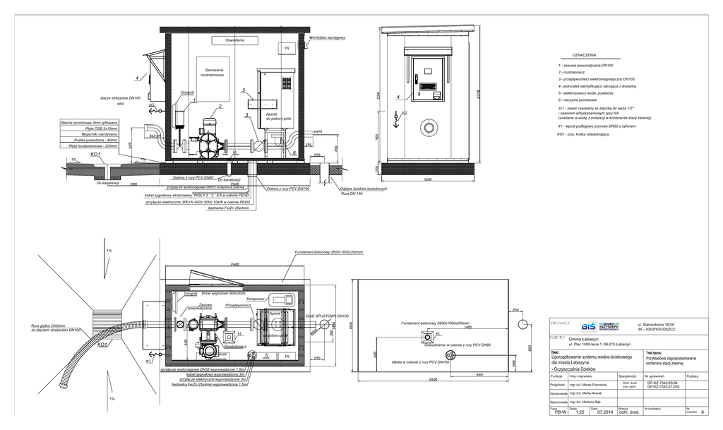
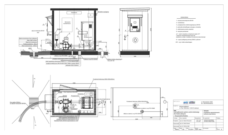
                                Wentylator wyciągowy Oświetlenie TR OZNACZENIA: 1 - zasuwa pneumatyczna DN100 Sterowanie rozdrabniacza 4 2 - rozdrabniacz 3 - przepływomierz elektromagnetyczny DN100 4 - jednostka identyfikująco sterująca z drukarką 5 Grzejnik złącze strażackie DN100 5 - elektrozawory woda, powietrze 4 1 wlot zc1 6 - naczynie pomiarowe 2 3 zc1 - zawór czerpalny ze złączką do węża 1/2" i zaworem antyskażeniowym typu HA (zasilanie w wodę z instalacji w kontenerze stacji zlewnej) zc1 Aparat do poboru prób Blacha aluminiowa 3mm ryflowana k1 - wpust podłogowy pionowy DN50 z syfonem Płyta OSB 2x18mm wylot Wsporniki nierdzewne KO1 - proj. kratka odwadniająca Pustka powietrzna - 40mm Płyta fundamentowa - 200mm 6 k1 KO1 1% 1% Osłona z rury PCV DN80 Do kanalizacji Do kanalizacji przyłącze wodociągowe DN32 ocieplona pianką Osłona z rury PCV DN160 kabel sygnałowy ekranowany YKSLY 2 ´ 2 ´ 0,5 w osłonie PEHD Odpływ ścieków dowożonych Rura DN 160 przyłącze elektryczne 3PE+N 400V 50Hz 10kW w osłonie PEHD bednarka Fe/Zn 25x4mm 1% Fundament betonowy 2600x1600x200mm Grzejnik Drzwi wejściowe 900x2000 Kompresor Zasuwa pneumatyczna Przepływomierz Aparat CIĄG SPUSTOWY DN100 Fundament betonowy 2600x1600x200mm Rura giętka 2500mm ze złączem strażackim DN100 k1 do poboru prób ul. Staroszkolna 16/28 85 - 209 BYDGOSZCZ k1 Gmina Łabiszyn KO1 Rozdrabniacz zc1 rozdrabniacza Sterowanie przyłącze wodociągowe DN32 wyprowadzone 1,5m kabel sygnałowy wyprowadzony 3m przyłącze elektryczne wyprowadzone 3m bednarka Fe/Zn 25x4mm wyprowadzona 1,5m ul. Plac 1000-lecia 1, 89-210 Łabiszyn Odwodnienie w osłonie z rury PCV DN80 5 TR Media w osłonie z rury PCV DN160 Uporządkowanie systemu wodno-ściekowego dla miasta Łabiszyna - Oczyszczalnia Ścieków Funkcja Imię i nazwisko Specjalność Projektant mgr inż. Marek Pianowski Ochr. środ. Inst. sanit. Przykładowe zagospodarowanie kontenera stacji zlewnej Nr uprawnień Podpisy GP-KZ-7342/35/94 GP-KZ-7342/213/92 Opracowała mgr inż. Marta Nowak 1% Opracowała mgr inż. Marlena Bąk Faza: PB-W Skala: 1:25 Data: 07.2014 Branża: ochr. środ. Nr kontraktu: Nr rysunku: 6
 doc
                    doc download
															download                                                         Reklamacja
															Reklamacja                                                         
		     
		     
		     
		     
		     
		     
		     
		     
		     
		    