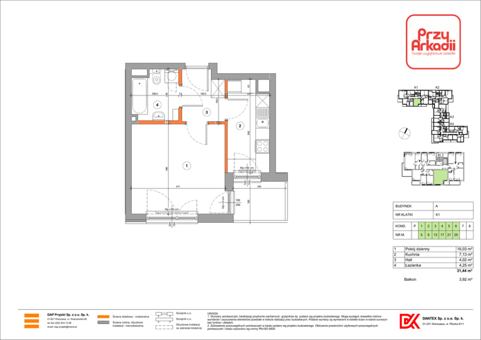
1 2 3 4 1 Pokój dzienny 16,03 m² 2 Kuchnia 7,13 m² 3 Hall

Transkrypt

1 2 3 4 1 Pokój dzienny 16,03 m² 2 Kuchnia 7,13 m² 3 Hall
63
228
12
190,5
8
K2
187
185,5
208,5
K1
4
3
8
12
K3
K4
348
2
K1
120
Hp=90 cm
150
396
1
240
180
100
150
225
Hp=90 cm
226
Hp=0 cm
411
BUDYNEK
A
NR KLATKI
K1
KOND.
P
NR M.
1
2
3
4
Grzejnik c.o.
Ściana działowa - rozbieralna
01-821 Warszawa, ul. Swarzewska 66
tel./fax (022) 833 15 86
email: [email protected]
Ściana nośna, obudowa
instalacji - nierozbieralna
Grzejnik c.o.
Obudowa instalacji
(w zakresie lokatora)
UWAGA:
1. Wymiary pomieszczeń, lokalizację przyborów sanitarnych, grzejników itp. podano wg projektu budowlanego. Mogą wystąpić niewielkie różnice
wymiarów i usytuowania elementów powstałe w trakcie realizacji prac budowlanych. Podane wymiary są wymiarami w świetle ścian w stanie surowym
bez tynków i okładzin.
2. Zestawienie poszczególnych pomieszczeń w lokalu podano wg projektu budowlanego. Obliczenie powierzchni użytkowych poszczególnych
pomieszczeń i lokalu wykonano wg normy PN-ISO 9836.
2
3
5
9
13 17 21 25
Pokój dzienny
Kuchnia
Hall
Łazienka
Balkon
DAP Projekt Sp. z o.o. Sp. k.
1
4
5
6
7
8
16,03 m²
7,13 m²
4,02 m²
4,25 m²
31,44 m²
3,92 m²
DANTEX Sp. z o.o. Sp. k.
01-231 Warszawa, ul. Płocka 9/11