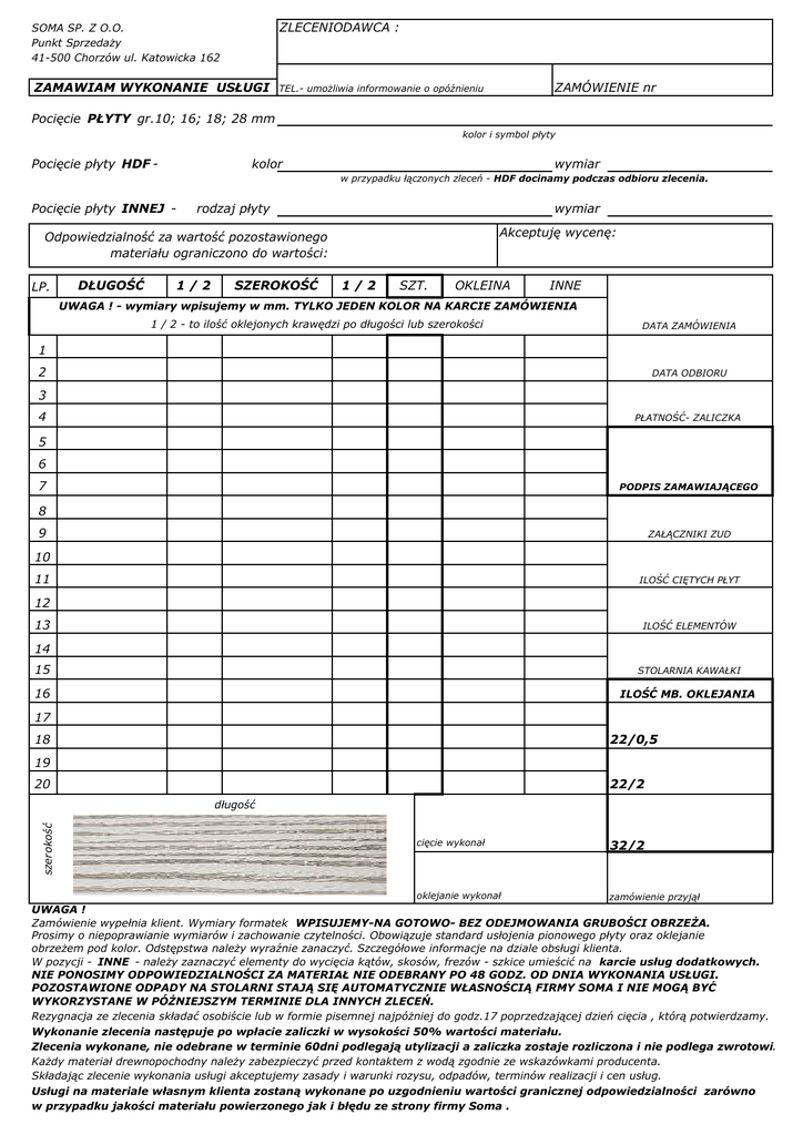
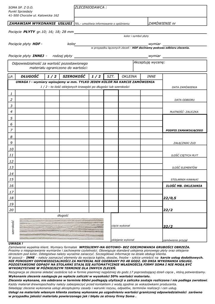
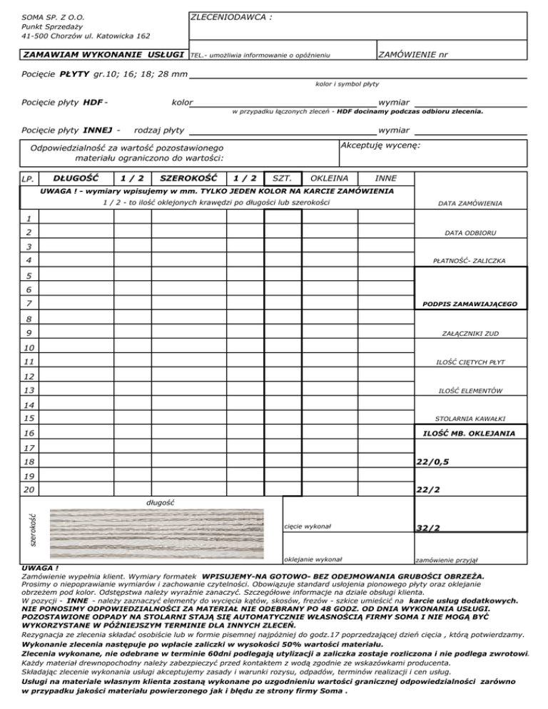
karta cięcia płytN

Transkrypt

karta cięcia płytN
SOMA SP. Z O.O.
Punkt Sprzedaży
41-500 Chorzów ul. Katowicka 162
ZLECENIODAWCA :
ZAMAWIAM WYKONANIE USŁUGI
TEL.- umożliwia informowanie o opóźnieniu
ZAMÓWIENIE nr
Pocięcie PŁYTY gr.10; 16; 18; 28 mm
kolor i symbol płyty
Pocięcie płyty HDF -
kolor
wymiar
w przypadku łączonych zleceń - HDF docinamy podczas odbioru zlecenia.
Pocięcie płyty INNEJ -
rodzaj płyty
wymiar
Akceptuję wycenę:
Odpowiedzialność za wartość pozostawionego
materiału ograniczono do wartości:
LP.
DŁUGOŚĆ
1/2
SZEROKOŚĆ
1/2
SZT.
OKLEINA
INNE
UWAGA ! - wymiary wpisujemy w mm. TYLKO JEDEN KOLOR NA KARCIE ZAMÓWIENIA
1 / 2 - to ilość oklejonych krawędzi po długości lub szerokości
DATA ZAMÓWIENIA
1
2
DATA ODBIORU
3
4
PŁATNOŚĆ- ZALICZKA
5
6
7
PODPIS ZAMAWIAJĄCEGO
8
9
ZAŁĄCZNIKI ZUD
10
11
ILOŚĆ CIĘTYCH PŁYT
12
13
ILOŚĆ ELEMENTÓW
14
15
STOLARNIA KAWAŁKI
16
ILOŚĆ MB. OKLEJANIA
17
18
22/0,5
19
20
22/2
szerokość
długość
cięcie wykonał
32/2
oklejanie wykonał
zamówienie przyjął
UWAGA !
Zamówienie wypełnia klient. Wymiary formatek WPISUJEMY-NA GOTOWO- BEZ ODEJMOWANIA GRUBOŚCI OBRZEŻA.
Prosimy o niepoprawianie wymiarów i zachowanie czytelności. Obowiązuje standard usłojenia pionowego płyty oraz oklejanie
obrzeżem pod kolor. Odstępstwa należy wyraźnie zanaczyć. Szczegółowe informacje na dziale obsługi klienta.
W pozycji - INNE - należy zaznaczyć elementy do wycięcia kątów, skosów, frezów - szkice umieścić na karcie usług dodatkowych.
NIE PONOSIMY ODPOWIEDZIALNOŚCI ZA MATERIAŁ NIE ODEBRANY PO 48 GODZ. OD DNIA WYKONANIA USŁUGI.
POZOSTAWIONE ODPADY NA STOLARNI STAJĄ SIĘ AUTOMATYCZNIE WŁASNOŚCIĄ FIRMY SOMA I NIE MOGĄ BYĆ
WYKORZYSTANE W PÓŻNIEJSZYM TERMINIE DLA INNYCH ZLECEŃ.
Rezygnacja ze zlecenia składać osobiście lub w formie pisemnej najpóżniej do godz.17 poprzedzającej dzień cięcia , którą potwierdzamy.
Wykonanie zlecenia następuje po wpłacie zaliczki w wysokości 50% wartości materiału.
Zlecenia wykonane, nie odebrane w terminie 60dni podlegają utylizacji a zaliczka zostaje rozliczona i nie podlega zwrotowi.
Każdy materiał drewnopochodny należy zabezpieczyć przed kontaktem z wodą zgodnie ze wskazówkami producenta.
Składając zlecenie wykonania usługi akceptujemy zasady i warunki rozysu, odpadów, terminów realizacji i cen usług.
Usługi na materiale własnym klienta zostaną wykonane po uzgodnieniu wartości granicznej odpowiedzialności zarówno
w przypadku jakości materiału powierzonego jak i błędu ze strony firmy Soma .