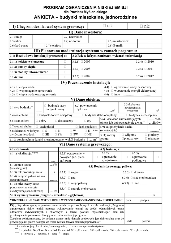
ANKIETA – budynki mieszkalne, jednorodzinne  tak  nie

Transkrypt

ANKIETA – budynki mieszkalne, jednorodzinne  tak  nie
PROGRAM OGRANICZENIA NISKIEJ EMISJI
dla Powiatu Myślenickiego
ANKIETA – budynki mieszkalne, jednorodzinne
 tak
I) Chcę zmodernizować system grzewczy:
II) Dane inwestora:
2.1) imię:
2.3) ulica:
2.6) kod poczt.:
 nie
2.2) nazwisko:
…………….
…………………………………………………
…………….
2.4) nr domu:
………
2.5) miasto/wieś:
…………
2.8) E-mail:
…… 2.7) telefon:
…………………......
………..
III) Planowana modernizacja systemu w ramach programu:
3.1) Rozbudowa instalacji grzewczej o:
3.1.1) kolektory słoneczne

3.1.2) pompy ciepła

3.1.3) moduły fotowoltaiczne

3.1.4) inne ……………………….

3. 2) Rok w którym zamierzam wykonać modernizację:
3.2.1)  2007
3.2.4)  2010
3.2.2)  2008
3.2.5)  2011
3.2.3)  2009
3.2.6)  2012
IV) Przeznaczenie instalacji:
4.1)  ciepła woda
4.2)  wspomaganie ogrzewania
4.3)  ciepła woda oraz ogrzewanie
4.4)  ogrzewanie wody basenowej
4.5)  wytwarzanie energii elektrycznej
4.6)  inne ………………………..
V) Dane obiektu:
5.1) typ budynku*
5.3) kubatura
5.2) powierzchnia
 budynek stary
budynek nowy
użytkowa:
(powierzchnia x
wysokość)
……..m2
.……m3
5.4) ocieplenie
 budynek słabo ocieplony
 budynek nieocieplany
5.6) ilość osób zamieszkujących
…...osób
5.5) stan okien:
 dobry
 dostateczny
 zły
obiekt lub dobowe zużycie c.w.u.** .....litrów
5.7) rodzaj dachu  dach płaski
 dach spadzisty 5.9) kąt pochylenia dachu
………0
5.8) kierunek w którym  S
N
W
 E *** (orientacyjnie)
zwrócony jest dach
 SE
 SW
 NW
 NE
 wilgotny
 gliniasty
5.11) rodzaj
2
piaszczysty
 nieznany
gruntu
5.10) powierzchnia działki niezabudowanej wokół budynku ......m
……
 budynek dobrze ocieplony
VI) Dane systemu grzewczego:
6.1) Kotłownia:
6.1.1) lokalizacja:****
6.1.2) moc kotła:
(orientacyjnie)
6.1.3) rok produkcji kotła:
6.1.4) zużycie paliwa na rok
6.2) Instalacja:
6.2.2)
6.2.1) ogrzewanie w
…...
....kW
…..r.
pokojach (np. piece
kaflowe)

6.2.3)
ogrzewanie
grzejnikowe

6.3.1)  węgiel
6.3.5)  drewno
6.3.6)  sieć ciepłownicza
6.3.7)  inne …………….
VIII) DEKLARUJE SWÓJ WSPÓŁUDZIAŁ W PROGRAMIE OGRANICZENIA NISKIEJ EMISJI:
IX) „ Wyrażam zgodę na przetwarzanie moich danych osobowych w celu realizacji „Programu
ograniczenia niskiej emisji poprzez wykorzystanie energii ze źródeł odnawialnych przez
odbiorców indywidualnych i zbiorowych z terenu powiatu myślenickiego” oraz ich
przekazywania podmiotom biorącym udział w realizacji programu.
Zostałem poinformowany, że podanie przeze mnie danych osobowych jest dobrowolne oraz że
przysługuje mi prawo dostępu do treści swoich danych oraz ich poprawiania.”.
**
……………………..m
data…… ...podpis…........
data…… ...podpis…........
1 – wolnostojący, 2 – bliźniak, 3 – szeregowiec;
c.w.u. – ciepła woda użytkowa;
S – południe, N- północ, W - zachód, E - wschód; SE – płd. - wsch., SW – płd. – zach., NW – płn. – zach., NE – płn. – wsch.;
****
1 – piwnica, 2 – łazienka, 3 – inna; 0 - stopni
***

6.3) Rodzaj stosowanego paliwa:
6.3.2)  gaz
(szacunkowo)
…….
6.3.3)  olej opałowy
6.1.5) miesięczny koszt
ponoszony za energię
6.3.4)  energia elektryczna
.…zł
elektryczną (szacunkowo)
VII) wymiary basenu (długość – szerokość – głębokość)
*
ogrzewanie
podłogowe
Objaśnienia do ankiety:
W części I ankiety należy zaznaczyć krzyżykiem przy odpowiedniej deklaracji „TAK” lub „NIE” dotyczącej
chęci modernizacji aktualnego systemu przygotowani ciepła, jeżeli zostanie zaznaczona opcja „NIE” należy
pominąć dalsze wypełnianie ankiety.
W części II ankiety należy podać swoje dane osobowe wypełniając wykropkowane pola drukowanymi literami.
W części III ankiety należy zaznaczyć krzyżyk przy odpowiedniej pozycji:
punk 3.1 dotyczy informacji o tym jaką modernizację systemu grzewczego chcieliby Państwo przeprowadzić w
swoim obiekcie. Jeśli chcą Państwo zmodernizować w swoim domu tylko system przygotowania ciepłej wody
użytkowej lub wody w basenie należy postawić krzyżyk przy punkcie 3.1.1. – kolektory słoneczne. Jeśli chcą
Państwo zmodernizować system ogrzewania budynku należy postawić krzyżyk przy punkcie 3.1.2. – pompy
ciepła. Jeśli Państwo zamierzają zmodernizować w swoim domu zarówno system przygotowania ciepłej wody
użytkowej jak i ogrzewania obiektu należy znaczyć krzyżyk przy punkcie 3.1.1. oraz przy punkcie 3.1.2.
Dodatkowo jeżeli Państwo będą zainteresowani wytwarzaniem energii elektrycznej z przyjaznych dla
środowiska urządzeń należy zaznaczyć krzyżyk przy punkcie 3.1.3.-moduły fotowoltaiczne. Zamierzenie innej
modernizacji przyjaznej dla środowiska należy odznaczyć krzyżykiem przy punkcie 3.1.4. z podaniem typu tej
modernizacji.
Punkt 3.2. dotyczy roku, w którym Państwo chcieliby przeprowadzić planowaną modernizacje. Określenie roku
modernizacji należy zaznaczyć krzyżykiem przy odpowiednim punkcie od 3.2.1. do 3.2.6. przy, którym podany
jest rok.
W części IV ankiety należy podać informację jakim celom ma służyć modernizacja obiektu.
Jeśli Państwo zaznaczyli w ankiecie punkt 3.1.1 – kolektory słoneczne i mają one służyć do przygotowania
ciepłej wody użytkowej i np. do podgrzewania basenu to należy w części IV zaznaczyć krzyżykiem punkt 4.1
oraz punkt 4.4. Należy zwrócić uwagę, że kolektory słoneczne służą do przygotowania ciepłej wody użytkowej
oraz wody w basenie, pompa ciepła służy do ogrzewania pomieszczeń a moduły fotowoltaiczne służą do
wytwarzania energii elektrycznej.
Część V ankiety dotyczy podstawowych danych charakterystycznych dla obiektu pozwalających na wstępne
oszacowanie możliwości modernizacyjnych oraz kosztów przeprowadzenia modernizacji.
W punkcie 5.1. ankiety należy w wykropkowanym miejscu podać odpowiednią cyfrę określającą typ budynku,
której oznaczenie jest przedstawione tuż pod ankietą (np. cyfra 1 oznacza dom wolnostojący). Dodatkowo
należy zaznaczyć krzyżykiem czy jest to budynek nowy czy stary. Jako budynek stary przyjmuje się obiekt
wybudowany przed rokiem 1990. W punkcie 5.2. należy podać przynajmniej szacunkową powierzchnię
użytkową obiektu. W punkcie 5.3. należy podać orientacyjną kubaturę obiektu mnożąc powierzchnie obiektu
przez jego wysokość. Jeżeli Państwo w punkcie 3.1. zdeklarowali się zmodernizować swoją instalację tylko o
kolektory słoneczne wówczas punkt 5.2. oraz 5.3. można pominąć. W punkcie 5.4. należy zaznaczyć
krzyżykiem odpowiednią pozycję określając stopień ocieplenia budynku. W punkcie 5.5. należy zakreślając
krzyżykiem określić stan okien w budynku. Ilość osób zamieszkujących obiekt lub ilość wody zużywanej w
ciągu doby należy podać w punkcie 5.6. Rodzaj dachu pokrywającego modernizowany obiekt pod względem
jego spadzistości należy zaznaczyć krzyżykiem w punkcie 5.7 ankiety. W punkcie 5.8. należy podać kierunek,
w którym zwrócona jest powierzchnia dachu przewidziana do montażu kolektorów słonecznych lub ogniw
fotowoltaicznych. Ten punkt dotyczy tylko dachów spadzistych. Kąt pochylenia dachu należy wpisać w punkcie
5.9. Jeżeli Państwo w ankiecie nie zadeklarowali się na montaż kolektorów słonecznych lub modułów
fotowoltaicznych punkty dotyczące informacji technicznych dachu można pominąć. Punkt 5.10 oraz 5.11. jest
związany z możliwościami zamontowania u Państwa pompy ciepła. Jeśli Państwo nie zamierzają przeprowadzić
modernizacji ogrzewania opartej na pompie ciepła można te punkty pominąć . Natomiast jeśli Państwo są
zainteresowani taką właśnie modernizacją w punkcie 5.10. należy podać orientacyjną powierzchnię działki
niezabudowanej natomiast w punkcie 5.11 rodzaj gruntu. Jeśli zadeklarowali się Państwo na montaż instalacji
złożonej z kolektorów słonecznych a ich zainstalowanie nie jest możliwe na dachu wówczas można je
zamontować na działce tuż przy budynku wówczas w punkcie 5.10 również należy podać powierzchnie
niezabudowanej działki, na której montaż kolektorów będzie możliwy.
Część VI ankiety dotyczy danych związanych z obecnym sposobem przygotowania ciepła do ogrzewania
budynku oraz przygotowania ciepłej wody użytkowej. Punkt 6.1. dotyczy danych kotłowni. W punkcie 6.1.1
należy podać lokalizacje obecnego urządzenia będącego źródłem ciepła najczęściej jest to kocioł poprzez
wpisanie w wykropkowane miejsce odpowiedniej cyfry, której znaczenie opisane zostało tuż pod ankietą, (np.
cyfra 1 oznacza piwnice). W punkcie 6.1.2. należy podać orientacyjną moc kotła. Punkt 6.1.3. dotyczy roku
produkcji kotła jeśli nie jest to możliwe do określenia należy wpisać czy jest on nowy czy stary. W punkcie 6.1.4
należy określić szacunkowe zużycie obecnie spalanego paliwa. W punkcie 6.1.5. należy podać średni koszt
ponoszony za energię elektryczną. Punkt 6.2. dotyczy dotychczasowego rozwiązania jeśli chodzi o ogrzewanie
pomieszczeń w budynku. Poprzez zakreślenie krzyżykiem w odpowiednim miejscu należy podać sposób
ogrzewani pomieszczeń. Punkt 6.3. dotyczy rodzaju dotychczas spalanego paliwa i poprzez zakreślenie
krzyżykiem w odpowiednim miejscu należy podać konkretny rodzaj paliwa spalanego w obecnej kotłowni.
W części VII ankiety należy podać wymiary basenu jeśli oczywiście jest w Państwa posiadaniu i zamierzają
Państwo zmodernizować ogrzewanie wody w tym basenie.
Część VIII oraz IX ankiety dotyczy deklaracji o współudziale w projekcie likwidowania niskiej emisji oraz
zgody na przetwarzanie danych osobowych zawartych w ankiecie dla celów projektu. W miejscach
wykropkowanych należy wpisać datę oraz czytelnie się podpisać