kotlownia popr

Transkrypt

kotlownia popr
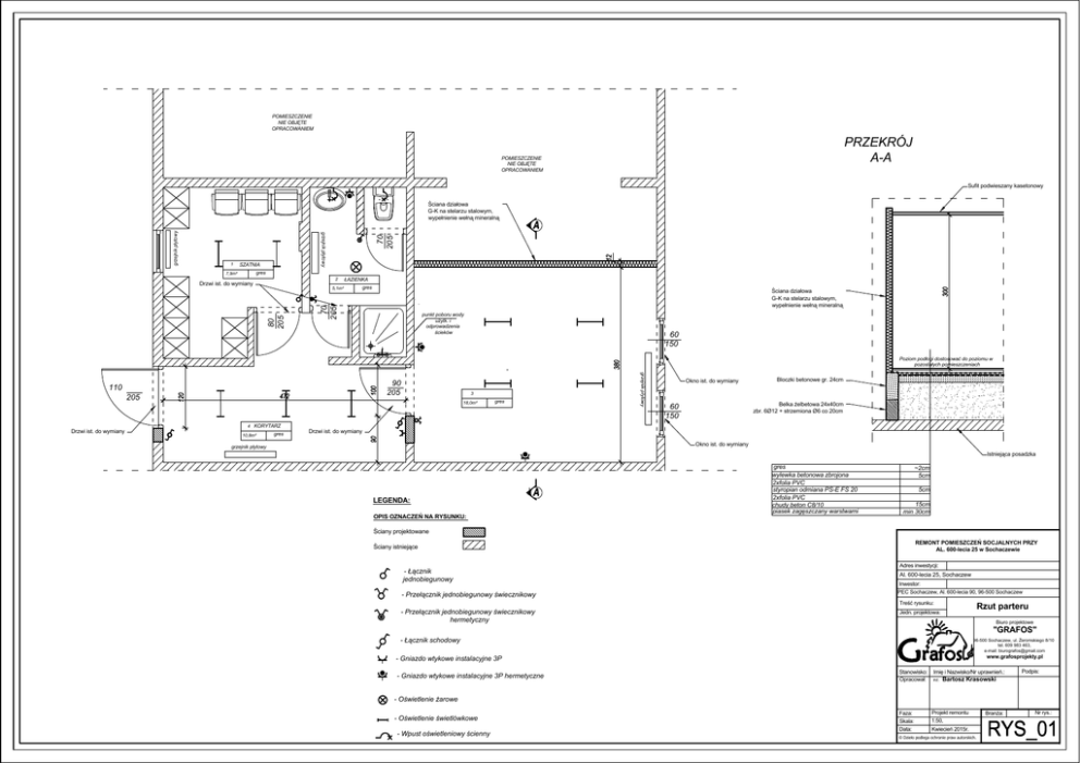
POMIESZCZENIE
NIE OBJĘTE
OPRACOWANIEM
PRZEKRÓJ
A-A
POMIESZCZENIE
NIE OBJĘTE
OPRACOWANIEM
Sufit podwieszany kasetonowy
1
SZATNIA
70
205
grzejnik płytowy
grzejnik płytowy
Ściana działowa
G-K na stelarzu stalowym,
wypełnienie wełną mineralną
gres
7,9m²
2
Drzwi ist. do wymiany
ŁAZIENKA
gres
Ściana działowa
G-K na stelarzu stalowym,
wypełnienie wełną mineralną
70
205
80
205
5,1m²
punkt poboru wody
użytk. i
odprowadzenia
ścieków
60
150
Poziom podłogi dostosować do poziomu w
pozostałych pomieszczeniach
205
3
18,0m²
gres
grzejnik płytowy
90
205
110
Okno ist. do wymiany
Bloczki betonowe gr. 24cm
Belka żelbetowa 24x40cm
zbr. 6Ø12 + strzemiona Ø6 co 20cm
60
150
4 KORYTARZ
Drzwi ist. do wymiany
10,8m²
gres
Drzwi ist. do wymiany
Okno ist. do wymiany
grzejnik płytowy
Istniejąca posadzka
LEGENDA:
OPIS OZNACZEŃ NA RYSUNKU:
gres
wylewka betonowa zbrojona
2xfolia PVC
styropian odmiana PS-E FS 20
2xfolia PVC
chudy beton C8/10
piasek zagęszczany warstwami
~2cm
5cm
5cm
15cm
min 30cm
Ściany projektowane
REMONT POMIESZCZEŃ SOCJALNYCH PRZY
AL. 600-lecia 25 w Sochaczewie
Ściany istniejące
Adres inwestycji:
- Łącznik
jednobiegunowy
- Przełącznik jednobiegunowy świecznikowy
Al. 600-lecia 25, Sochaczew
Inwestor:
PEC Sochaczew, Al. 600-lecia 90, 96-500 Sochaczew
Treść rysunku:
- Przełącznik jednobiegunowy świecznikowy
hermetyczny
Rzut parteru
Jedn. projektowa:
Biuro projektowe
"GRAFOS"
- Łącznik schodowy
96-500 Sochaczew, ul. Żeromskiego 8/10
tel. 609 983 463,
e-mail: [email protected]
www.grafosprojekty.pl
- Gniazdo wtykowe instalacyjne 3P
- Gniazdo wtykowe instalacyjne 3P hermetyczne
Stanowisko:
Opracował:
Imię i Nazwisko/Nr uprawnień.:
inż.
Podpis:
Bartosz Krasowski
- Oświetlenie żarowe
- Oświetlenie świetlówkowe
- Wpust oświetleniowy ścienny
Faza:
Skala:
Data:
Projekt remontu
1:50,
Kwiecień 2015r.
© Dzieło podlega ochronie praw autorskich.
Branża:
Nr rys.: