lt1- 3 - PWiK Wodzisław Śląski

Transkrypt

lt1- 3 - PWiK Wodzisław Śląski
•
J. śląskie
jedn.ewid: Wodzis ław Śląski (241504 1)
obręb: Radlin, km7 (0006)
KERG:754-257/2012
STAROSTWO POWIATOWE
w Wodzisławiu ś l ąskim
ul. Boguminska 2
44-300 Wodzis ław Ś 1.
zlec:59/2012
WG.6640.1.14662012
układ wysoko ściowy: Kronsztadt 86
układ wspólrzędnych płaskich: 2000/6
sekcja: 531.334.121
6.12425.12.3
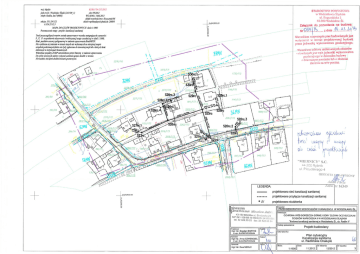
MAPA DO CELÓW PROJEKTOWYCH skala 1:1000
Przeznaczenie mapy : projekt kanalizacji sanitarnej
X=842800.00
Załącznik do_ _pozwolenia na budow ę
z dnia 11
Nr 01 ZCI
Treść poszczególnych warstw zosta ła opracowana w wyniku następujących czynno ści:
S, U, E- na podstawie skanowania i wektoryzacji mapy zasadniczej w skali 1:1000,
Brak punktów osnowy poligonowej w zakresie opracowania.BrakMPZP.
Nie ;y/klucza si ę istnienia w terenie innych nie wykazanych na niniejszej mapie
urządzeń podziemnych,które nie byty zg łoszone do inwentaryzacji lub o których brak
informacji w instytucjach branżowych.
Wkreślono projekty ZUDP zatwierdzone przez Starost ę w zakre,sie opracowania.
Do celów prailnych należy wy kona ć ustalenia granic działek w terenie.
Nie badano obciążeń slużebnościami gruntowymi.
Warunkiem rozpocz ę cia prac budowlanych jest
wyryczenie w terenie projektowanej budowli
przez jednostk ę wykonawstwa geodezyjnego.
Warunkiem - odbioru realizowanych obiektów
(1z),.\12nych jest wpis jednostki wykonawstwa
:T.codezyjne ty_ o w dzienniku budowy
n dokonanym pomiarze lub o z ł ożeniu
zlecenia na w/w pomiar.
3Mt\[
.........---------_____
•
2275/110
.moa ',3
,„ ar,....
•
Ds
•
1875/171
•
/110
lt1-
---— ----=."9
-
— -N---
.?-.1. 1T.- G
-G13alni--
k
22
S 2272/1 72
g
ir aT
1148/175
2273/172
S26rc.
•
——
__ , 3.•-•""'").----- --
3-_
S3Orc
2271/172
— .---'•'•---------- —
• ....--• --- -- ;":„/".
.-- --
-
—
S
jr
•,
-1
..«"' ....
1735/172
•
59 169
2 - 1-5
8rc.1
O
6
1147/173
ł ,7
Z4/171
"
••••
382/69
274f172
2270/172
1875/172
383/N,
--
-
2t4t4 \ g
r
384/74
01,.
e/Y
/15
•
ya
"NlIERMCY" S.C.
4 4-200 Rybnik
u. R ł suciskiego 4
3›.
\2047/15,
■0
°
58 /1 7 ,3;
GEOD '1A
\ 'NI ONY
2068/53
<o.
Ad-J/2
ty.S'
nr 16349
LEGENDA:
projektowana sie ć kanalizacji sanitarnej
X=842600.00
«OM IMMO o
° S1
projektowane przy łącze kanalizacji sanitarnej
projektowana studzienka
Inwestor:
Yr1LEMH
PRZEDSI Ę BIORSTWO WODOCI ĄGÓW I KANALIZACJI W WODZIS ŁAWIU SL.
P P2ErtlYSLUIFI Mh-os[a y., Jasff43-190 Mikotów ul. Stra ż acl<a 29
NI P 64 1-106-88-18 REGON 24160:;5E5:.
01. 32 322 . 03 53 fax: 32 322 03 54
Inwestycja:
OCHRONA WÓD DORZECZA GÓRNEJ ODRY ZLEWNI OCZYSZCZALNI
Ś CIEKÓW KARKOSZKA II W WODZIS ŁAWIU Ś LĄSKIM
"Budowa kanalizacji sanitarnej w Wodzis ławiu Ś I., dz. Radlin II"
Rodzaj opracowania:
Pro;ektował
S prawc1z4-
Projekt budowlany
Podpisi
mgr in ż . Bogdan BARTKE
nr upr. SLK/2872/POOS/09
yrur rysunku:
Plan sytuacyjny
Kanalizacja sanitarna
ul. Radli ń skie Cha łupki
Podpis: ,
mgr inż . Anna SZWENGIEL
nr upr. SLK/2784/PW0S/09
kipcaco,
mgr in ż . Ewa SZOLC
Pgdpi
Skala:
Data:
1:1000
Nr zlecenia:
11.2012
13/2012
Nr rysunku:
3