MEBLE - strefa pracownika SZAFY, REGAŁY MEBLE

Transkrypt

MEBLE - strefa pracownika SZAFY, REGAŁY MEBLE
MEBLE - strefa pracownika
Rp/2
Rp
Rp
Rp
Rp
Rp
Rp
Rp
Rp
Rp
Rp
Rp
Rp
Rp
Rp
Rp/2
Rp
symbol
nazwa
ilość
symbol
nazwa
Biurka stanowiskowe
K-1
wys. szaf przesuwnych 268 cm
szafy na tablice rejestracyjne
20
XERO
A4
21
Bs-1
Sz-t1
Bs-1b
Bs-1a
22
K-u
23
Bs-1
Sz-t1
K-u
K-u
Bs-1
24
2.
strefa
wewnętrzna
Sz-t1
25
K-p
okienko rezerwowe
zamykane
przegrodą szklaną
rys. nr 16
Sz-ż1
19
m3
K-1a Bs-1d
m3
m1
F
18
Sz-ż3
K-u
K-p
17
m3
m3
m2
Bs-1b
Biurko stanowiskowe nietypowe
1
Bs-1c
Biurko stanowiskowe nietypowe
1
Sz-t1
Sz-t2
28
Regały przesuwny połówkowy
2
K-p
krzesło petenta
47
K5
zestaw poczekalniowy "5"
F
fotel obrotowy petenta
Szafy na tablice rejstracyjne
szafa powtarzalna
6
szafa nietypowa
1
Bs-2a
Biurko stanowiskowe nietypowe
1
Sz - ż1
Szafa żaluzjowa szer. 120cm
Bs-3
Biurko stanowiskowe powtarzalne
1
Sz - ż2
Bs-3a
Biurko stanowiskowe nietypowe
1
Bs-3b
Biurko stanowiskowe nietypowe
1
Zs-info
Zabudowa stanowiska info
1
ZK
Zabudowa stanowisk kasy
1
Bw-2
siedziska modułowe
moduł środkowy bez oparcia
13
m2
moduł narożny bez oparcia
6
Szafa żaluzjowa szer. 80cm
2
m3
moduł środkowy z oparciem
22
Sz - ż3
Szafa żaluzjowa niska
1
m4
moduł narożny z oparciem
Sz - ż5
Szafa żaluzjowa na mapy
2
Sz - sch
Szafa ze schowkami
m1
H
1
Tg
stół geodetów 120x120
1
1
T1
stolik 50x100
7
T2
stolik 50x50
6
Sz - p1
Szafka pod xero A4
1
Biurko wolnostojące 140 x 75
1
Sz - p2
Szafa - zabudowa xero A4
1
Biurko wolnostojące 120 x 75
1
R1
Regały w schowku porządkowym
2
Półki do wypełniania druków
P1
Półka 200 x 50
2
P2
Półka 50x50
3
1
stolik
1
2
krzesełka
4
K-p5
m3
m3
Bl-1
blat w kancelarii wewnętrznej
1
Bl-2
blat w pom. ochrony
1
meble w aneksie dla dzieci
sofy - siedziska modułowe
wyjście
ewakuacyjne
blat - wypełnianie wniosków
T2
rys. szczegółowy
K-p5 siedziska systemowe
TV
info
P1
system
kolejkowy
5
stoły i stoliki
Szafy pozostałe
Biurka wolnostojące
Bw-1
3
21
m1
Szafy żaluzjowe
kontenerki
info-kiosk
szafa schowkowa
metalowa
Rp/2
krzesło obrotowe urzędnika
Blaty i stoły biurowe
T2
1.
Sala obsługi
wydz. Komunikacji
Sz-ż1
Sz-sch
K-1
kontenerek dostawka do biurka
21
3
tablica manualna interaktywna
1
K-1a
kontenerek zespolony z biurkiem
1
4
półka wbudowana na książeczki
1
K-2
kontenerek podblatowy
5
(kl. schodowa)
"k"
R.c.o.
XERO
A3-kolor
m3
F
K-p
K-2
drukarka
etykiet
F
Bs-1
Bs-1
m3
1
krzesła i fotele
K-u
XERO
A4
T1
K-1
K-u
m2
Biurko stanowiskowe nietypowe
ilość
15
6
F
F
Bs-1a
T2
nazwa
Regał przesuwny cały
1
przegrody szklane międzystanowiskami
rys. szczegółowy nr 10
Bs-1c
Rp
Biurko stanowiskowe powtarzalne
K-p
K-p
7
Biurko stanowiskowe nietypowe
"k"
R
Biurko stanowiskowe powtarzalne
Bs-2
Bs-1
symbol
Regały przesuwne
Bs-1
Bs-1d
K-1
O1
ilość
Sz-p1
K-1
Sz-p2
Sz-t1
K-1
Sz-t1
K-1
Sz-t1
K-1
Sz-t2
K-1
A
K-1
Bw-1
MEBLE - strefa interesanta
SZAFY, REGAŁY
strefa regałów przesuwnych
3.
szatnie
( maszynownia )
E
4.
wiatrołap
6.
hall
wejściowy
dżwig
osobowy
Bl-3
5.
ochrona
10.
wc
pracowników
( męskie )
Sz-ż1
Sz-ż1
Sz-ż1
Sz-ż4
Sz-ż1
"k"
INFO
drukarka
biletów
syst. kolejkowego
1
m3
m3
E
m2
m1
m2
m1
m3
3
P2
F
F
7.
Sala obsługi
WOM
T1
m3
m1
m3
m3 m3
m2
T2
m3
3
2
Sz-ż1
2
14
system
"kolejkowy"
Sz-ż1
K-2
K-2
dżwig
osobowy
m2
R.c.o.
m3
K-2
K-p
aneks dla dzieci
wyposażenie
rys. szczegółowy nr 9
22
wc
damski
4
1
K-p
20
wc
niepełnospr.
21
wc
męskie
"k"
13
H
T1
P2
K-p
Bl-4
7
"k"
m3
XERO
A4
Bs-3
6
K-p
K-p
F
P2
13.
zaplecze
biurowe
K-p5
12
Bs-2a
Bs-2
11
10
Bs-2
Bs-2
9
Bs-2
8
Bs-2
pomieszczenia
P.U.P
Państwowego Urzędu Pracy
poza
zakresem opracowania
XERO
A3-kolor
Sz-ż1
K-u
monitor - podgląd sal
K-1
K-1
K-1
15.
wiatrołap
szafy żaluzjowe
Sz-ż1
14.
strefa wewnętrzna
WOM
Sz-ż2
16
pokój naczelnika
WOM
Sz-ż1
umeblowanie przykładowe
meble z likwidowanych pokoi
biurowych
Sz-ż1
Sz-ż1
K-u
K-1
K-1
K-1
"k"
szafy żaluzjowe
ploter
Bs-3
5
umeblowanie przykładowe
meble z likwidowanych pokoi
biurowych
(kl. schodowa)
Bs-2
umeblowanie przykładowe
meble z likwidowanych pokoi
biurowych
Bs-3
4
zabudowa meblowa
stanowiska
rys. szczegółowy
m3
F
R.c.o.
K-1
Bs-3a
m3
12.
korytarz
"k"
2
Bs-3b
K-p
Tg
m3
K-1
Bs-1
zabudowa meblowa
st. info
rys. szczegółowy nr 7
stolik
T1
Z-info
XERO
A3-kolor
F
F
m3
szafy ubraniowe
18.
strefa wewnętrzna
PASZPORTY
drzwi szklane przesuwne
rys. nr 14
K-1
K-2
19
kancelaria
wewnętrzna
Sz-ż1
Sz-ż2
K-1
wodopój
blat - wypełnianie wniosków
rys. szczegółowy
TV info
m4
aneks
dla matki
karmiącej
XERO
A4
zabudowa meblowa
st.kasowych
rys. szczegółowy nr 8
sofy - siedziska modułowe
T2
szafa metalowa
istniejąca
"k"
stół
geodetów
m3
ZK
17.
strefa wewnętrzna
KANCELARIA
defibrylator
11.
wc
pracowników
( damskie )
zaplecze socjalne i higieniczne
pracowników
poza zakresem
opracowania
16
15
"k"
K-u
info-kiosk
opłatomat
P1
m3
8.
kasy
K-1
szafa
sejf
istniejąca
Bw-2
9.
pokój
socjalny
O1
K-1
WEJŚCIE
B
R1
R1
23
schowek
porządkowy
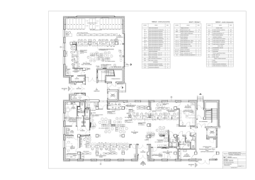
Projekt przebudowy parteru
Budynku Starostwa Powiatowego w Pruszkowie
Pruszków, ul.Drzymały 30
W
PROJEKT
ARANŻACJI WNĘTRZ
projektant:
arch. Marcin Bujnowski
BŁ/299/94, MA-0118
arch.Joanna Bujnowska
O1
WEJŚCIE
A
WEJŚCIE
C
RZUT PARTERU
umeblowanie
czerwiec 2015
nr.rys.
1