WYDRUK GODÓW

Transkrypt

WYDRUK GODÓW
A
likwidacja ściany tarasowej do poziomu gruntu
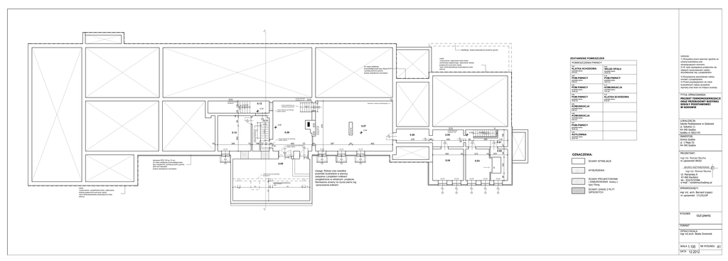
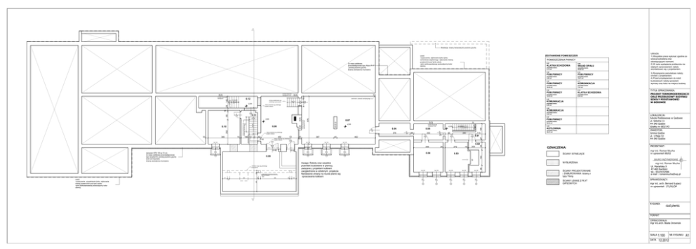
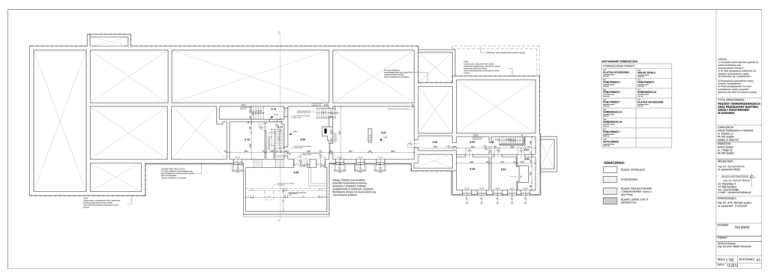
ZESTAWIENIE POMIESZCZEŃ
cokół:
-czyszczenie, wykonanie tynku tynku
cementowo-wapiennego wykonanie równej
powierzchni pod tynk cokołu
-tynk cieńkowarstwowy wodoodporny kolor
ciemny
2x masa asfaltowa
przeciwwilgociowa typu Abizol R+P
poniŜej poziomu gruntu
ściana zewnętrzna murowana
POMIESZCZENIA PIWNICY
montaŜ drzwiczek
rewizyjnych 2 szt
zamkniecie przewodu wentylacyjnego
22
0.12
12x19,5x28
12 W. @ 19 cm
11 Sz. @ 28 cm
schody projektowane wg
odrebnego opracowania
-2,35
9x17,2
30
100
140
montaŜ drzwiczek
rewizyjnych
0.09
KLATKA SCHODOWA
SKŁAD OPAŁU
posadzka beton.
6,79 m2
posadzka beton.
43,02 m2
0.02
0.10
POM.PIWNICY
POM.PIWNICY
posadzka beton.
4,99 m2
posadzka beton.
15,67 m2
0.03
0.11
POM.PIWNICY
KOMUNIKACJA
posadzka beton.
10,44 m2
posadzka beton.
7,91 m2
0.04
0.12
POM.PIWNICY
KLATKA SCHODOWA
posadzka beton.
12,85 m2
posadzka beton.
6,54 m2
0.05
KOMUNIKACJA
100
197
posadzka beton.
6,90 m2
otwory drzwiowe wg odrebnego
projektu kotłowni
29
0.01
UWAGA:
1) Wszystkie prace wykonać zgodnie ze
sztuką budowlaną oraz
obowiązującymi normami.
2) W razie wystapienia problemów nie
objetych opracowaniem naleŜy
skontaktować się z projektantem.
3) Rozwiązania warsztatowe naleŜy
omówić z projektantem.
4) Przed przystapieniem do robót
budowlanych naleŜy sprawdzić
wymiary oraz ilości na miejscu budowy.
TYTUŁ OPRACOWANIA:
PROJEKT TERMOMODERNIZACJI
ORAZ PRZEBUDOWY BUDYNKU
SZKOŁY PODSTAWOWEJ
W GODOWIE
0.06
16
KOMUNIKACJA
99
posadzka beton.
6,02 m2
160
200
82
196
0.11
576
0.07
posadzka beton.
50,60 m2
42
450
42
d16
387
40
84
197
44
355
462
d17
hp=128
hp=128
10
203
OZNACZENIA:
ŚCIANY ISTNIEJĄCE
90
57
183
O3
hp=128
hp=128
hp=128
hp=128
100
57
100
57
85
hp=128
O4
O4
O4
O4
O4
PROJEKTANT:
mgr inŜ. Roman Mucha
nr uprawnień 89/02
BIURO INśYNIERSKIE
WYBURZENIA
100
57
58
Uwaga: Roboty oraz wszelkie
przeróbki budowlane w piwnicy,
zwiazane z projektem kotłowni
uwzglednione w odrebnym projekcie.
Naniesione zmiany na rzucie piwnic wg
opracowania kotłowni
0.03
ŚCIANY PROJEKTOWANE
/ ZAMUROWANIA ściany z
typy Ytong
ŚCIANY LEKKIE Z PŁYT
GIPSOWYCH
mgr inŜ. Roman Mucha
Ul. Mariańska 9
47-460 Racibórz
tel.: 032/4152586
e-mail : [email protected]
SPRAWDZAJĄCY:
mgr inŜ. arch. Bernard Łopacz
nr uprawnień 171/91/OP
A
229
25
O3
0.04
100
57
projektowana konstrukcja wsporcza
płyty nad składem
węgla
350
272
100
57
O3
90
57
90
57
25
25
25
EI 60
90
57
350
25
INWESTOR:
Gmina Godów
ul. 1 Maja 53
44-340 Godów
posadzka beton.
25,07 m2
0.01
0.02
0.09
57
KOTŁOWNIA
hp=128
355
elemenyt zsypu wg odrebnego
opracoawnia
cokół:
-czyszczenie, uzupełnienie tynku, wykonanie
równej powierzchni pod tynk cokołu
-tynk cieńkowarstwowy wodoodporny kolor
ciemny
115
280
94
EI 60
O3
25
90
otwory drzwiowe wg odrebnego
projektu kotłowni
EI 60
styropian EPS 100 gr.10 cm
2x masa asfaltowa przeciwwilgociowa
typu Izoplast KL poniŜej poziomu gruntu
tynk kat I/rapówka
ściana zewnętrzna murowana
84
197
0.08
12 W. @ 19 cm
12x19,5x25
11 Sz. @ 25 cm
86
190
100
200
376
-2,30
0.05
84
190
otwory drzwiowe wg odrebnego
projektu kotłowni
0.06
84
190
84
190
194
montaŜ drzwiczek
rewizyjnych 2szt
27
-2,30
150
210
hp=128
montaŜ drzwiczek
rewizyjnych 4 szt.
8x194
196
POM.PIWNICY
100
200
15
d16
385
0.08
100
balustrada stalowa
schody projektowane wg
odrebnego opracowania
175
292
0.10
30
LOKALIZACJA:
Szkoła Podstawowa w Godowie
ul. Szkolna 11
44-340 Godów
działka nr 683/143
0.07
-3,90
RYSUNEK
rzut piwnic
FORMAT
OPRACOWAŁA:
mgr inŜ.arch. Beata Drewniok
SKALA
DATA
1:100 NR RYSUNKU A1
12.2012