„KROK PO KROKU” - INSTRUKCJA Jak wypełnić deklarację o

Transkrypt

„KROK PO KROKU” - INSTRUKCJA Jak wypełnić deklarację o
„KROK PO KROKU” - INSTRUKCJA
Jak wypełnić deklarację o wysokości opłaty za gospodarowanie odpadami komunalnymi
Wypełniamy tylko pola jasne drukowanymi literami kolorem czarnym lub niebieskim
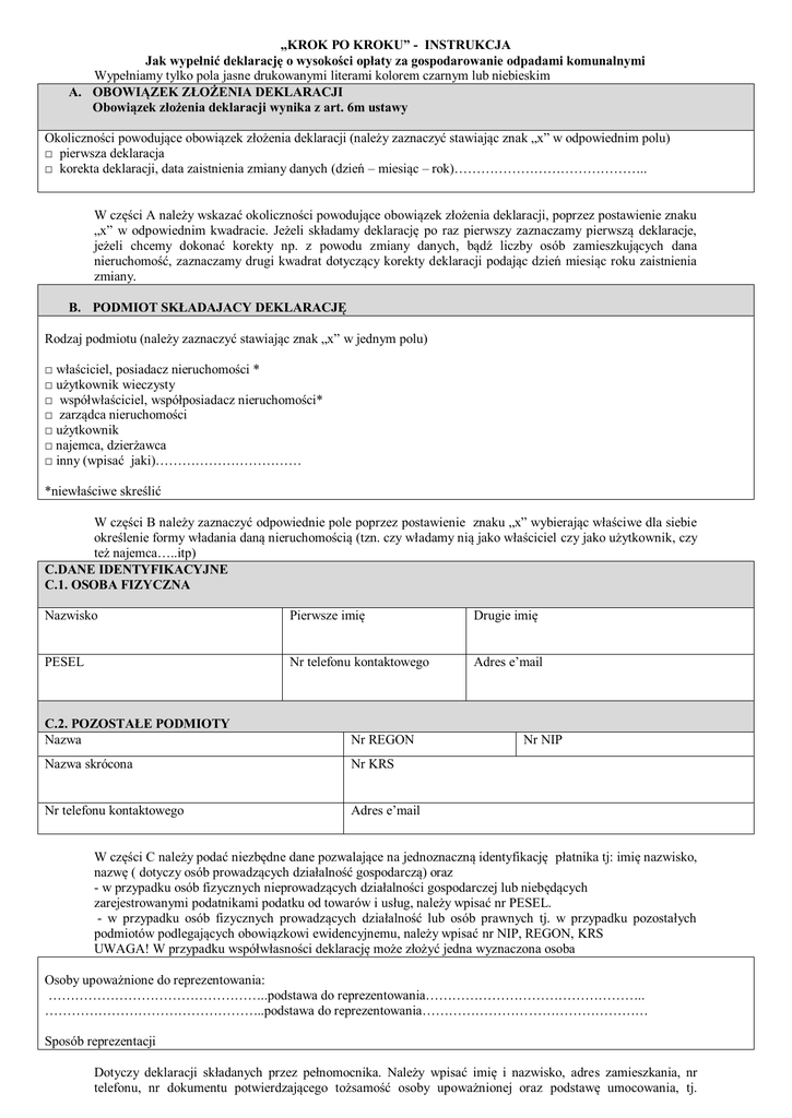
A. OBOWIĄZEK ZŁOŻENIA DEKLARACJI
Obowiązek złożenia deklaracji wynika z art. 6m ustawy
Okoliczności powodujące obowiązek złożenia deklaracji (należy zaznaczyć stawiając znak „x” w odpowiednim polu)
□ pierwsza deklaracja
□ korekta deklaracji, data zaistnienia zmiany danych (dzień – miesiąc – rok)……………………………………..
W części A należy wskazać okoliczności powodujące obowiązek złożenia deklaracji, poprzez postawienie znaku
„x” w odpowiednim kwadracie. Jeżeli składamy deklarację po raz pierwszy zaznaczamy pierwszą deklaracje,
jeżeli chcemy dokonać korekty np. z powodu zmiany danych, bądź liczby osób zamieszkujących dana
nieruchomość, zaznaczamy drugi kwadrat dotyczący korekty deklaracji podając dzień miesiąc roku zaistnienia
zmiany.
B. PODMIOT SKŁADAJACY DEKLARACJĘ
Rodzaj podmiotu (należy zaznaczyć stawiając znak „x” w jednym polu)
□ właściciel, posiadacz nieruchomości *
□ użytkownik wieczysty
□ współwłaściciel, współposiadacz nieruchomości*
□ zarządca nieruchomości
□ użytkownik
□ najemca, dzierżawca
□ inny (wpisać jaki)……………………………
*niewłaściwe skreślić
W części B należy zaznaczyć odpowiednie pole poprzez postawienie znaku „x” wybierając właściwe dla siebie
określenie formy władania daną nieruchomością (tzn. czy władamy nią jako właściciel czy jako użytkownik, czy
też najemca…..itp)
C.DANE IDENTYFIKACYJNE
C.1. OSOBA FIZYCZNA
Nazwisko
Pierwsze imię
Drugie imię
PESEL
Nr telefonu kontaktowego
Adres e’mail
C.2. POZOSTAŁE PODMIOTY
Nazwa
Nr REGON
Nazwa skrócona
Nr KRS
Nr telefonu kontaktowego
Adres e’mail
Nr NIP
W części C należy podać niezbędne dane pozwalające na jednoznaczną identyfikację płatnika tj: imię nazwisko,
nazwę ( dotyczy osób prowadzących działalność gospodarczą) oraz
- w przypadku osób fizycznych nieprowadzących działalności gospodarczej lub niebędących
zarejestrowanymi podatnikami podatku od towarów i usług, należy wpisać nr PESEL.
- w przypadku osób fizycznych prowadzących działalność lub osób prawnych tj. w przypadku pozostałych
podmiotów podlegających obowiązkowi ewidencyjnemu, należy wpisać nr NIP, REGON, KRS
UWAGA! W przypadku współwłasności deklarację może złożyć jedna wyznaczona osoba
Osoby upoważnione do reprezentowania:
…………………………………………..podstawa do reprezentowania…………………………………………..
…………………………………………..podstawa do reprezentowania……………………………………………
Sposób reprezentacji
Dotyczy deklaracji składanych przez pełnomocnika. Należy wpisać imię i nazwisko, adres zamieszkania, nr
telefonu, nr dokumentu potwierdzającego tożsamość osoby upoważnionej oraz podstawę umocowania, tj.
pełnomocnictwo, umowa spółki, KRS itp. Do deklaracji należy dołączyć dokument potwierdzający
pełnomocnictwo. W przypadku pełnomocnictwa ogólnego lub szczególnego, pełnomocnictwo powinno być
udzielone na piśmie i złożone z niniejsza deklaracją w formie oryginału lub uwierzytelnionego odpisu z
uiszczoną opłata skarbową (17,00 zł).
Jako sposób reprezentacji należy wpisać czy pełnomocnicy mogą działać samodzielnie, czy też posiadają
pełnomocnictwo łączne.
D.ADRES NIERUCHOMOŚCI, KTÓREJ DOTYCZY DEKLARACJA
Miejscowość
Ulica
Nr domu
Numer lokalu
Kod pocztowy
Poczta
Numer działki
Należy wskazać dokładny adres nieruchomości, z której będą odbierane odpady komunalne. W przypadku
nieruchomości niezabudowanej lub budynku w trakcie budowy, należy podać nr ewidencyjny działki.
F. OŚWIADCZAM, ŻE :
(należy zaznaczyć odpowiedni kwadrat poprzez postawienie znaku „x”)
□ odpady z terenu nieruchomości będą zbierane w sposób selektywny
□ odpady z terenu nieruchomości będą zbierane w sposób nieselektywny (czyli jako odpady zmieszane)
Odpady biodegradowalne:
1.) odpady zielone* z terenu nieruchomości będą / są zagospodarowywane poprzez :
□ kompostowanie
□ inny (podać jaki)………………………………………………………………………………….
2) odpady kuchenne* z terenu nieruchomości będą/są zagospodarowywane poprzez:
□ kompostowanie
□ inny (podać jaki)………………………………………………………………………………….
* przez odpady zielone należy rozumieć: skoszoną trawę, liście, zgrabki z ogrodu itp.
* przez odpady kuchenne należy rozumieć: obierki, resztki jedzenia, itp.
W części F należy podać czy odpady powstałe na nieruchomości będą gromadzone w sposób selektywny, czy
nieselektywny. Od tego uzależniona jest stawka opłaty za odbiór odpadów.
W przypadku zadeklarowania selektywnego zbierania odpadów na nieruchomości stawka jest niższa.
Opłata za odbiór odpadów po 1 lipca 2013 r. dla nieruchomości zamieszkałych:
- 5,50 zł miesięcznie od osoby zamieszkującej daną nieruchomość, jeżeli odpady będą zbierane w sposób
selektywny
- 11,00 zł miesięcznie od osoby zamieszkującej daną nieruchomość, jeżeli odpady będą zbierane w sposób
nieselektywny
Opłata za odbiór odpadów po 1 lipca 2013 r. dla nieruchomości niezamieszkałych, czyli nieruchomości, na
których prowadzona jest działalność gospodarcza:
jeżeli odpady będą zbierane w sposób selektywny
- za 1 pojemnik o pojemności 1100 l - stawka 60,00 zł miesięcznie;
- za 1 pojemnik o pojemności 120 l* - stawka 10,00 zł miesięcznie.
jeżeli odpady będą zbierane w sposób nieselektywny
- za 1 pojemnik o pojemności 1100 l - stawka 120,00 zł miesięcznie;
- za 1 pojemnik o pojemności 120 l* - stawka 20,00 zł miesięcznie.
Uwaga! Worki z odpadami posegregowanymi będą poddawane kontroli. W przypadku stwierdzenia, że odpady
są segregowane niewłaściwie (tzn. znajdą się wśród nich odpady z zawartością resztek żywności oraz takie
których nie można poddać recyklingowi), odpady zostaną odebrane jako niesegregowane, co wiąże się z
podniesieniem stawki z 5,50 na 11,00.zł. Dotyczy to również nieruchomości niezamieszkałych, na których
prowadzona jest działalność gospodarcza.
Ponadto należy zaznaczyć sposób zagospodarowywania odpadów biodegradowalnych zielonych i tzw.
kuchennych powstających na terenie nieruchomości. Dodatkowe informacje potrzebne są dla ustalenia zakresu
planowanych działań związanych z odbiorem odpadów biodegradowalnych.
G. OPŁATA ZA GOSPODAROWANIE ODPADAMI KOMUNALNYMI
G.1. Dotyczy nieruchomości zamieszkałej
Oświadczam, że na terenie nieruchomości wskazanej w części D niniejszej deklaracji zamieszkuje*………4…………
(liczba mieszkańców)
Wyliczenie miesięcznej opłaty:
………………4………… X …………5,50………… = ………………22,00 ………………………………….
(liczba mieszkańców)
(stawka opłaty)
(iloczyn liczby mieszkańców i stawki opłaty)
Miesięczna wysokość opłaty za gospodarowanie odpadami wynosi…………………22,00…………………………...zł
Słownie dwadzieścia dwa złote 00/100 .)
*- miejscem zamieszkania, jest nieruchomość, w której osoba przebywa z zamiarem stałego pobytu, niezależnie od miejsca
zameldowania.
W części G.1. deklaracji właściciel nieruchomości dokona obliczenia opłaty za gospodarowanie odpadami
komunalnymi. Danymi niezbędnymi do takiego wyliczenia są: stawki opłaty ustalone uchwałą - Uchwała Nr
XXI/165/2012 Rady Gminy Krościenko Wyżne z dnia 29 listopada 2012 r. w sprawie wyboru metody ustalenia
opłaty za gospodarowanie odpadami komunalnymi na terenie Gminy Krościenko Wyżne oraz ustalenia stawki
opłaty, jak również ilość osób zamieszkujących daną nieruchomość. (powyżej przykładowe wyliczenie opłaty).
G.2. Dotyczy nieruchomości niezamieszkałej , na której powstają odpady
(należy zaznaczyć odpowiedni kwadrat poprzez postawienie znaku „x”)
Oświadczam, że na terenie nieruchomości wskazanej w części D niniejszej deklaracji odpady gromadzone będą w:
□ pojemniku o pojemności 1100 l w ilości…………………….……….miesięcznie
(liczba pojemników)
□ pojemniku* o pojemności 120 l w ilości…………2………….……miesięcznie
(liczba pojemników)
Wyliczenie miesięcznej opłaty:
………………2…………………… X ………… 10,00 …….
(liczba pojemników)
(stawka opłaty)
= ………20,00 ………
(iloczyn liczby pojemników i stawki opłaty)
Miesięczna wysokość opłaty za gospodarowanie odpadami wynosi………………………20,00……………………...zł
Słownie:………..dwadzieścia złotych 00/100…….)
*przez pojemnik pojemności 120 l należy rozumieć worek z folii poliuretanowej o tej samej pojemności
Część G..2. wypełniają tylko właściciele nieruchomości niezamieszkałych, czyli tych na których prowadzona
jest działalność gospodarcza. Należy dokonać obliczenia opłaty za gospodarowanie odpadami komunalnymi.
Danymi niezbędnymi do takiego wyliczenia są: stawki opłaty ustalone uchwałą - Uchwała Nr XXI/166/2012
Rady Gminy Krościenko Wyżne z dnia 29 listopada 2012 r.w sprawie ustalenia stawki opłaty za pojemnik z
odpadami komunalnymi, oraz ilość liczby zadeklarowanych pojemników o określonej pojemności (powyżej
przykładowe wyliczenie opłaty.
G.3. Dotyczy nieruchomości w części stanowiącej nieruchomość zamieszkałą, a w części nieruchomość niezamieszkałą, na
której powstają odpady komunalne
Wyliczenie miesięcznej opłaty:
………………22,00………………… + ………………20,00……………… = …………………42,00……………
(opłata obliczona w polu G.1.)
(opłata obliczona w polu G.2.)
(suma opłat z pól G.1. i
G.2.)
Miesięczna wysokość opłaty za gospodarowanie odpadami wynosi…………………42,00………………...zł
Słownie:………czterdzieści dwa złote 00/100………………………………………………………………………………….)
Część G.3. należy wypełnić, jeżeli na danej nieruchomości zamieszkałej prowadzona jest działalność
gospodarcza (tzn. jeżeli np. w budynku mieszkalnym znajduje się wyodrębnione pomieszczenie do prowadzenia
określonej działalności gospodarczej np. sklepu, lub obok budynku mieszkalnego, w obrębie tej samej
nieruchomości znajduje się budynek, garaż, wiata, w której prowadzone jest działalność gospodarcza). W celu
prawidłowego wyliczenia opłaty, należy zsumować wyliczoną opłatę w części G.1 i opłatę z części G.2.
(powyżej przykładowe wyliczenie opłaty).
H. ZAŁĄCZNIKI (należy wymienić rodzaj załącznika)
Załącznik nr 1………………………………………………………………………………………………
Załącznik nr 2………………………………………………………………………………………………
Załącznik nr 3………………………………………………………………………………………………
1) w przypadku składania deklaracji przez pełnomocnika – do deklaracji należy dołączyć
pełnomocnictwo osoby upoważnionej do reprezentowania podmiotu składającego deklarację;
2) w przypadku osób czasowo przebywających poza gminą należy dołączyć:
a) oświadczenie o pobieraniu nauki w trybie dziennym poza miejscem stałego zameldowania oraz
potwierdzającym zamieszkiwanie w miejscu nauki,
b) oświadczenie o przebywaniu członka rodziny poza granicami kraju,
c) oświadczenie o pracy poza miejscem stałego zameldowania oraz potwierdzające zamieszkiwanie w
miejscu pracy.
I. PODPIS SKŁADAJĄCEGO DEKLARACJĘ
…………………………………………………
(czytelny podpis)
…………………………………………………………….
(miejscowość i data)
Deklaracja dla swej ważności musi zostać podpisana własnoręcznie, czytelnym podpisem przez
właściciela nieruchomości z podaniem miejsca i daty.
W przypadku jakichkolwiek problemów lub pytań w zakresie wypełniania deklaracji prosimy o
kontakt z Referatem Gospodarki Komunalnej Ochrony Środowiska i Rozwoju Gminy – informacji
udziela
Pani
Agnieszka
Pelczar
za
pośrednictwem
poczty
elektronicznej
[email protected] lub telefonicznie 13 43 151 90 wew. 16.