14. Zał. 4. projekt szaty roslinej

Transkrypt

14. Zał. 4. projekt szaty roslinej
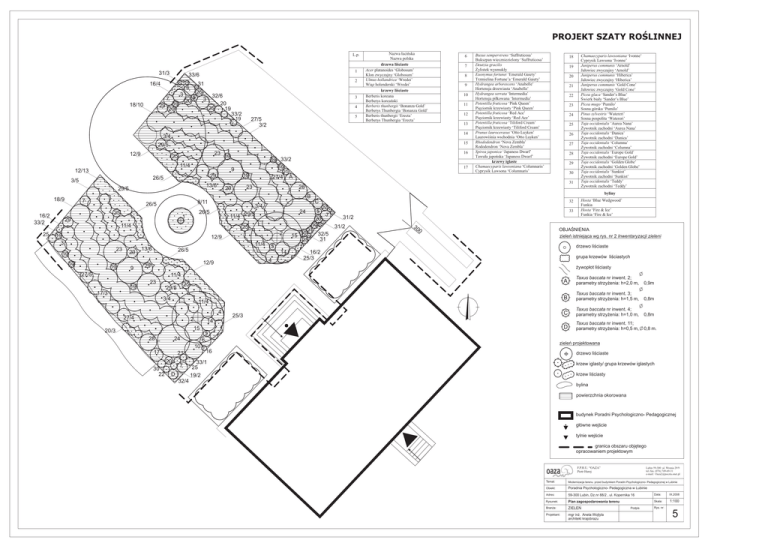
PROJEKT SZATY ROŒLINNEJ
L.p.
31/3
33/6
16/4
29
3
20
19
2
31
6
7
18/10
1
5
25
32/6
20
25
19
3
20
3
4
33/2
19
5
27/5
3/2
Nazwa ³aciñska
Nazwa polska
drzewa liœciaste
Acer platanoides ‘Globosum’
Klon zwyczajny ‘Globosum’
Ulmus hollandrica ‘Wredei’
Wi¹z holenderski ‘Wredei’
krzewy liœciaste
Berberis koreana
Berberys koreañski
Berberis thunbergii ‘Bonanza Gold’
Berberys Thunbergia ‘Bonanza Gold’
Berberis thunbergii ‘Erecta’
Berberys Thunbergia ‘Erecta’
12/9
23
25
11/4
19 33/2
19
21
19
29
26/5
10
11
12
13
27/4
17
Buxus sempervirens ‘Suffruticosa’
Bukszpan wieczniezielony ‘Suffruticosa’
Deutzia gracilis
¯ylistek wysmuk³y
Euonymus fortunei ‘Emerald Gaiety’
Trzmielina Fortune’a ‘Emerald Gaiety’
Hydrangea arborescens ‘Anabelle’
Hortensja drzewiasta ‘Anabelle’
Hydrangea serrata ‘Intermedia’
Hortensja pi³kowana ‘Intermedia’
Potentilla fruticosa ‘Pink Queen’
Piêciornik krzewiasty ‘Pink Queen’
Potentilla fruticosa ‘Red Ace’
Piêciornik krzewiasty ‘Red Ace’
Potentilla fruticosa ‘Tiliford Cream’
Piêciornik krzewiasty ‘Tiliford Cream’
Prunus laurocerasus ‘Otto Luyken’
Laurowiœnia wschodnia ‘Otto Luyken’
Rhododendron ‘Nova Zembla’
Rododendron ‘Nova Zembla’
Spirea japonica ‘Japaness Dwarf’
Tawu³a japoñska ‘Japaness Dwarf’
krzewy iglaste
Chamaecyparis lawsoniana ‘Columnaris’
Cyprysik Lawsona ‘Columnaris’
18
19
20
21
22
23
24
25
26
27
28
29
30
A
31
13/6
29/5
25
9
16
19
9
12/13
23
29
28
7
8/11
26/5
1
29
C
3/4
26/5
11/4
2
12/9
3
23
19
19
19
29
9
11/4
13/6
26/5
29
27/5
21
15 30
25
33
31/2
31/2
32/5
31
30
0
4
drzewo liœciaste
16/2
25/3
grupa krzewów liœciastych
¿ywop³ot liœciasty
11/4
19
23
25
29/5
17/3
3/4
11/4
4
27/4
2
20/3
28
24
21
20
30
22
7
D
5
6
10
17
25/3
A
Taxus baccata nr inwent. 2;
parametry strzy¿enia: h=2,0 m,
0,9m
B
Taxus baccata nr inwent. 3;
parametry strzy¿enia: h=1,5 m,
0,8m
C
Taxus baccata nr inwent. 4;
parametry strzy¿enia: h=1,0 m,
0,8m
D
Taxus baccata nr inwent. 11;
parametry strzy¿enia: h=0,5 m,
0,8 m.
14
15
Hosta ‘Blue Wedgwood’
Funkia
Hosta ‘Fire & Ice’
Funkia ‘Fire & Ice’
OBJAŒNIENIA
zieleñ istniej¹ca wg rys. nr 2 Inwentaryzacji zieleni
5
14
12/9
22
19
25
19
32
5
7
20
24
11/4 29/5
Chamaecyparis lawsoniana ‘Ivonne’
Cyprysik Lawsona ‘Ivonne’
Juniperus communis ‘Arnold’
Ja³owiec zwyczajny ‘Arnold’
Juniperus communis ‘Hiberica’
Ja³owiec zwyczajny ‘Hiberica’
Juniperus communis ‘Gold Cone’
Ja³owiec zwyczajny ‘Gold Cone’
Picea glaca ‘Sander’s Blue’
Œwierk bia³y ‘Sander’s Blue’
Picea mugo ‘Pumilo’
Sosna górska ‘Pumilo’
Pinus sylvestris ‘Watereri’
Sosna pospolita ‘Watereri’
Tuja occidentalis ‘Aurea Nana’
¯ywotnik zachodni ‘Aurea Nana’
Tuja occidentalis ‘Danica’
¯ywotnik zachodni ‘Danica’
Tuja occidentalis ‘Columna’
¯ywotnik zachodni ‘Columna’
Tuja occidentalis ‘Europe Gold’
¯ywotnik zachodni ‘Europe Gold’
Tuja occidentalis ‘Golden Globe’
¯ywotnik zachodni ‘Golden Globe’
Tuja occidentalis ‘Sunkist’
¯ywotnik zachodni ‘Sunkist’
Tuja occidentalis ‘Teddy’
¯ywotnik zachodni ‘Teddy’
byliny
B
25
16/2
33/2
8
15
29/5
18/9
7
14
3/4
3/5
6
zieleñ projektowana
16
drzewo liœciaste
33/1
25
19/2
krzew iglasty/ grupa krzewów iglastych
krzew liœciasty
32/4
bylina
powierzchnia okorowana
budynek Poradni Psychologiczno- Pedagogicznej
g³ówne wejœcie
tylnie wejœcie
granica obszaru objêtego
opracowaniem projektowym
oaza
F.P.H.U. “OAZA”
Piotr Hurej
Lubin 59-300 ul. Wronia 29/9
tel./fax. (076) 749-69-31
e-mail: [email protected]
Temat:
Modernizacja terenu przed budynkiem Poradni Psychologiczno- Pedagogicznej w Lubinie
Obiekt:
Poradnia Psychologiczno- Pedagogiczna w Lubinie
Adres:
59-300 Lubin, Dz.nr 88/2 , ul. Kopernika 16
Rysunek:
Data:
IX.2008
Plan zagospodarowania terenu
Skala:
1:100
Bran¿a:
ZIELEÑ
Rys. nr:
Projektant:
mgr in¿. Aneta Wojtyla
architekt krajobrazu
Podpis
5