Wklejony obrazek #51.png
Transkrypt
										Wklejony obrazek #51.png
                                        
                                        
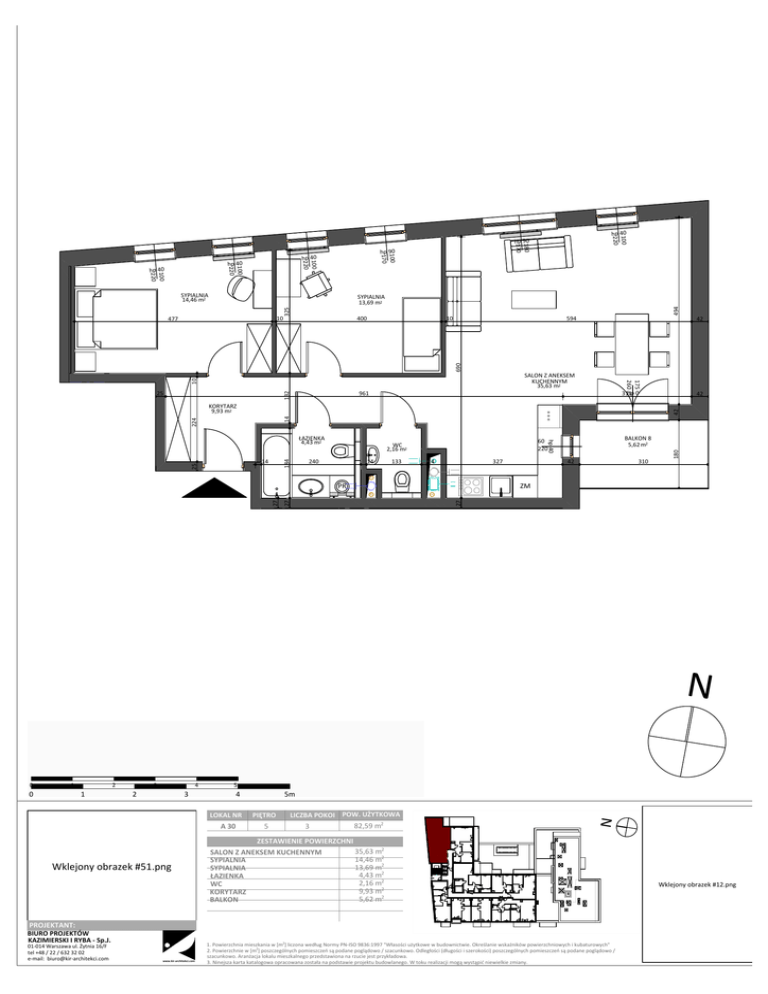
                                100 220 hp 40 100 170 hp 90 100 220 hp 40 100 220 hp 40 100 220 hp 40 180 170 hp 90 SYPIALNIA 14,46 m2 325 10 400 10 594 42 690 477 494 SYPIALNIA 13,69 m2 184 42 *** 14 224 25 14 WC 2,16 m2 240 14 133 BALKON 8 5,62 m2 60 220 hp 40 ŁAZIENKA 4,43 m2 327 14 42 310 42 180 132 10 hp 0 311 961 KORYTARZ 9,93 m2 S/H 27/40 BH 250 S/H 27/40 BH 250 25 175 260 SALON Z ANEKSEM KUCHENNYM 35,63 m2 wc PR ZM 27 27 27 zl wc N 5m 4 5m N hp 0 260 220 hp 40 hp 90 60 220 hp 40 60 220 hp 40 hp 40 hp 90 hp 0 180 170 100 220 hp 40 hp 0 hp 40 100 170 hp 0 100 220 hp 402 hp 40 100 220 S/H 27/40 BH 250 9 10 8 7 12 6 18 x 17 = 306 hp 10 11 13 14 15 16 180 170 180 220 100 220 90 260 100 220 180 170 90 260 90 220 17 hp 90 hp 40 hp 40 hp 0 5 4 3 2 1 180 70 hp 40 hp 901 hp 0 130 306 hp 40 hp 402 100 220 100 20 hp 40 hp 40 180 70 hp 901 100 220 100 220 ZESTAWIENIE POWIERZCHNI 35,63 m2 SALON Z ANEKSEM KUCHENNYM 14,46 m2 SYPIALNIA 13,69 m2 SYPIALNIA 4,43 m2 2,16 m2 WC 9,93 m2 KORYTARZ 5,62 m2 BALKON 175 260 100 220 hp 40 82,59 m2 hp 90 3 hp 0 Wklejony obrazek #51.png 5 hp 40 A 30 LICZBA POKOI S/H 27/40 BH 250 LOKAL NR 180 280 4 3 90 20 3 2 90 260 2 1 100 260 1 180 260 0 0 60 220 180 260 100 260 180 170 100 220 90 260 hp 0 hp 0 90 220 100 220 100 260 hp 40 hp 40 hp 40 hp 40 hp 90 90 260 hp 40 100 220 hp 90 100 260 hp 0 hp 0 160 170 hp 0 hp 0 240 170 hp 40 90 220 100 220 hp 90 PROJEKTANT: KAZIMIERSKI I RYBA - Sp.J. 01-014 Warszawa ul. Żytnia 16/F tel +48 / 22 / 632 32 02 e-mail: [email protected] www.kir-architekci.com 1. Powierzchnia mieszkania w [m2] liczona według Normy PN-ISO 9836:1997 "Własości użytkowe w budownictwie. Określanie wskaźników powierzchniowych i kubaturowych" 2. Powierzchnie w [m2] poszczególnych pomieszczeń są podane poglądowo / szacunkowo. Odległości (długości i szerokości) poszczególnych pomieszczeń są podane poglądowo / szacunkowo. Aranżacja lokalu mieszkalnego przedstawiona na rzucie jest przykładowa. 3. Ninejsza karta katalogowa opracowana została na podstawie projektu budowlanego. W toku realizacji mogą wystąpić niewielkie zmiany. Wklejony obrazek #12.png