TOALETY DLA KLIENTÓW 102/207 90 cm 1:50 04.2014 r.

Transkrypt

TOALETY DLA KLIENTÓW 102/207 90 cm 1:50 04.2014 r.
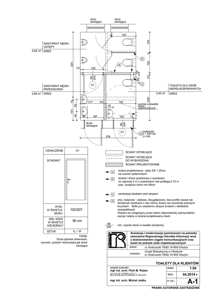
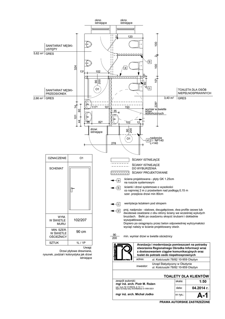
okno
istniejące
okno
istniejące
120
100
2
SANITARIAT MĘSKIUSTĘPY
2
5,62 m2 GRES
100
a
135
102
105
40
90
200
105
324
b
c
O1
SANITARIAT MĘSKIPRZEDSIONEK
TOALETA DLA OSÓB
NIEPEŁNOSPRAWNYCH
3,40 m2
105
60
1175
150
wymiar w świetle
ścian
wykończonych
44
101
35
35
825
102
O1
278
OZNACZENIE
O1
MIN. SZER.
W ŚWIETLE
OŚCIEŻNICY
SZTUK
nadproże
d 2 I NP140
L=140
ŚCIANY ISTNIEJĄCE
ŚCIANY ISTNIEJĄCE
DO WYBURZENIA
ŚCIANY PROJEKTOWANE
SCHEMAT
WYM.
W ŚWIETLE
MURU
12
90
200
drzwi
istniejące
GRES
2265
14
2,66 m2 GRES
102/207
90 cm
1L / 1P
Uwagi:
Drzwi płytowe drewniane,
rysunek, podział i kolorystyka jak drzwi
istniejące
90
200
a
ściana projektowana - płyty GK 1.25cm
na ruszcie systemowym
b
ścianki i drzwi systemowe o wysokości
co najmniej 2 m z prześwitem nad podłogą 0,15 m
szer. przejścia drzwi min 80cm
c
wentylacja leżakiem pod stropem
d
proj. nadproże - stalowe, dwugałęziowe, dwa profile ceowe lub
dwuteowe osadzane z obu strony ściany we wcześniej wykutych
bruzdach. Belki po osadzeniu skręcić śrubami i dokładnie
wyszpałdować.
Dopiero po osiągnięciu przez beton odpowiedniej wytrzymałości
wyciąć należy w ścianie projektowany otwór.
min. wymiar drzwi w świetle ościeżnicy
Aranżacja i modernizacja pomieszczeń na potrzeby
stworzenia Regionalnego Ośrodka Informacji wraz
z dostosowaniem ciągów komunikacyjnych oraz
toalet do potrzeb osób niepełnosprawnych
adres:
ul. Kościuszki 78/82 10-959 Olsztyn
inwestor:
Urząd Statystyczny w Olsztynie
ul. Kościuszki 78/82 10-959 Olsztyn
zespół autorski:
mgr inż. arch. Piotr M. Rożen
TOALETY DLA KLIENTÓW
skala:
1:50
upr. bud. Nr 31/89/OL § 13.1.1.
wpis na listę Izby Architektów nr WM 0001
data:
mgr inż. arch. Michał Jodko
nr rys.:
04.2014 r.
A-1
PRAWA AUTORSKIE ZASTRZEŻONE
ISTNIEJĄCY EKRAN
MULTIMEDIALNY
62
62
150
1995
70
SZAFA 1
90
SZAFA 1
70
54,95 m2
70
SALA SZKOLENIOWOKONFERENCYJNA
70
90
900
WYKŁADZINA DYWANOWA
SALA SZKOLENIOWOKONFERENCYJNA
WYKŁADZINA DYWANOWA
54,95 m2
90
70
90
SZAFA 2
SZAFA 2
70
90
70
24
62
50
14
198
70
70
1005
120
TELEWIZOR LCD
SZAFKA RTV
ISTNIEJĄCY EKRAN
MULTIMEDIALNY
TELEWIZOR LCD
SZAFKA RTV
24
56
14
114
140
140
70
56
14
464
24
24
ISTNIEJĄCY EKRAN
MULTIMEDIALNY
TELEWIZOR LCD
USTAWIENIE STOŁÓW
SZKOLENIOWO-KONFERENCYJNYCH
FORMUŁA WARSZTATOWA
USTAWIENIE STOŁÓW
SZKOLENIOWO-KONFERENCYJNYCH
FORMUŁA KONFERENCYJNA
ISTNIEJĄCY EKRAN
MULTIMEDIALNY
Urząd Statystyczny w Olsztynie
ul. Kościuszki 78/82 10-959 Olsztyn
Aranżacja i modernizacja pomieszczeń na potrzeby
stworzenia Regionalnego Ośrodka Informacji wraz
z dostosowaniem ciągów komunikacyjnych oraz
toalet do potrzeb osób niepełnosprawnych
adres:
ul. Kościuszki 78/82 10-959 Olsztyn
inwestor:
upr. bud. Nr 31/89/OL § 13.1.1.
wpis na listę Izby Architektów nr WM 0001
zespół autorski:
mgr inż. arch. Piotr M. Rożen
nr rys.:
data:
skala:
A-2
04.2014 r.
1:50
ARANŻACJE SALI SZKOLENIOWO-KONFERENCYJNEJ
mgr inż. arch. Michał Jodko
PRAWA AUTORSKIE ZASTRZEŻONE
505
1 8 52
61
485
93
125
60
65
8
82
38
5
485
405
485
525
525
485
485
485
525
525
1 160
485
44
525
525
525
Uwagi:
485
485
485
525
555
515
555
Korytko podpodłogowe PCV IP40 IK 08
Zestaw gniazd w puszce podłogowej
Legar drewniany h=5cm szer 8cm
1. Wszystkie krawędzie płyt OSB powinny
mieć oparcie na legarach.
2. Rysunek rozpatrywać łącznie z proj.
inst. elektrycznych
3. Montaż legarów podłogowych i płyt OSB
skoordynować z montażem puszek podłogowych
Urząd Statystyczny w Olsztynie
ul. Kościuszki 78/82 10-959 Olsztyn
Aranżacja i modernizacja pomieszczeń na potrzeby
stworzenia Regionalnego Ośrodka Informacji wraz
z dostosowaniem ciągów komunikacyjnych oraz
toalet do potrzeb osób niepełnosprawnych
adres:
ul. Kościuszki 78/82 10-959 Olsztyn
inwestor:
upr. bud. Nr 31/89/OL § 13.1.1.
wpis na listę Izby Architektów nr WM 0001
zespół autorski:
mgr inż. arch. Piotr M. Rożen
nr rys.:
data:
skala:
A-3
04.2014 r.
1:50
SALA SZKOLENIOWO-KONFERENCYJNA
BELKI PODŁOGI PODNIESIONEJ
mgr inż. arch. Michał Jodko
PRAWA AUTORSKIE ZASTRZEŻONE
665
35
665
35
665
35
665
35
665
4065
25
62
35
655
35
60
35
35
34
35
61
35
67
1315
35
35
62
35
1315
wydzielona
przestrzeń
na ubrania
35
wydzielona
przestrzeń
na ubrania
SZAFA 2
184
68
270
35
35
35
35
35
35
34
34
34
34
34
34
38
35
35
34
35
34
35
34
35
270
34
35
34
35
38
35
417
35
SZAFA 1
140
70
dwuosobowy stół
szkoleniowo-konferencyjny
120
70
jednoosobowy stół
szkoleniowo-konferencyjny
Aranżacja i modernizacja pomieszczeń na potrzeby
stworzenia Regionalnego Ośrodka Informacji wraz
z dostosowaniem ciągów komunikacyjnych oraz
toalet do potrzeb osób niepełnosprawnych
adres:
ul. Kościuszki 78/82 10-959 Olsztyn
inwestor:
Urząd Statystyczny w Olsztynie
ul. Kościuszki 78/82 10-959 Olsztyn
KONCEPCJA PROGRAMOWO - PRZESTRZENNA
SALA SZKOLENIOWO-KONFERENCYJNA
zespół autorski:
skala:
1:50
mgr inż. arch. Piotr M. Rożen
upr. bud. Nr 31/89/OL § 13.1.1.
wpis na listę Izby Architektów nr WM 0001
data:
mgr inż. arch. Michał Jodko
nr rys.:
03.2014 r.
A-4
PRAWA AUTORSKIE ZASTRZEŻONE