Załącznik Nr2 - Inwentaryzacja - Prokuratura Okręgowa w Olsztynie

Transkrypt

Załącznik Nr2 - Inwentaryzacja - Prokuratura Okręgowa w Olsztynie
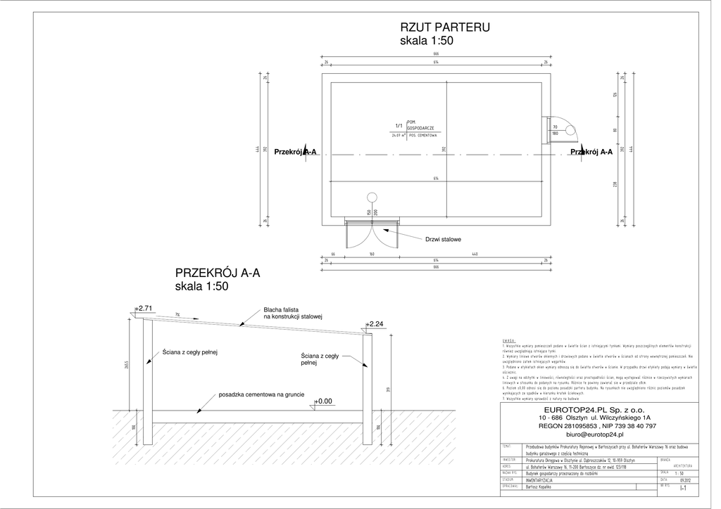
RZUT PARTERU
skala 1:50
666
26
392
392
444
Przekrój A-A
Przekrój A-A
444
70
180
24.07 m² POS. CEMENTOWA
392
POM.
1/1 GOSPODARCZE
80
126
26
614
26
26
26
26
150
200
238
614
Drzwi stalowe
66
160
440
26
614
666
PRZEKRÓJ A-A
skala 1:50
7%
265.5
Ściana z cegły pełnej
Blacha falista
na konstrukcji stalowej
+2.24
Ściana z cegły
pełnej
posadzka cementowa na gruncie
319
+2.71
26
+0.00
UWAGA:
1. Wszystkie wymiary pomieszczeń podano w świet le ścian z istniejącymi tynkami. Wymiar y poszczególnyc h el ementów konstrukcji
również uwzględniają istniejące tynki.
2. Wymiary liniowe otworów okiennych i drzwiowych podano w świetle otwor ów w śc ianach od str ony wewnętrznej pomieszczeń. Nie
uwzgl ędniono zatem ist niejąc yc h węgar ków.
3. Podane w etykietach okien wymiary odnoszą się do światła otworów w ścianie. W przypadku drzwi etykiety podają wymiary w świetle
ośc ieżnic .
4. Z uwagi na odchyłki w liniowości, równoległości oraz prostopadłości ścian, mogą występować różnice w rzeczywistych wymiarach
liniowyc h w stosunku do podanych na rysunku. Różnice te powinny zawierać sie w przedzial e ±8cm.
6. Poziom ±0, 00 odnosi się do poziomu posadzki part er u budynku. Na r ysunkach nie uwzgl ędniono różnic poziomów posadzek
wynikajac ych ze spadków w kierunku kr atek ściekowych.
7. Wszystkie wymiary sprawdzić z natury na budowie
100
100
EUROTOP24.PL Sp. z o.o.
10 - 686 Olsztyn ul. Wilczyńskiego 1A
REGON 281095853 , NIP 739 38 40 797
[email protected]
TEMAT:
INWESTOR:
ADRES:
NAZ WA R YS .
STADIUM:
OPRACOWAŁ:
Przebudowa budynków Prokuratury Rejonowej w Bartoszycach przy ul. Bohaterów Warszawy 16 oraz budowa
budynku garażowego z częścią techniczną
BRANŻA:
Prokuratura Okręgowa w Olsztynie ul. Dąbroszczaków 12, 10-959 Olsztyn
ARCHITEKTURA
ul. Bohaterów Warszawy 16, 11-200 Bartoszyce dz. nr ewid. 123/118
SKAL A: 1 : 50
Budynek gospodarczy przeznaczony do rozbiórki
DAT A:
09.2012
INWENTARYZACJA
NR RY S.
Bartosz Kopańko
I-1