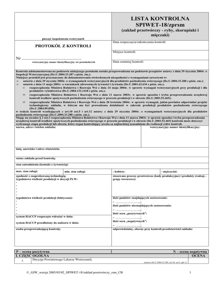
LISTA KONTROLNA SPIWET-18/zprsm

Transkrypt

LISTA KONTROLNA SPIWET-18/zprsm
LISTA KONTROLNA
SPIWET-18/zprsm
(zakład przetwórczy - ryby, skorupiaki i
mięczaki)
pieczęć inspektoratu weterynarii
PROTOKÓŁ Z KONTROLI
Data rozpoczęcia/zakończenia kontroli:
Miejsce kontroli:
Nr .....................................................
weterynaryjny numer identyfikacyjny /nr protokołu/rok
Data ostatniej kontroli:
Kontrola udokumentowana na podstawie niniejszego protokołu została przeprowadzona na podstawie przepisów ustawy z dnia 29 stycznia 2004r. o
Inspekcji Weterynaryjnej (Dz.U.2004.33.287 z późn. zm.);
Niniejszy protokół jest przeznaczony do dokumentowania stwierdzonych niezgodności z wymaganiami zawartymi w:
•
ustawie z dnia 29 stycznia 2004r. o wymaganiach weterynaryjnych dla produktów pochodzenia zwierzęcego (Dz.U.2004.33.288 z późn. zm.);
•
ustawie z dnia 11 maja 2001r. o warunkach zdrowotnych żywności i żywienia (Dz.U.2001.63.634 z późn. zm.);
•
rozporządzeniu Ministra Rolnictwa i Rozwoju Wsi z dnia 24 maja 2004r. w sprawie wymagań weterynaryjnych przy produkcji i dla
produktów rybołówstwa (Dz.U.2004.132.1418 z późn. zm.);
• rozporządzeniu Ministra Rolnictwa i Rozwoju Wsi z dnia 11 marca 2003r. w sprawie sposobu i trybu przeprowadzania urzędowej
kontroli środków spożywczych pochodzenia zwierzęcego w procesie produkcji i w obrocie (Dz.U.2003.52.465);
• rozporządzeniu Ministra Rolnictwa i Rozwoju Wsi z dnia 20 kwietnia 2004r. w sprawie wymagań, jakim powinien odpowiadać projekt
technologiczny zakładu, w którym ma być prowadzona działalność w zakresie produkcji produktów pochodzenia zwierzęcego
(Dz.U.2004.89.858);
w trakcie kontroli wynikających z art.10 ust.5 i art.12 ustawy z dnia 29 stycznia 2004r. o wymaganiach weterynaryjnych dla produktów
pochodzenia zwierzęcego (Dz.U.2004.33.288 z późn. zm.);
Mając na uwadze § 2 ust.3 rozporządzenia Ministra Rolnictwa i Rozwoju Wsi z dnia 11 marca 2003r. w sprawie sposobu i trybu przeprowadzania
urzędowej kontroli środków spożywczych pochodzenia zwierzęcego w procesie produkcji i w obrocie (Dz.U.2003.52.465) kontrola może dotyczyć
wybranego etapu produkcji lub obrotu, które organ kontrolujący uważa za najbardziej uzasadnione do realizacji celów kontroli.
nazwa, adres i telefon zakładu:
weterynaryjny numer identyfikacyjny:
imię, nazwisko i adres właściciela:
status zakładu przed kontrolą:
stan zatrudnienia (kontakt z żywnością):
max. stan załogi:
min. stan załogi:
zgodność z zaaprobowaną technologią:
tygodniowa wielkość produkcji w decyzji PLW:
tygodniowa wielkość produkcji (faktyczna):
system HACCP rozpoczęto wdrażać w dniu:
system HACCP przedłożony do nadzoru w dniu:
osoba przeprowadzającą kontrolę:
- kobiety:
ilość punktów znajdujących zastosowanie:
- ……………..;
ilość punktów nieznajdujących zastosowania:
- ……………..;
ilość ocen „pozytywnych”:
- ……………..;
ilość ocen „negatywnych”:
- ……………..;
odpowiedzialny, obecny przy kontroli przedstawiciel zakładu:
P – ocena pozytywna
I. CZĘŚĆ OGÓLNA
1.
- mężczyźni:
stosowane procesy przetwórcze (kody produkcyjne) i produkty (rodzaj –
grupy towarowe):
N – ocena negatywna
OCENA
Decyzja Powiatowego Lekarza Weterynarii;
(ustawa Dz.U.2004.33.288, art.10, ust.5, pkt 1)
©_GIW_wersja 2005/05/02_SPIWET-18/zakład przetwórczy_rsm_CB
1
2.
3.
Projekt technologiczny zakładu
- część opisowa;
(rozp.Dz.U.2004.89.858,§ 2, pkt 1)
- część graficzna;
(rozp.Dz.U.2004.89.858,§ 2, pkt 2)
4.
- zmiany;
(rozp.Dz.U.2004.89.858,§ 4)
5.
Decyzja zatwierdzająca projekt technologiczny zakładu;
6.
Ogrodzenie zakładu;
7.
Lokalizacja zakładu (zapachy, sadza, dymy, zanieczyszczenia);
8.
Nawierzchnia dróg wewnętrznych (równa i utwardzona);
9.
Stan sanitarno-higieniczny budynków oraz otoczenia zakładu;
10.
Dokumentacja dot. aktualnego zakresu i rodzaju działalności prowadzonej w zakładzie;
11.
Układ pomieszczeń produkcyjnych/ oddzielenie stref o zróżnicowanym stopniu zanieczyszczenia;
12.
Stan sanitarno-techniczny pomieszczeń (podłogi, ściany, ściany działowe, sufity), linii produkcyjnych, narzędzi i
sprzętu;
13.
Stan czystości i porządku w pomieszczeniach produkcyjnych zakładu;
14.
Wielkość powierzchni roboczych (warunki sanitarne i wielkość produkcji);
15.
Czystość urządzeń, aparatury, sprzętu i narzędzi;
16.
Dokumentacja dotycząca czyszczenia, mycia i dezynfekcji urządzeń i sprzętu;
17.
18.
19.
Środki do odkażania, deratyzacji, dezynsekcji oraz
środki myjące:
(ustawa Dz.U.2004.33.288, art.9, ust.2)
(rozp.Dz.U.2004.132.1418,zał.4,cz.I,ust.3)
(rozp.Dz.U.2004.132.1418,zał.4,cz.I,ust.3)
(rozp.Dz.U.2004.132.1418,zał.4,cz.I,ust.3)
(rozp.Dz.U.2003.52.465, § 3 pkt 1)
(rozp.Dz.U.2003.52.465, § 9 pkt 2)
(rozp.Dz.U.2004.132.1418,zał.4,cz.I,ust.2)
(rozp.Dz.U.2004.132.1418,zał.4,cz.II,A,ust.1 i rozp.Dz.U.2003.52.465, § 3 pkt 1)
(rozp.Dz.U.2003.52.465, § 3 pkt 2)
(rozp.Dz.U.2004.132.1418,zał.4,cz.I,ust.1)
(rozp.Dz.U.2003.52.465, § 3 pkt 6)
(rozp.Dz.U.2003.52.465, § 10 pkt 2)
- dopuszczenie do obrotu;
(rozp.Dz.U.2004.132.1418,zał.4,cz.II,A,ust.3,pkt 1)
- zabezpieczenie przed osobami nieupoważnionymi;
(rozp.Dz.U.2004.132.1418,zał.4,cz.II,A,ust.3,pkt 2)
- sposób przechowywania;
(rozp.Dz.U.2004.132.1418,zał.4,cz.II,A,ust.3,pkt 3)
20.
- sposób stosowania;
(rozp.Dz.U.2004.132.1418,zał.4,cz.II,A,ust.3,pkt 4)
21.
Sposób usuwania odpadów i ścieków;
22.
Zabezpieczenie zakładu przed gryzoniami, owadami i innymi szkodnikami;
23.
Skuteczność urządzeń zabezpieczających zakład przed owadami, gryzoniami i ptakami;
24.
Rozmieszczenie urządzeń do łapania szkodników;
25.
Dokumentacja dot. zabezpieczenia zakładu przed owadami i gryzoniami;
26.
Zabezpieczenie produktów rybołówstwa przed zanieczyszczeniami (odłamki szkła, drewna, metalu, tworzyw
sztucznych);
27.
Dokumentacja dot. zabezpieczenia produktów rybołówstwa przed zanieczyszczeniami (odłamki szkła, drewna,
metalu tworzyw sztucznych);
28.
Dokumentacja dot. materiałów i wyrobów mających kontakt bezpośrednio z produktami rybołówstwa;
29.
Dokumentacja dot. nadzoru nad urządzeniami pomiarowymi;
30.
Dokumentacja dot. okresowego sprawdzania urządzeń, aparatów, sprzętu, narzędzi;
31.
Wydruki z urządzeń automatycznie rejestrujących parametry procesów technologicznych (lub archiwizacja na
nośnikach elektronicznych);
32.
Dokumentacja dot. surowca i produktu (Handlowy Dokument Identyfikacyjny);
(rozp.Dz.U.2003.52.465, § 3 pkt 8)
(rozp.Dz.U.2004.132.1418,zał.4,cz.II,A,ust.2)
(rozp.Dz.U.2003.52.465, § 3 pkt 9)
(rozp.Dz.U.2004.132.1418,zał.4,cz.I,ust.10))
(rozp.Dz.U.2003.52.465, § 10 pkt 5)
(rozp.Dz.U.2003.52.465, § 3 pkt 10)
(rozp.Dz.U.2003.52.465, § 10 pkt 6)
(rozp.Dz.U.2003.52.465, § 9 pkt 4)
(rozp.Dz.U.2003.52.465, § 9 pkt 6)
(rozp.Dz.U.2003.52.465, § 9 pkt 7)
(rozp.Dz.U.2003.52.465, § 9 pkt 8)
(ustawa Dz.U.2004.33.288, art.27)
II. WODA
OCENA
1.
Wyniki badania wody;
2.
Program badania wody;
3.
Produkcja lodu (jakość lodu);
4.
Warunki przetrzymywania lodu (warunki i pojemniki);
5.
Woda używana do produkcji i utrzymania czystości;
6.
Sposób wykorzystania wody nieprzeznaczonej do spożycia przez ludzi;
7.
Instalacja doprowadzająca wodę (ilość wody dostosowana do liczby zatrudnionych i ilości przetwarzanych prod.
rybołówstwa);
8.
Woda morska pod ciśnieniem lub z instalacji uzdatniającej;
(rozp.Dz.U.2003.52.465, § 10 pkt 1)
(rozp.Dz.U.2003.52.465, § 10 pkt 1)
(rozp.Dz.U.2004.132.1418,zał.5,cz.I,ust.2, pkt.1)
(rozp.Dz.U.2004.132.1418,zał.5,cz.I,ust.2, pkt.2)
(rozp.Dz.U.2004.132.1418,zał.4,cz.II,A,ust.5)
(rozp.Dz.U.2004.132.1418,zał.4,cz.II,A,ust.6)
(rozp.Dz.U.2004.132.1418,zał.4,cz.I,ust.11,pkt 1)
(rozp.Dz.U.2004.132.1418,zał.4,cz.I,ust.11, pkt 1)
©_GIW_wersja 2005/05/02_SPIWET-18/zakład przetwórczy_rsm_CB
2
9.
Zaopatrzenie zakładu w odpowiednią ilość wody do celów spożywczych i gospodarczych;
10.
Zawory uniemożliwiające wstecznemu zasysaniu wody zainstalowane na punktach czerpalnych wody
przeznaczonej do spożycia przez ludzi;
11.
Oznaczenie instalacji doprowadzającej wodę;
12.
Instalacja doprowadzająca wodę nieprzeznaczoną do spożycia przez ludzi (lokalizacja);
(rozp.Dz.U.2003.52.465, § 3 pkt 11)
(rozp.Dz.U.2004.132.1418,zał.4,cz.I,ust.11,pkt 1)
(rozp.Dz.U.2004.132.1418,zał.4,cz.I,ust.12)
((rozp.Dz.U.2004.132.1418,zał.4,cz.I,ust.11,pkt 2)
III. PRACOWNICY I HIGIENA PRACOWNIKÓW
OCENA
1.
Odzież robocza;
2.
Nakrycia głowy;
3.
Mycie rąk (częstotliwość i rany);
4.
Środki opatrunkowe w przypadku skaleczeń/otarcia;
5.
Noszenie biżuterii i zegarków podczas pracy;
6.
Przestrzeganie zakazu palenia tytoniu, żucia gumy, jedzenia i picia w pomieszczeniach produkcyjnych i
magazynowych;
7.
Stan zdrowia pracowników;
8.
Zaświadczenia lekarskie;
9.
Kwalifikacje i przestrzeganie zasad higieny (pracownicy mający kontakt z prod. rybołówstwa);
10.
Higiena pracowników;
11.
Harmonogramy dot. szkoleń pracowników – dokumentacja z przeprowadzonych szkoleń;
(rozp.Dz.U.2004.132.1418,zał.4,cz.II,B,ust.1,pkt 1,lit.a)
(rozp.Dz.U.2004.132.1418,zał.4,cz.II,B,ust.1,pkt 1,lit.a)
(rozp.Dz.U.2004.132.1418,zał.4,cz.II,B,ust.1,pkt 1,lit.b)
(rozp.Dz.U.2004.132.1418,zał.4,cz.II,B,ust.1,pkt 1,lit.b)
(rozp.Dz.U.2004.132.1418,zał.4,cz.II,B,ust.1,pkt 2)
(rozp.Dz.U.2004.132.1418,zał.4,cz.II,B,ust.2)
(rozp.Dz.U.2004.132.1418,zał.4,cz.II,B,ust.3 i 4)
(rozp.Dz.U.2004.132.1418,zał.4,cz.II,B,ust.5)
(rozp.Dz.U.2004.132.1418,zał.4,cz.II,B,ust.6)
(rozp.Dz.U.2003.52.465, § 8)
(rozp.Dz.U.2003.52.465, § 9 pkt 11)
IV. POMIESZCZENIA I URZĄDZENIA SOCJALNE
1.
Szatnie dla personelu:
OCENA
- przepustowość;
(rozp.Dz.U.2004.132.1418,zał.4,cz.I,ust.14, pkt 3)
2.
- podłogi (nienasiąkliwe, łatwe do mycia);
(rozp.Dz.U.2004.132.1418,zał.4,cz.I,ust.14, pkt 3)
3.
4.
Strefa sanitarna (szatnie):
- natryski;
(rozp.Dz.U.2004.132.1418,zał.4,cz.I,ust.14, pkt 3)
- umywalki;
(rozp.Dz.U.2004.132.1418,zał.4,cz.I,ust.11, pkt 5 & ust.14, pkt 3)
5.
- ubikacje;
(rozp.Dz.U.2004.132.1418,zał.4,cz.I,ust.14, pkt 3)
6.
Toalety przyprodukcyjne;
7.
Stan czystości i porządku w pomieszczeniach socjalnych zakładu;
(rozp.Dz.U.2004.132.1418,zał.4,cz.I,ust.14, pkt 4)
(rozp.Dz.U.2003.52.465, § 3 pkt 2)
V. POMIESZCZENIA DLA PRZETWARZANIA WSTĘPNEGO I PRZETWARZANIA
1.
Pomieszczenia do przyjmowania i magazynowania surowców i gotowych produktów;
2.
Pomieszczenia do magazynowania opakowań;
3.
Pomieszczenia do przechowywania pojemników i kontenerów z ubocznymi prod. zwierzęcymi;
4.
Miejsca do odłuszczania, odgławiania, patroszenia, cięcia na płaty, porcjowania, filetowania, odskórzania i
rozdrabniania;
5.
Pomieszczenia do przetwarzania innego niż przetwarzanie wymienione powyżej;
6.
Oddzielne pomieszczenia lub wyodrębnione miejsca do wędzenia produktów rybołówstwa;
7.
Miejsce do przechowywania materiałów do wytwarzania dymu do wędzenia;
8.
Pomieszczenia lub wydzielone miejsca do marynowania, solenia lub solankowania;
9.
Odrębne miejsca do usuwania skorup lub muszli przy przetwarzaniu skorupiaków i mięczaków;
10.
Pomieszczenia do magazynowania schłodzonych skorupiaków i mięczaków;
11.
Pomieszczenie lub wydzielone miejsce z urządzeniami do sterylizacji konserw;
12.
Pomieszczenie lub wydzielona część pomieszczenia z wentylacją do osuszania konserw po sterylizacji lub po ich
myciu;
13.
Pomieszczenie do znakowania, etykietowania oraz pakowania konserw;
14.
Pomieszczenie do magazynowania konserw przed wysyłką;
15.
Pomieszczenie termostatowe (wyposażenie) lub wydzielone miejsce z cieplarką;
16.
Pomieszczenie lub wydzielone miejsce do badania szczelności i prawidłowości zamknięcia konserw;
17.
Pomieszczenie dla urzędowego lekarza weterynarii;
OCENA
(rozp.Dz.U.2004.132.1418,zał.4,cz.I,ust.14, pkt 1,lit.a)
(rozp.Dz.U.2004.132.1418,zał.4,cz.I,ust.14, pkt 1,lit.c)
(rozp.Dz.U.2004.132.1418,zał.4,cz.I,ust.9 & ust.14, pkt 1,lit.d)
(rozp.Dz.U.2004.132.1418,zał.4,cz.I,ust.14, pkt 2 & zał.5,cz.I,ust.5)
(rozp.Dz.U.2004.132.1418,zał.4,cz.I,ust.14, pkt 1,lit.b)
(rozp.Dz.U.2004.132.1418,zał.5,cz.IV,ust.21)
(rozp.Dz.U.2004.132.1418,zał.5,cz.IV,ust.23)
(rozp.Dz.U.2004.132.1418,zał.5,cz.IV,ust.25, pkt.1 i ust.26)
(rozp.Dz.U.2004.132.1418,zał.5,cz.IV,ust.27, pkt.2)
(rozp.Dz.U.2004.132.1418,zał.5,cz.IV,ust.27, pkt.2)
(rozp.Dz.U.2004.132.1418,zał.5,cz.IV,ust.8,pkt.2, lit.a)
(rozp.Dz.U.2004.132.1418,zał.5,cz.IV,ust.8,pkt.2, lit.b)
(rozp.Dz.U.2004.132.1418,zał.5,cz.IV,ust.8,pkt.2, lit.c)
(rozp.Dz.U.2004.132.1418,zał.5,cz.IV,ust.8,pkt.2, lit.d)
(rozp.Dz.U.2004.132.1418,zał.5,cz.IV,ust.8,pkt.2, lit.e)
(rozp.Dz.U.2004.132.1418,zał.5,cz.IV,ust.8,pkt.2, lit.f)
(rozp.Dz.U.2004.132.1418,zał.4,cz.I,ust.14, pkt 5 & ust.16)
©_GIW_wersja 2005/05/02_SPIWET-18/zakład przetwórczy_rsm_CB
3
18.
Wykorzystanie pomieszczeń, narzędzi i sprzętu do produkcji innej żywności;
19.
Myjnia środków transportu;
20.
Myjnia środków transportu poza zakładem;
21.
Podłogi (materiał, wykonanie i konstrukcja);
22.
Kratki lub kanały ściekowe (konstrukcja i wyposażenie);
23.
System odprowadzania ścieków;
24.
Ściany (materiały, wykonanie i kolor);
25.
Połączenia pomiędzy ścianami i podłogami;
26.
Sufity (powierzchnia i konstrukcja);
27.
Drzwi i futryny drzwiowe (materiał);
28.
Okna i futryny okienne (materiał);
29.
Urządzenia wentylacyjne i wyciągowe do pary;
30.
Skuteczność wentylacji;
31.
Oświetlenie;
32.
Umywalki (liczba, woda, obsługa);
33.
Środki do mycia i odkażania, jednorazowe ręczniki i pojemniki;
34.
Urządzenia do utrzymania czystości oraz do mycia narzędzi i sprzętu;
35.
Wyposażenie pomieszczeń produkcyjnych w niezbędne urządzenia, aparaturę i sprzęt;
36.
Narzędzia i sprzęt w zakładzie przetwórczym (materiały, mycie i odkażanie, stan);
37.
Pojemniki transportowe i magazynowe dla świeżych prod. rybołówstwa (konstrukcja);
38.
Pojemniki i kontenery na uboczne produkty zwierzęce (materiał i wykonanie);
39.
Pojemniki i kontenery do przetrzymywania produktów akwakultury w stanie żywym;
40.
Urządzenia zapewniające warunki właściwe dla prod. akwakultury;
41.
Połączenie z kanalizacją urządzeń, w których jest używana woda;
(rozp.Dz.U.2004.132.1418,zał.4,cz.II,A,ust.4)
(rozp.Dz.U.2004.132.1418,zał.4,cz.I,ust.14, pkt 6)
(rozp.Dz.U.2004.132.1418,zał.4,cz.I,ust.15)
(rozp.Dz.U.2004.132.1418,zał.4,cz.I,ust.4,pkt 1)
(rozp.Dz.U.2004.132.1418,zał.4,cz.I,ust.4,pkt 1)
(rozp.Dz.U.2004.132.1418,zał.4,cz.I,ust.11,pkt 4)
(rozp.Dz.U.2004.132.1418,zał.4,cz.I,ust.4,pkt 2)
(rozp.Dz.U.2004.132.1418,zał.4,cz.I,ust.4,pkt 3)
(rozp.Dz.U.2004.132.1418,zał.4,cz.I,ust.4,pkt 4)
(rozp.Dz.U.2004.132.1418,zał.4,cz.I,ust.4,pkt 5)
(rozp.Dz.U.2004.132.1418,zał.4,cz.I,ust.4,pkt 5)
(rozp.Dz.U.2004.132.1418,zał.4,cz.I,ust.5,pkt 1)
(rozp.Dz.U.2003.52.465, § 3 pkt 4)
(rozp.Dz.U.2004.132.1418,zał.4,cz.I,ust.5,pkt 2)
(rozp.Dz.U.2004.132.1418,zał.4,cz.I,ust.5,pkt 3 & ust.11,pkt 5)
(rozp.Dz.U.2004.132.1418,zał.4,cz.I,ust.5,pkt 3 & ust.11,pkt 5)
(rozp.Dz.U.2004.132.1418,zał.4,cz.I,ust.5,pkt 4)
(rozp.Dz.U.2003.52.465, § 3 pkt 5)
(rozp.Dz.U.2004.132.1418,zał.4,cz.I,ust.8)
(rozp.Dz.U.2004.132.1418,zał.5,cz.I,ust.7)
(rozp.Dz.U.2004.132.1418,zał.4,cz.I,ust.9)
(rozp.Dz.U.2004.132.1418,zał.4,cz.I,ust.13, pkt 1)
(rozp.Dz.U.2004.132.1418,zał.4,cz.I,ust.13, pkt 2)
(rozp.Dz.U.2004.132.1418,zał.4,cz.I,ust.11,pkt 3)
VI. KOMORY CHŁODNICZE
1.
Podłogi (materiał, wykonanie i konstrukcja);
2.
Kratki lub kanały ściekowe (konstrukcja i wyposażenie);
3.
Ściany (materiały i wykonanie);
4.
Sufity (powierzchnia i konstrukcja);
5.
Drzwi i futryny drzwiowe (materiał);
6.
Oświetlenie;
7.
Urządzenia chłodnicze;
8.
Urządzenia do zamrażania prod. rybołówstwa (obniżenie temp.);
9.
Urządzenia do zamrażania prod. rybołówstwa (utrzymanie temp.);
10.
Urządzenia do rejestrowania temp.;
11.
Rozmieszczenie czujek;
12.
Dokumentacja;
OCENA
(rozp.Dz.U.2004.132.1418,zał.4,cz.I,ust.4,pkt 1)
(rozp.Dz.U.2004.132.1418,zał.4,cz.I,ust.4,pkt 1)
(rozp.Dz.U.2004.132.1418,zał.4,cz.I,ust.4,pkt 2,lit.a)
(rozp.Dz.U.2004.132.1418,zał.4,cz.I,ust.4,pkt 4)
(rozp.Dz.U.2004.132.1418,zał.4,cz.I,ust.4,pkt 5)
(rozp.Dz.U.2004.132.1418,zał.4,cz.I,ust.5,pkt 2)
(rozp.Dz.U.2004.132.1418,zał.4,cz.I,ust.7)
(rozp.Dz.U.2004.132.1418,zał.5,cz.II,ust.1, pkt.1)
(rozp.Dz.U.2004.132.1418,zał.5,cz.II,ust.1, pkt.2)
(rozp.Dz.U.2004.132.1418,zał.5,cz.II,ust.4)
(rozp.Dz.U.2004.132.1418,zał.5,cz.II,ust.4)
(rozp.Dz.U.2004.132.1418,zał.5,cz.II,ust.5)
VII. PROCESY PRODUKCYJNE
OCENA
1.
Dokumentacja procesów przetwórczych;
2.
Schładzanie i składowanie świeżych prod. rybołówstwa;
3.
Płukanie wstępnie przetworzonych prod. rybołówstwa;
4.
Warunki odskórzania, filetowania, cięcia na płaty, rozdrabniania i porcjowania;
5.
Produkty wstępnie przetworzone niepoddawane zamrożeniu schładza się;
6.
Usuwanie wnętrzności i części produktów rybołówstwa nieprzeznaczonych do spożycia (sposób usuwania);
(rozp.Dz.U.2004.132.1418,zał.5,cz.IV,ust.31 i 32)
(rozp.Dz.U.2004.132.1418,zał.5,cz.I,ust.1)
(rozp.Dz.U.2004.132.1418,zał.5,cz.I,ust.3)
(rozp.Dz.U.2004.132.1418,zał.5,cz.I,ust.4)
(rozp.Dz.U.2004.132.1418,zał.5,cz.I,ust.4)
(rozp.Dz.U.2004.132.1418,zał.5,cz.I,ust.6, 8,9 i 10 )
©_GIW_wersja 2005/05/02_SPIWET-18/zakład przetwórczy_rsm_CB
4
7.
Mrożenie całych ryb w solance do produkcji konserw (warunki, solanka);
8.
Zamrażanie świeżych prod. rybołówstwa (wymagania);
9.
Rozmrażanie prod. rybołówstwa (warunki higieniczne);
10.
Rozmrażanie prod. rybołówstwa (warunki temp.);
11.
Cel rozmrażania prod. rybołówstwa;
12.
Przetwarzanie świeżych, mrożonych i rozmrożonych prod. rybołówstwa (wymagania);
13.
Przetwarzanie małż dwuskorupowych i ślimaków morskich – decyzja 03/774/WE (wymagania);
14.
Instalacja wentylacyjna zapobiegająca przedostawaniu się dymu i ciepła z wędzarni do pozostałych części
zakładu;
15.
Materiały używane do wytwarzania dymu do wędzenia;
16.
Chłodzenie produktów po wędzeniu;
17.
Sposób przechowywania soli;
18.
Sól użyta w poprzednim cyklu produkcyjnym;
19.
Zbiorniki do solenia lub solankowania (konstrukcja);
20.
Zbiorniki lub powierzchnie do solenia lub solankowania (czystość);
21.
Niezwłoczne schładzanie skorupiaków i mięczaków po gotowaniu (warunki);
22.
Usuwanie skorup lub muszli skorupiaków i mięczaków (warunki i sposób);
23.
Skorupiaki i mięczaki niepodlegające zamrożeniu schładza się;
24.
Mycie i odkażanie urządzeń i sprzętu do przetwarzania skorupiaków i mięczaków;
25.
Wymagania mikrobiologiczne dla gotowanych skorupiaków i mięczaków – decyzja 93/51/EWG;
26.
Mechaniczne odzyskiwanie mięsa ryb po uprzednim wypatroszeniu i wypłukaniu;
27.
Sposób wykorzystania mięsa odzyskanego mechanicznie;
28.
Mycie urządzeń do mechanicznego odzyskiwania mięsa ryb (częstotliwość);
29.
Jakość wody przy produkcji sterylizowanych konserw;
30.
Obróbka cieplna sterylizowanych konserw (parametry);
31.
Dokumentacja dot. przebiegu obróbki cieplnej;
32.
Urządzenia do przeprowadzenia obróbki cieplnej (wyposażenie);
33.
Źródło zasilania parą wodną (ciśnienie i wydajność);
34.
Urządzenia do mechanicznego mycia napełnionych opakowań;
35.
Sposób mycia napełnionych opakowań (gorąca woda);
36.
Urządzenia do mycia konserw (jeżeli konieczne);
37.
Czyste opakowania do produkcji konserw sterylizowanych;
38.
Prawidłowość przebiegu sterylizacji - wykres;
39.
Wskazania i zapisy automatycznego urządzenia a wskazania termometru rtęciowego;
40.
Prawidłowość przebiegu procesu sterylizacji;
41.
Zegar i tablica informacyjna z parametrami procesów sterylizacji;
42.
43.
44.
Prowadzone badania:
(rozp.Dz.U.2004.132.1418,zał.5,cz.II,ust.2)
(rozp.Dz.U.2004.132.1418,zał.5,cz.II,ust.3)
(rozp.Dz.U.2004.132.1418,zał.5,cz.III,ust.1)
(rozp.Dz.U.2004.132.1418,zał.5,cz.III,ust.2)
(rozp.Dz.U.2004.132.1418,zał.5,cz.III,ust.3)
(rozp.Dz.U.2004.132.1418,zał.5,cz.IV,ust.1)
(rozp.Dz.U.2004.132.1418,zał.5,cz.IV,ust.2)
(rozp.Dz.U.2004.132.1418,zał.5,cz.IV,ust.21)
(rozp.Dz.U.2004.132.1418,zał.5,cz.IV,ust.22)
(rozp.Dz.U.2004.132.1418,zał.5,cz.IV,ust.24)
(rozp.Dz.U.2004.132.1418,zał.5,cz.IV,ust.25, pkt.2)
(rozp.Dz.U.2004.132.1418,zał.5,cz.IV,ust.25, pkt.2)
(rozp.Dz.U.2004.132.1418,zał.5,cz.IV,ust.25, pkt.3)
(rozp.Dz.U.2004.132.1418,zał.5,cz.IV,ust.25, pkt.4)
(rozp.Dz.U.2004.132.1418,zał.5,cz.IV,ust.27, pkt.1)
(rozp.Dz.U.2004.132.1418,zał.5,cz.IV,ust.27, pkt.2)
(rozp.Dz.U.2004.132.1418,zał.5,cz.IV,ust.27, pkt.2)
(rozp.Dz.U.2004.132.1418,zał.5,cz.IV,ust.27, pkt.3)
(rozp.Dz.U.2004.132.1418,zał.5,cz.IV,ust.27, pkt.4)
(rozp.Dz.U.2004.132.1418,zał.5,cz.IV,ust.28)
(rozp.Dz.U.2004.132.1418,zał.5,cz.IV,ust.29)
(rozp.Dz.U.2004.132.1418,zał.5,cz.IV,ust.30)
(rozp.Dz.U.2004.132.1418,zał.5,cz.IV,ust.5,pkt.1)
(rozp.Dz.U.2004.132.1418,zał.5,cz.IV,ust.5,pkt.2)
(rozp.Dz.U.2004.132.1418,zał.5,cz.IV,ust.6)
(rozp.Dz.U.2004.132.1418,zał.5,cz.IV,ust.7,pkt.1 i ust.9, pkt. 1,2 i 3)
(rozp.Dz.U.2004.132.1418,zał.5,cz.IV,ust.7,pkt.2)
(rozp.Dz.U.2004.132.1418,zał.5,cz.IV,ust.7,pkt.3)
(rozp.Dz.U.2004.132.1418,zał.5,cz.IV,ust.7,pkt.3)
(rozp.Dz.U.2004.132.1418,zał.5,cz.IV,ust.7,pkt.4)
(rozp.Dz.U.2004.132.1418,zał.5,cz.IV,ust.8,pkt.1)
(rozp.Dz.U.2004.132.1418,zał.5,cz.IV,ust.10)
(rozp.Dz.U.2004.132.1418,zał.5,cz.IV,ust.11)
(rozp.Dz.U.2004.132.1418,zał.5,cz.IV,ust.12)
(rozp.Dz.U.2004.132.1418,zał.5,cz.IV,ust.17)
- wizualne badania zamknięcia opakowań konserw;
(rozp.Dz.U.2004.132.1418,zał.5,cz.IV,ust.13, pkt.1)
- badanie parametrów podwójnej zakładki;
(rozp.Dz.U.2004.132.1418,zał.5,cz.IV,ust.13, pkt.2)
- testy termostatowe;
(rozp.Dz.U.2004.132.1418,zał.5,cz.IV,ust.13, pkt.3)
45.
- badania mikrobiologiczne;
(rozp.Dz.U.2004.132.1418,zał.5,cz.IV,ust.13, pkt.4)
46.
Badania (a, b i c powyżej) na próbkach pobranych z każdej partii sterylizowanych konserw;
47.
Badania (d powyżej) zgodnie z planem (zatwierdzone laboratorium);
48.
Jakość wody przy chłodzeniu sterylizowanych konserw;
(rozp.Dz.U.2004.132.1418,zał.5,cz.IV,ust.14)
(rozp.Dz.U.2004.132.1418,zał.5,cz.IV,ust.15 i 16)
(rozp.Dz.U.2004.132.1418,zał.5,cz.IV,ust.18)
©_GIW_wersja 2005/05/02_SPIWET-18/zakład przetwórczy_rsm_CB
5
49.
Chłodzenie konserw wodą chlorowaną (monitoring wolnego chloru);
50.
Kontrola wzrokowa obecności pasożytów (wykrycie i usuniecie);
51.
Postępowanie z rybami i produktami z ryb w których stwierdzono obecność pasożytów;
52.
Zastosowanie zamrażania –200C przez co najmniej 24 godziny – niszczenie pasożytów;
53.
Informacja o powyższym procesie na opakowaniu;
54.
Badanie wzrokowe ryb i produktów z ryb celem wykrycia pasożytów – decyzja 93/140/EWG
(rozp.Dz.U.2004.132.1418,zał.5,cz.IV,ust.19 i 20)
(rozp.Dz.U.2004.132.1418,zał.5,cz.V,ust.1)
(rozp.Dz.U.2004.132.1418,zał.5,cz.V,ust.2)
(rozp.Dz.U.2004.132.1418,zał.5,cz.V,ust.3)
(rozp.Dz.U.2004.132.1418,zał.5,cz.V,ust.4)
(rozp.Dz.U.2004.132.1418,zał.5,cz.V,ust.5)
VIII. PAKOWANIE, ZNAKOWANIE, SKŁADOWANIE, TRANSPORT
OCENA
1.
Informacja o rozmrożeniu na produktach umieszczanych na rynku;
2.
Warunki przechowywania prod. solonych, wędzonych, suszonych lub marynowanych (informacja na
opakowaniach);
3.
Znak identyfikacyjny partii konserw sterylizowanych;
4.
Sposób pakowania;
5.
Wymagania dla opakowań (czyste, wytrzymałe i wymagania formalne);
6.
Wymagania dla magazynowania opakowań;
7.
Ponowne wykorzystanie opakowań dla produktów rybołówstwa;
8.
Opakowania dla świeżych produktów rybołówstwa magazynowanych w lodzie (konstrukcja);
9.
Znakowanie gotowych produktów;
10.
Znak weterynaryjny;
11.
Znakowanie w zakładach zatwierdzonych do handlu;
12.
Znakowanie w zakładach posiadających odstępstwa (okres przejściowy);
13.
Nieumieszczanie znaku weterynaryjnego;
14.
Magazynowanie produktów rybołówstwa (warunki temperaturowe);
15.
Magazynowanie i/lub transportowanie produktów rybołówstwa (warunki ogólne);
16.
Transportowanie produktów rybołówstwa (warunki ogólne);
17.
Transportowanie mrożonych prod. rybołówstwa (warunki odstępstwa);
(rozp.Dz.U.2004.132.1418,zał.5,cz.III,ust.4)
(rozp.Dz.U.2004.132.1418,zał.5,cz.IV,ust.3)
(rozp.Dz.U.2004.132.1418,zał.5,cz.IV,ust.4)
(rozp.Dz.U.2004.132.1418,zał.7,ust.1)
(rozp.Dz.U.2004.132.1418,zał.7,ust.2, pkt.1 i 2)
(rozp.Dz.U.2004.132.1418,zał.7,ust.2, pkt.3 i 4)
(rozp.Dz.U.2004.132.1418,zał.7,ust.3)
(rozp.Dz.U.2004.132.1418,zał.7,ust.4)
(rozp.Dz.U.2004.132.1418,zał.7,ust.5)
(rozp.Dz.U.2004.132.1418,zał.7,ust.6, 7, 8, 9 i 10)
(rozp.Dz.U.2004.132.1418,zał.7,ust.11)
(rozp.Dz.U.2004.132.1418,zał.7,ust.12)
(rozp.Dz.U.2004.132.1418,zał.7,ust.13)
(rozp.Dz.U.2004.132.1418,zał.8,ust.1)
(rozp.Dz.U.2004.132.1418,zał.8,ust.2 i 3)
(rozp.Dz.U.2004.132.1418,zał.8,ust.4)
(rozp.Dz.U.2004.132.1418,zał.8,ust.5)
IX. UBOCZNE PRODUKTY POCHODZENIA ZWIERZĘCEGO (1774/2002/WE)
OCENA
1.
Prawidłowość kategoryzacji ubocznych produktów pochodzenia zwierzęcego;
2.
Segregacja ubocznych produktów pochodzenia zwierzęcego;
3.
Prawidłowość barwienia SRM;
4.
Prawidłowość oznakowania pojemników używanych do gromadzenia ubocznych produktów pochodzenia
zwierzęcego na terenie zakładu;
5.
Przekazywanie ubocznych produktów pochodzenia zwierzęcego do zakładów uprawnionych do ich odbioru
(zatwierdzonych przez PLW);
6.
Kontrola wagi ubocznych produktów pochodzenia zwierzęcego kierowanych do uprawnionych zakładów
(zgodność dokumentacji z Instrukcją GLW Nr GIWpuf.513utyl.1/2005 z dnia 27 stycznia 2005 r.);
7.
Prawidłowość stosowania dokumentów handlowych;
8.
Prawidłowość prowadzenia rejestrów odbiorców ubocznych produktów pochodzenia zwierzęcego;
9.
Kontrola mycia i dezynfekcji pojemników służących do zbierania ubocznych produktów pochodzenia
zwierzęcego;
10.
Kontrola kontenerów wielorazowego użytku mająca na celu uniknięcie skażenia krzyżowego;
11.
Prawidłowość zagospodarowania treści jelit i odchodów;
12.
Prawidłowość postępowania z krwią pozyskiwaną od przeżuwaczy w trakcie uboju w zakresie jej przeznaczenia
jako uboczny produkt pochodzenia zwierzęcego;
13.
Stosowanie przez zakład syfonów kanalizacyjnych lub sita z otworami lub oczkami o rozmiarze nie większym niż
6 mm na końcowym etapie procesu przetwórczego, lub z równoważnych systemów, zapewniających zatrzymanie
stałych cząsteczek o rozmiarze przekraczającym 6 mm.;
(rozp.1774/2002/WE,art.4,5, i 6)
(rozp.1774/2002/WE,art.4,5, i 6)
(rozp.999/2001/WE,art.8)
(rozp.1774/2002/WE,zał.II,rozdz.I)
(rozp.1774/2002/WE,art.4,5,6 i 23)
(rozp.1774/2002/WE,art.7 i 9)
(rozp.1774/2002/WE,art.7,ust.2 i ro zp.93/2005)
(rozp.1774/2002/WE,art.9,ust.1)
(rozp.1774/2002/WE,zał.II,rozdz.II,pkt 2)
(rozp.1774/2002/WE,zał.II,rozdz.II,pkt 3)
(rozp.1774/2002/WE,art.5,ust.2)
(rozp.1774/2002/WE,art.6,ust.1,lit.d)
(rozp.808/2003, rozdz.IX,pkt 1)
©_GIW_wersja 2005/05/02_SPIWET-18/zakład przetwórczy_rsm_CB
6
14.
Posiadanie procedur pisemnych, określających sposób postępowania z ubocznymi produktami pochodzenia
zwierzęcego na każdym etapie ich produkcji;
(rozp.1774/2002/WE,art.25)
X. KONTROLA WEWNĘTRZNA W ZAKŁADZIE
OCENA
1.
Przestrzeganie zasad Dobrej Praktyki Produkcyjnej (GMP);
2.
Przestrzeganie zasad Dobrej Praktyki Higienicznej (GHP);
3.
Identyfikacja zagrożeń jakości zdrowotnej żywności (F, C, M);
4.
Analiza/ocena i ryzyko wystąpienia zagrożeń jakości zdrowotnej żywności;
5.
Ustalenie środków kontroli i metod przeciwdziałania zagrożeniom jakości zdrowotnej żywności;
6.
Określenie krytycznych punktów kontroli (wyeliminowanie lub zminimalizowanie zagrożeń);
7.
Ustalenie dla krytycznych punktów kontroli wymagań (parametrów) i określenie granic tolerancji (limitów
krytycznych);
8.
Ustalenie i wprowadzenie systemu monitorowania i kontrolowania krytycznych punktów kontroli;
9.
Ustalenie działań korygujących dla krytycznych punktów kontroli;
10.
Ustalenie procedur weryfikacji i przeglądu dla systemu HACCP;
11.
Utworzenie dokumentacji dotyczącej wszystkich procedur i obserwacji dotyczących systemu HACCP (Plan
systemu HACCP);
12.
Zgodność z zasadami z decyzji 94/356/EWG;
13.
Plan pobierania próbek (skuteczność mycia i odkażania);
14.
Plan pobierania próbek gotowych produktów (np. celem określenia terminu przydatności do spożycia);
15.
Dokumentacja (procesy przetwarzania, kontrole oraz badania laboratoryjne);
16.
Badania organoleptyczne i chemiczne;
17.
Badania określone w decyzji 95/149/EWG;
18.
Badania dotyczące histaminy;
(rozp.Dz.U.2004.132.1418,zał.6,cz.II,ust.1, pkt.1)
(rozp.Dz.U.2004.132.1418,zał.6,cz.II,ust.1, pkt.1)
(ustawa Dz.U.2001.63.634 z późn.zm. art.29 ust. 1 pkt 1)
(ustawa Dz.U.2001.63.634 z późn.zm. art.29 ust. 1 pkt 1)
(ustawa Dz.U.2001.63.634 z późn.zm. art.29 ust. 1 pkt 1)
(ustawa Dz.U.2001.63.634 z późn.zm. art.29 ust. 1 pkt 2 i rozp.Dz.U.2003.52.465, § 11, pkt.2)
(ustawa Dz.U.2001.63.634 z późn.zm. art.29 ust. 1 pkt 3)
(ustawa Dz.U.2001.63.634 z późn.zm. art.29 ust. 1 pkt 4 i rozp.Dz.U.2003.52.465, § 11, pkt.3)
(ustawa Dz.U.2001.63.634 z późn.zm. art.29 ust. 1 pkt 5 i rozp.Dz.U.2003.52.465, § 11, pkt.4)
(ustawa Dz.U.2001.63.634 z późn.zm. art.29 ust. 2)
(ustawa Dz.U.2001.63.634 z późn.zm. art.29 i rozp.Dz.U.2003.52.465, § 11, pkt.1)
(rozp.Dz.U.2004.132.1418,zał.6,cz.II,ust.1, pkt.2)
(rozp.Dz.U.2004.132.1418,zał.6,cz.II,ust.1, pkt.3)
(rozp.Dz.U.2004.132.1418,zał.6,cz.II,ust.1, pkt.4)
(rozp.Dz.U.2004.132.1418,zał.6,cz.II,ust.1, pkt.5)
(rozp.Dz.U.2004.132.1418,zał.6,cz.II,ust.2 i 4)
(rozp.Dz.U.2004.132.1418,zał.6,cz.II,ust.5, pkt.1)
(rozp.Dz.U.2004.132.1418,zał.6,cz.II,ust.5, pkt.2 i ust.6 i 7)
XI. OPIS NIEPRAWIDŁOWOŚCI WYKAZANYCH W KOLUMNIE „OCENA”:
©_GIW_wersja 2005/05/02_SPIWET-18/zakład przetwórczy_rsm_CB
7
©_GIW_wersja 2005/05/02_SPIWET-18/zakład przetwórczy_rsm_CB
8
XII. USTALENIE DATY USUNIĘCIA NIEPRAWIDŁOWOŚCI ZAZNACZONYCH LITERĄ „N”:
©_GIW_wersja 2005/05/02_SPIWET-18/zakład przetwórczy_rsm_CB
9
XIII. ZAKŁAD W OCENIE KONTROLUJĄCYCH:
©_GIW_wersja 2005/05/02_SPIWET-18/zakład przetwórczy_rsm_CB
10
XIV. UWAGI I ZASTRZEŻENIA KONTROLOWANEGO DO NINIEJSZEGO PROTOKOŁU:
©_GIW_wersja 2005/05/02_SPIWET-18/zakład przetwórczy_rsm_CB
11
miejscowość, dnia
...........................................................................................
...........................................................................................
Podpis i pieczęć osoby odpowiedzialnej
Podpis i pieczęć urzędowego lekarza weterynarii
Otrzymują:
1. kontrolowany – j.w.
2. ..................................................
3. a/a
Potwierdzenie odbioru:
1. kontrolowany 2. PLW –
3. a/a
Właściciel odmówił podpisania protokołu z kontroli Nr ......................................................................
z powodu:
Miejscowość, data .......................................
......................................................................
podpis przedstawiciela zakładu
©_GIW_wersja 2005/05/02_SPIWET-18/zakład przetwórczy_rsm_CB
12