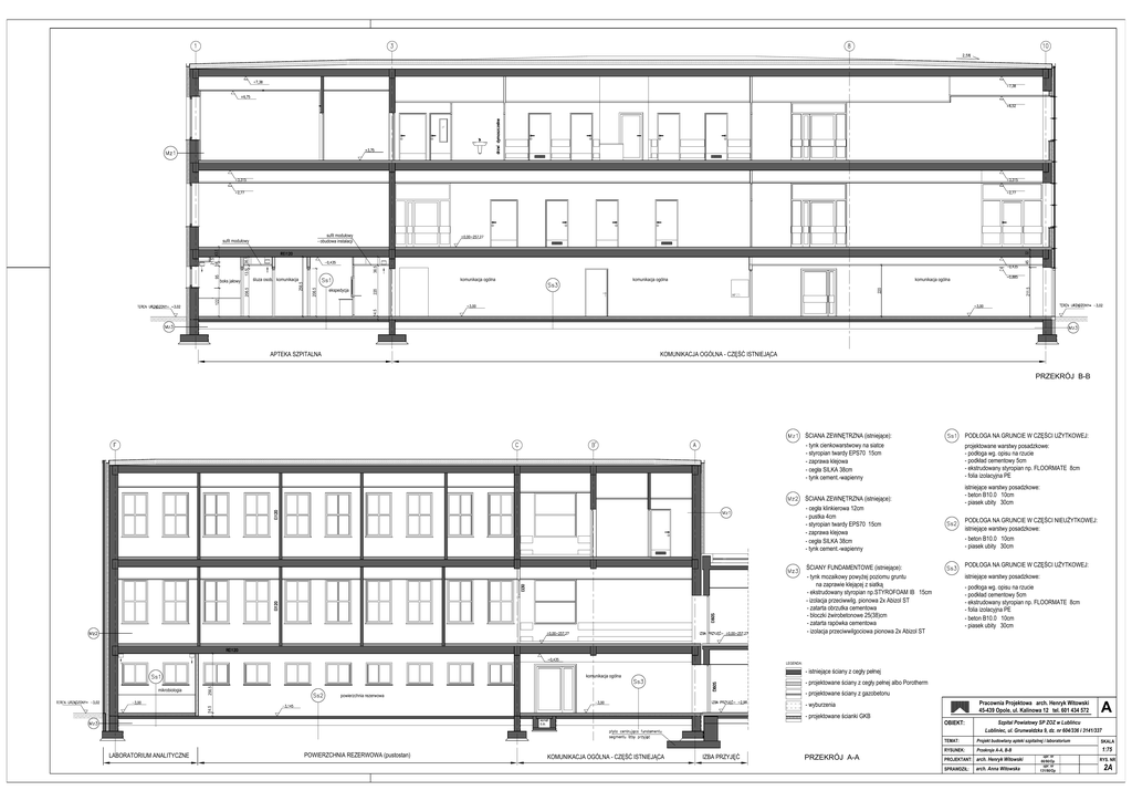
przekrój aa przekrój bb

Transkrypt

przekrój aa przekrój bb
sufit modułowy
- obudowa instalacji
220
211.5
komunikacja ogólna
220
ekspedycja
komunikacja ogólna
14.5
122
206.5
komunikacja ogólna
206.5
śluza osob. komunikacja
boks jałowy
256.5
95
13.5
36.5
45
36.5
32
21.5
18 43.5
sufit modułowy
APTEKA SZPITALNA
KOMUNIKACJA OGÓLNA - CZĘŚĆ ISTNIEJĄCA
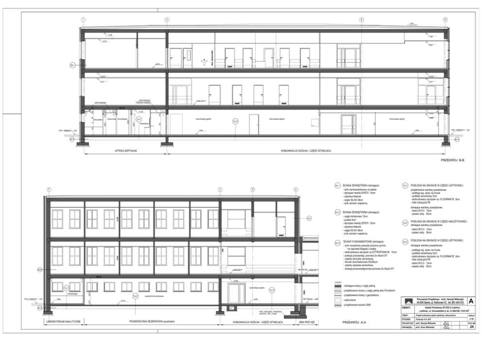
PRZEKRÓJ B-B
PODŁOGA NA GRUNCIE W CZĘŚCI UŻYTKOWEJ:
ŚCIANA ZEWNĘTRZNA (istniejące):
- tynk cienkowarstwowy na siatce
- styropian twardy EPS70 15cm
- zaprawa klejowa
- cegła SILKA 38cm
- tynk cement.-wapienny
projektowane warstwy posadzkowe:
- podłoga wg. opisu na rzucie
- podkład cementowy 5cm
- ekstrudowany styropian np. FLOORMATE 8cm
- folia izolacyjna PE
istniejące warstwy posadzkowe:
- beton B10.0 10cm
- piasek ubity 30cm
ŚCIANA ZEWNĘTRZNA (istniejące):
- cegła klinkierowa 12cm
- pustka 4cm
- styropian twardy EPS70 15cm
- zaprawa klejowa
- cegła SILKA 38cm
- tynk cement.-wapienny
PODŁOGA NA GRUNCIE W CZĘŚCI NIEUŻYTKOWEJ:
istniejące warstwy posadzkowe:
- beton B10.0 10cm
- piasek ubity 30cm
PODŁOGA NA GRUNCIE W CZĘŚCI UŻYTKOWEJ:
ŚCIANY FUNDAMENTOWE (istniejące):
- tynk mozaikowy powyżej poziomu gruntu
na zaprawie klejącej z siatką
- ekstrudowany styropian np.STYROFOAM IB 15cm
- izolacja przeciwwilg. pionowa 2x Abizol ST
- zatarta obrzutka cementowa
- bloczki żwirobetonowe 25(38)cm
- zatarta rapówka cementowa
- izolacja przeciwwilgociowa pionowa 2x Abizol ST
istniejące warstwy posadzkowe:
- podłoga wg. opisu na rzucie
- podkład cementowy 5cm
- ekstrudowany styropian np. FLOORMATE 8cm
- folia izolacyjna PE
- beton B10.0 10cm
- piasek ubity 30cm
LEGENDA:
- istniejące ściany z cegły pełnej
komunikacja ogólna
256.5
- projektowane ściany z cegły pełnej albo Porotherm
mikrobiologia
- projektowane ściany z gazobetonu
powierzchnia rezerwowa
Pracownia Projektowa arch. Henryk Witowski
45-439 Opole, ul. Kalinowa 12 tel. 601 434 572
14.5
- wyburzenia
A
- projektowane ścianki GKB
OBIEKT:
LABORATORIUM ANALITYCZNE
POWIERZCHNIA REZERWOWA (pustostan)
KOMUNIKACJA OGÓLNA - CZĘŚĆ ISTNIEJĄCA
IZBA PRZYJĘĆ
PRZEKRÓJ A-A
Szpital Powiatowy SP ZOZ w Lublińcu
Lubliniec, ul. Grunwaldzka 9, dz. nr 604/336 i 3141/337
TEMAT:
Projekt budowlany apteki szpitalnej i laboratorium
SKALA
RYSUNEK:
Przekroje A-A, B-B
1:75
PROJEKTANT: arch. Henryk Witowski
SPRAWDZIŁ:
arch. Anna Witowska
upr. nr
66/90/Op
upr. nr
131/90/Op
RYS. NR
2A