28 rys_D11 okno w scianach osl - Poznań

Transkrypt

28 rys_D11 okno w scianach osl - Poznań
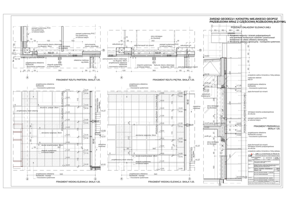
ZARZĄD GEODEZJI I KATASTRU MIEJSKIEGO GEOPOZ
PRZEBUDOWA WRAZ Z CZĘŚCIOWĄ ROZBUDOWĄ BUDYNKU
PODZIAŁY OKŁADZINY ELEWACYJNEJ
D
360
59
61
60
+9.60
60
zamurowanie otworu okiennego
na długości: 58cm
projektowana okładzina
KERAION
- mocowanie systemowe
okapnik systemowy
w kolorze białym
39
EI30
O1
okapnik systemowy
w kolorze białym
120
wykucie otworu okiennego
na długości: 18cm
360
płyta fermacell lub minerit
60
60
+8.16
projektowana okładzina
KERAION
- mocowanie systemowe
+2.40
357
3
+1.20
+0.60
212
+1.15
+0.05
236
238
28
55
57
+5.95
+5.37
+4.80
+4.75
+4.20
+4.27
+4.17
+3.93
18
+4.80
okapnik systemowy
w kolorze białym
+3.93
+3.62
istniejąca ścianka podparapetowa
do skucia
parapet systemowy PVC
w kolorze białym
FRAGMENT PRZEKROJU.
SKALA 1:25.
projektowana okładzina
KERAION montaż - mocowanie systemowe
okno istniejące
do likwidacji
płyta fermacell lub minerit
istniejąca ścianka podparapetowa
do skucia
ocieplenie wełna mineralna z folią zabezp.
a
ur
kt
ite
ch
ar acje
z
ali je
re tyc
s
we
in
+4.27
+3.60
+3.60
ARCHITEKTURA
ZG-FBZ.
3420-35/08
STADIUM DOKUMENTACJI
BRANŻA
UMOWA NR
INWESTOR:
ZAMAWIAJĄCY:
TEMAT:
PROJEKTOWAŁ:
4
projektowana okładzina
KERAION - montaż
- mocowanie systemowe
540
3
FRAGMENT WIDOKU ELEWACJI. SKALA 1:25.
4
projektowana okładzina
KERAION - montaż
- mocowanie systemowe
spółka z o.o. 61-623 Poznań, ul. Wilczak 16A
tel./fax 061 820 85 93, e-mail: [email protected]
PROJEKT WYKONAWCZY
DETALE
OBIEKT:
5
±0.00
SC-02
5
115
5
360
projektowany otwór okienny
BS-01
+6.00
5
+5.40
58
+7.15
+4,27-proj. poziom pietra
profil g-k
skucie ścianki podpar. 28cm
±0.00
+7.20
+6.00
okładzina
meblowa
+1.20
5
okapnik systemowy
w kolorze białym
+2.51
110
39
obniżenie nadproża: 24cm
28
skucie ścianki podpar. 49cm
115
+1.80
+2.35
SC-02
5
+2.40
+8.35
360
obniżenie nadproża: 36cm
+6.60
płyta fermacell lub minerit
okno istniejące
do likwidacji
57
+2.69
+7.20
+7.10
36
BS-01
+7.80
projektowana okładzina
KERAION
- mocowanie systemowe
49
+3.55
+8.40
okładzina
meblowa
balustrada h=110cm
wg detalu
+3.60
5
+3.60
+4.27
+9.55
115
+4.20
+8.40
5
+4.75
24
5
+4.80
+9.00
+7.26
przestrzeń
instalacyjna
115
balustrada h=110cm
wg detalu
115
+5.95
+4.80
+3.00
+7.22
+7.07
+9.60
115
5
+9.60
5
36
projektowany otwór okienny
+5.40
+7.46
+6.00
115
PODZIAŁY OKŁADZINY ELEWACYJNEJ
skucie śc. podpar. 28cm
71
profil g-k
projektowana okładzina
KERAION
- mocowanie systemowe
+6.00
nadproże stalowe
NS-01
70
3
FRAGMENT RZUTU PIĘTRA. SKALA 1:25.
71
4
ocieplenie wełna mineralna z folią zabezp.
180
3
FRAGMENT RZUTU PARTERU. SKALA 1:25.
PODZIAŁY OKŁADZINY ELEWACYJNEJ
4
60
O3
EI30
D
PODZIAŁY OKŁADZINY ELEWACYJNEJ
360
120
okładzina meblowa
wg detalu
zabudowa g-k
NS-01
17
EI30
parapet systemowy PVC
w kolorze białym
płyta fermacell lub minerit
60
zabudowa g-k
zamurowanie
otworu okiennego
18
242
projektowana okładzina
KERAION
- mocowanie systemowe
72
342
NS-01
okładzina sytemowa KERAION
20
58
SS-01
zamurowanie otworu okiennego
okno istniejące
na długości: 39cm
do likwidacji
49
17
-0,14
40
60
UWAGA:
1. Wysokości nadproży i ścianek podparapetowych
oraz szerokość koniecznych rozbiórek i przemurowań
dostosować do układu okładziny elewacyjnej.
2. Mocowanie okładziny elewacyjnej - rozwiązanie systemowe.
SS-01
153
60
360
240
12
60
okno istniejące
do likwidacji
10
24 29
195
17
13
40
24 29
50
39
parapet systemowy PVC
lub postforming
w kolorze białym
wsp. żelb.
19
29
60
65
parapet systemowy PVC
lub postforming
w kolorze białym
540
Zarząd Geodezji i Katastru Miejskiego GEOPOZ
ul. Gronowa 20, 61-827 Poznań
PRZEBUDOWA WRAZ Z CZĘŚCIOWĄ ROZBUDOWĄ ISTNIEJĄCEGO
BUDYNKU ( dobudowa zewnętrznej klatki schodowej z windą )
obręb Winiary, ark. 23, dz. nr 5/12, dz. nr 5/11
DETAL OTWORU OKIENNEGO.
SKALA 1:25.
RYS NR:
DATA:
D11
12.2008.
mgr inż. arch. KRZYSZTOF SIKORSKI 7131/50/P/2001
mgr inż. arch. MONIKA WRÓBLEWSKA
±0.00=89,95
3
FRAGMENT WIDOKU ELEWACJI. SKALA 1:25.
SPRAWDZIŁ:
GŁ. PROJEKTANT:
dr inż. arch. EUGENIUSZ SKRZYPCZAK 244/84/PW
mgr inż. arch. KRZYSZTOF SIKORSKI 7131/50/P/2001
IMIĘ I NAZWISKO - UPRAWNIENIA NR
D
PODPIS
PROJEKT JEST CHRONIONY PRAWEM AUTORSKIM - ustawa z dnia 4 lutego 1994
o prawie autorskim i prawach pokrewnych (Dz.U. z 1994 Nr 24 poz. 83 z późniejszymi zmianami)