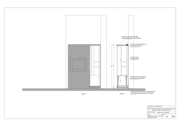
widok c liniowo montowane ledy do podświetlania tła gabloty

Transkrypt

widok c liniowo montowane ledy do podświetlania tła gabloty
punktowo rozłożone światła
ledowe(regulowany kąt podania)
7
liniowo montowane ledy do
podświetlania ściany
248
270
183
tło-tafla szkła
piaskowanego
5
10
65
liniowo montowane ledy do
podświetlania tła gabloty
widok c
widok b
liniowo montowane ledy do podświetlania
od środka górnej płaszczyzny podestu
MUZEUM W SOSNOWCU
temat : PROJEKT SPRZĘTU WYSTAWIENNICZEGO
"POLSKIE SZKŁO WSPÓŁCZESNE"
nazwa rysunku: GABLOTA G 2- WIDOKI
autor:
skala:
AGNIESZKA SOWA-SZENK
1:25
TOMASZ SZENK
3a