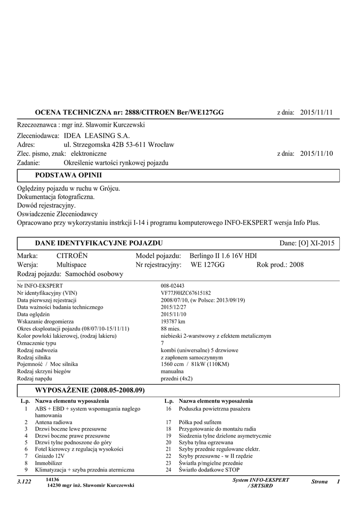
OCENA TECHNICZNA nr: 2888/CITROEN Ber/WE127GG

Transkrypt

OCENA TECHNICZNA nr: 2888/CITROEN Ber/WE127GG
OCENA TECHNICZNA nr: 2888/CITROEN Ber/WE127GG
z dnia: 2015/11/11
Rzeczoznawca : mgr inż. Sławomir Kurczewski
Zleceniodawca: IDEA LEASING S.A.
Adres:
ul. Strzegomska 42B 53-611 Wrocław
Zlec. pismo, znak: elektroniczne
Zadanie:
Określenie wartości rynkowej pojazdu
z dnia: 2015/11/10
PODSTAWA OPINII
Oględziny pojazdu w ruchu w Grójcu.
Dokumentacja fotograficzna.
Dowód rejestracyjny.
Oswiadczenie Zleceniodawcy
Opracowano przy wykorzystaniu instrkcji I-14 i programu komputerowego INFO-EKSPERT wersja Info Plus.
DANE IDENTYFIKACYJNE POJAZDU
Marka:
CITROËN
Wersja:
Multispace
Rodzaj pojazdu: Samochód osobowy
Dane: [O] XI-2015
Model pojazdu:
Nr rejestracyjny:
Nr INFO-EKSPERT
Nr identyfikacyjny (VIN)
Data pierwszej rejestracji
Data ważności badania technicznego
Data oględzin
Wskazanie drogomierza
Okres eksploatacji pojazdu (08/07/10-15/11/11)
Kolor powłoki lakierowej, (rodzaj lakieru)
Oznaczenie typu
Rodzaj nadwozia
Rodzaj silnika
Pojemność / Moc silnika
Rodzaj skrzyni biegów
Rodzaj napędu
Berlingo II 1.6 16V HDI
WE 127GG
Rok prod.: 2008
008-02443
VF77J9HZC67615182
2008/07/10, (w Polsce: 2013/09/19)
2015/12/27
2015/11/10
193787 km
88 mies.
niebieski 2-warstwowy z efektem metalicznym
7
kombi (uniwersalne) 5 drzwiowe
z zapłonem samoczynnym
1560 ccm / 81kW (110KM)
manualna
przedni (4x2)
WYPOSAŻENIE (2008.05-2008.09)
L.p. Nazwa elementu wyposażenia
1 ABS + EBD + system wspomagania naglego
hamowania
2 Antena radiowa
3 Drzwi boczne lewe przesuwne
4 Drzwi boczne prawe przesuwne
5 Drzwi tylne podnoszone do góry
6 Fotel kierowcy z regulacją wysokości
7 Gniazdo 12V
8 Immobilizer
9 Klimatyzacja + szyba przednia atermiczna
3.122
14136
14230 mgr inż. Sławomir Kurczewski
L.p. Nazwa elementu wyposażenia
16 Poduszka powietrzna pasażera
17
18
19
20
21
22
23
24
Półka pod sufitem
Przygotowanie do montażu radia
Siedzenia tylne dzielone asymetrycznie
Szyba tylna ogrzewana
Szyby przednie regulowane elektr.
Szyby przesuwne - w II rzędzie
Światła p/mgielne przednie
Światło dodatkowe STOP
System INFO-EKSPERT
/ SRTSiRD
Strona
1
2888/CITROEN Ber/WE127GG
10
11
12
13
14
15
Kolumna kierownicy regulowana
Koło zapasowe pełnowymiarowe
Lakier metalizowany
Listwy boczne w kolorze nadwozia
Pakiet lusterka elektryczne (poz.238,240,913)
Poduszka powietrzna kierowcy
25
26
27
28
29
Wspomaganie układu kierowniczego
Wycieraczka szyby tylnej
Wykładzina bagażnika
Zamek centralny
Zasłona części bagażowej
OPIS ZAMONTOWANEGO W POJEŹDZIE OGUMIENIA
Koło
Przednie lewe:
Przednie prawe:
Tylne lewe:
Tylne prawe:
Marka, typ
*VENTUS 205/40
*VENTUS 205/40
*VENTUS 215/45
*VENTUS 215/45
R17
R17
R17
R17
84Y
84Y
87V
87V
Sport 104
Sport 104
Bieżnik [mm] Zużycie [%]
70
70
80
80
STAN TECHNICZNY POJAZDU
SILNIK:
- poziom i stan płynów eksploatacyjnych w normie,
- rozruch silnika łatwy - praca prawidłowa,
- śladów wycieku płynów eksploatacyjnych nie stwierdzono,
- układ wydechowy z drobnymi śladami korozji.
PODWOZIE:
- układ hamulcowy szczelny, skuteczny, położenie pedału i dźwigni hamulca pomocniczego prawidłowe,
- śladów wycieku oleju z układu napędowego nie stwierdzono,
- układ kierowniczy - powiekszonych luzów nie stwierdzono,
- powiekszonych luzów w zawieszeniu nie stwierdzono,
- drbne ślady korozji powierzchniowej elementów podwozia.
NADWOZIE:
- powłoka lakierowa z drobnymi rysami,
OSPPRZĘT I WYPOSAŻENIE:
- zderzaki tylny - otarcia i wgniecenie, brak zaslepki haka holowniczego,
- tapicerka i podsufitka - brudne.
Wydajac niniejsza ocene rzeczoznawca zastrzega sie , że nie bierze odpowiedzialnosci za wady ukryte
przedmiotu oceny.
Niniejsza opinia nie obejmuje swoim zakresem badania oryginalności numerów identyfikacyjnych pojazdu i nie
może byc w takich celach wykorzystywana.
Niniejsze oszacowanie wartosci nie jest ekspertyza stanu technicznego przedmiotu wyceny i za taka nie może być
uznawane.
Wartość podmiotu wyceny zostala ustalona na dzien sporzadzenia wyceny.
Niniejsze opracowanie nie może być wykorzystane do żadnego innego celu niż ustalony w treści wyceny i nie
może byc publikowane w jaki kolwiek dokumencie bez zgody wykonawcy i uzgodnienia z nim formy i
treści takiej publikacji.
Nie badano tytulu użytkowania, ani wlasności badanego pojazdu, w tym ewentualnego istnienia ograniczonych
praw rzeczowych.
Bez zgody autora opracowania zabrania sie jego powielania.
RZECZOZNAWCA
3.122
14136
14230 mgr inż. Sławomir Kurczewski
System INFO-EKSPERT
/ SRTSiRD
Strona
2
DOKUMENTACJA FOTOGRAFICZNA
do opinii nr: 2888/CITROEN Ber/WE127GG
z dnia: 2015/11/11
DANE IDENTYFIKACYJNE POJAZDU
Marka:
CITROËN
Wersja:
Multispace
Rodzaj pojazdu: Samochód osobowy
Dane: [O] XI-2015
Model pojazdu:
Nr rejestracyjny:
Berlingo II 1.6 16V HDI
WE 127GG
Rok prod.: 2008
_mini-IMGP8372
_mini-IMGP8374
_mini-IMGP8376
_mini-IMGP8379
_mini-IMGP8418
_mini-IMGP8386
3.122
14136
14230 mgr inż. Sławomir Kurczewski
System INFO-EKSPERT
/ SRTSiRD
Strona
3
2888/CITROEN Ber/WE127GG
_mini-IMGP8375
_mini-IMGP8383
_mini-IMGP8387
_mini-IMGP8419
_mini-IMGP8398
3.122
14136
14230 mgr inż. Sławomir Kurczewski
System INFO-EKSPERT
/ SRTSiRD
Strona
4
ARKUSZ BADANIA POWŁOKI LAKIEROWEJ
do opinii nr: 2888/CITROEN Ber/WE127GG
z dnia: 2015/11/11
Rzeczoznawca : mgr inż. Sławomir Kurczewski
Zleceniodawca: IDEA LEASING S.A.
Adres:
ul. Strzegomska 42B 53-611 Wrocław
Zlec. pismo, znak: elektroniczne
Zadanie:
Określenie wartości rynkowej pojazdu
z dnia: 2015/11/10
DANE IDENTYFIKACYJNE POJAZDU
Marka:
CITROËN
Wersja:
Multispace
Rodzaj pojazdu: Samochód osobowy
Model pojazdu:
Nr rejestracyjny:
Dane: [O] XI-2015
Berlingo II 1.6 16V HDI
WE 127GG
Rok prod.: 2008
OPIS POWŁOKI LAKIEROWEJ
202 µm
115 µm
148 µm
158 µm
141 µm
159 µm
208 µm
155 µm
989 µm
139 µm
136 µm
3.122
14136
14230 mgr inż. Sławomir Kurczewski
System INFO-EKSPERT
/ SRTSiRD
Strona
5