projekt

Transkrypt

projekt
A
zmiana central wentylacyjnych
oraz układu rur z pompami ciepła
4
5
1 609
1 609
1 561
24
24
drabinka
N2-W2
E
1570kg
Wentylator osiowy ścienny
Typ HXM 350
Vw=1200 m3/h
Qel=60W/230V
N1-W1
556
685kg
137
5%
5%
AWL
Wo1
5%
100
20
10
Vw=3800 m3/h
100
100
100
100
100
100
100
100
100
100
N1
B
1 786
100
C
wywiewnik podsufitowy
38
Vw=3800 m3/h
15
38
wywiewnik podsufitowy
D
5
H=620mm
F
10
5%
drabinka
155 20
F
C
5815
272
618
1315kg
N1
właz na most techniczny
1 168
most techniczny - oświetleniowy
nawiewnik wirowy
nawiewnik wirowy
Vn=1140 m3/h
Vn=1140 m3/h
1 450
205
365
210
54
320
25
160
105
110
110
hp=137
320
25
BL12
W13
N2
110
hp=137
101
26
nawiewnik wirowy
nawiewnik wirowy
Vn=1140 m3/h
Vn=1140 m3/h
W13
160
105
W13
20
110
W13
160
105
160
105
110
hp=137
15
110
W13
160
105
D''
W13
36
D'
13
160
105
W13
150
dylatacja
np. Profil dylatacyjny PCV
do elewacji 2m narożny
- listwa dylatacyjna elewacyjna
narożna np. CDiL Millennium
napowietrzanie rostrzelnienie okien
systemowe
E
181
328
hp=105
8
Poręcz - typ A
12 40
30
280
25
15
38
nawiewnik wirowy
3 650
160
320
3 650
185
25
2 3805
54
185
25
173
160
320
160
235
134
41
31
1 010
160
320
30
54
5
nawiewnik wirowy
Vn=1140 m3/h
Vn=1140 m3/h
+535
205
30 90
585
1555
100
D11
D11
C'
30
30
30
220
+714
Korytarz
2.1
Wykładzina Tarket
A: 47,88 m2
12
12
131
80
185
120
Kratka went. ścienna
+ skrzynka rozprężna
Vw=1800 m3/h
Kratka went. ścienna
+ skrzynka rozprężna
Vw=1800 m3/h
300
B
72
30
310
D14
228
90
27
przebicie w dachu na potrzeby
przyszłej wentylacji projektora fi 200
429
570
90
205
Biuro
2.2
Wykładzina Tarket
A: 20,79 m2
18
75
175
D
500
150
obudowa stropu EI60
h=min. 80cm
obudowa okna
zgodnie
W01 z
przekrojem
N2
W2
A
62
W01
30
54
napowietrzanie rozstrzelnienie
okien systemowe
25
515
hp=150
600
150
hp=150
503
5215
30
12
D11
865
A'
Kratka went. ścienna
+ skrzynka rozprężna
Vw=1800 m3/h
90
205
395
300
Biuro
2.3
Wykładzina Tarket
A: 35,35 m2
247
1 0585
EI30
395
54
Vn=800 m3/h
25
479
965
123
230
180
nawiewnik wirowy
123
25
170
503
belka stalowa
D14
54
RPO
Vn=800 m3/h
EI30
90
205
255
5415
jedno okno w pomieszczeniu wykonać
z klamką z pochwytem na wysokości 90 cm
jedno okno w pomieszczeniu wykonać
z klamką z pochwytem na wysokości 90 cm
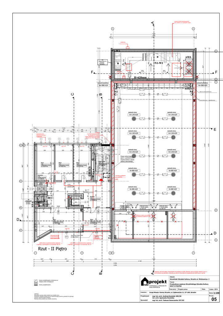
Rzut - II Piętro
1
2
3225
85
331
570
18
3
515
4
5
16
1 609
600
2 128
3 059
UWAGA; NA RYSUNKU POKAZANO SCHEMATYCZNE ZMIANY DOTYCZĄCE WENTYLACJI I
KOTŁOWNI SZCZEGÓŁY ZNAJDUJĄ SIĘ W PROJEKCIE ZAMIENNYM INSTALACYJNYM
A
C
3 059
B
D
centrala zasilająca
np. mcr9705
D21
30
Vw=50 m3/h
9535
1 0035
54
30
250
100
120
zawór wentylacyjny
30
140
D03
12
955 5
W5
W4
W3
30
Wk1
90
205
Vn=800 m3/h
nawiewnik wirowy
298
H
470
377
10
100D03
90 5
128
205
80
WC
2.4
Płytki gresowe
A: 4,35 m2
Wentylator kanałowy
Typ TD-250/100
Vw=50 m3/h
Qel=24W/230V
B'
425
54
220
100
12
69
190
nawiewnik wirowy
Vn=800 m3/h
winda
np. Monitor
olx630t 12kW
D03
815
30
110
90
205
nawiewnik wirowy
EI30
średnica fi 100
średnica fi 100
229
765
54
hp=-117
W10
100
1 864
110
75
300
645
11x16,2
30
645
K
BL1
I
K
B7
26 II5
30
58 52
325
215
325
K
czujka dymuD2
III
172
D11
55
Klatka schod.
2.9
Płytki gresowe
A: 17,64 m2
200
225
Kuchenka
2.5
Płytki gresowe
A: 4,35 m2
100
Biuro
2.8
Wykładzina Tarket
A: 21,74 m2
90
205
100
525 475 11 2801315
222
11x16,2
30
W2
650
660
Biuro
2.7
Wykładzina Tarket
A: 21,67 m2
90
205
650
7975
8605
biuro
2.6
Wykładzina Tarket
A: 21,67 m2
Klapa oddymiająca
ppoż. o powierzchni
czynej 0,9m2 z opcją
wyłazu dachowego
Obiekt:
ściany projektowane zmienione w
miejscu ścian istniejących
ściany projektowane
robi
projekt
44-100 Gliwice, ul. Plebanska 4/3,
tel/fax 032/230 69 58
Strzeliński Ośrodek Kultury, Strzelin ul. Mickiewicza 2
Temat:
Przebudowa zaplecza Strzelińskiego Ośrodka Kultury
RZUT II PIĘTRA
Faza proj.:
Inwestor:
UWAGA:
Wszystkie wymiary okien podane są w świetle muru.
Wysokość parapetu podana jest od wykończonego poziomu posadzki do górnego
poziomu wykończonego parapetu.
Wymiary drzwi podane są w świetle ościeżnicy.
Projekt zmian
Urząd Miasta i Gminy Strzelin, ul. Ząbkowicka 11, 57-100, Strzelin
Projektował:
mgr inż. arch. Andrzej Kozielski 209/90
inż. arch. Agnieszka Kozielska
Sprawdził:
mgr inż. arch. Tadeusz Szewczenko 257/83
Data:
Lipiec 2014
Skala: 1:100
Nr rys.:
05