deklaracja D0-1 wersja z działkowcami

Transkrypt

deklaracja D0-1 wersja z działkowcami
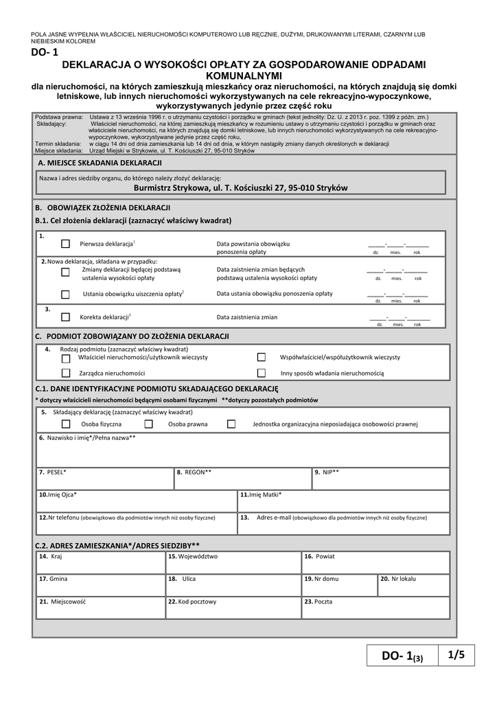
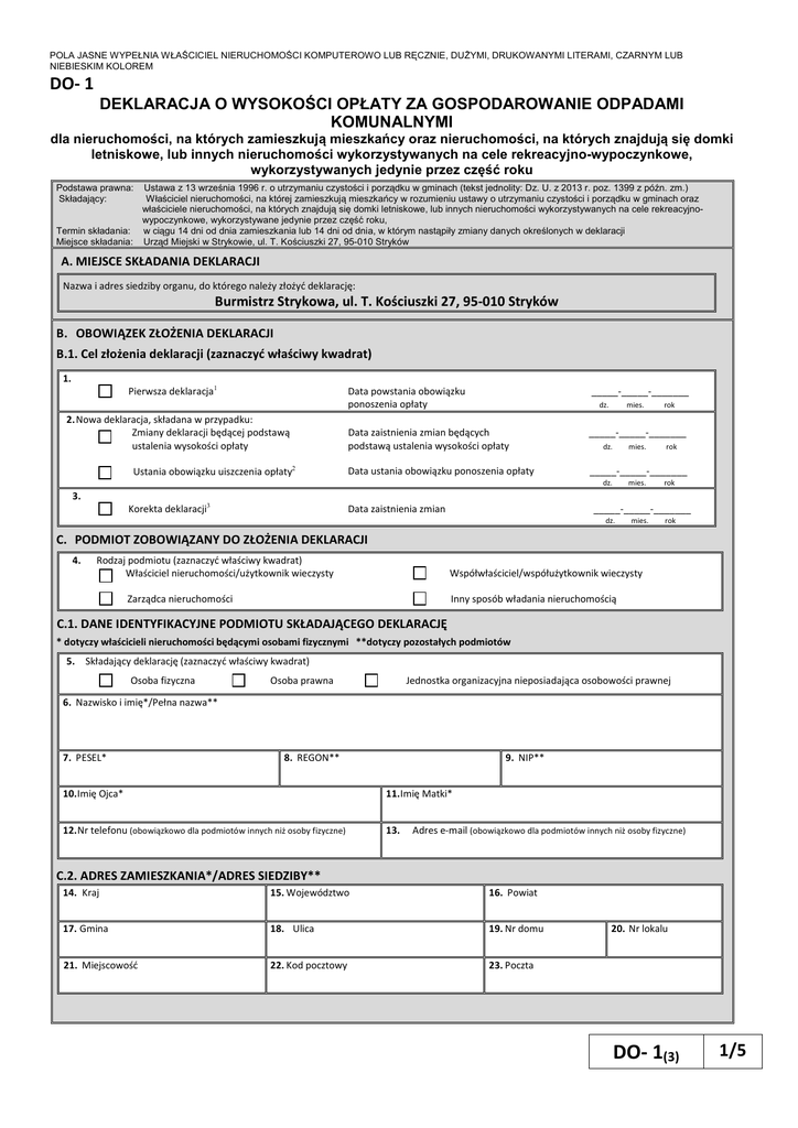
POLA JASNE WYPEŁNIA WŁAŚCICIEL NIERUCHOMOŚCI KOMPUTEROWO LUB RĘCZNIE, DUŻYMI, DRUKOWANYMI LITERAMI, CZARNYM LUB
NIEBIESKIM KOLOREM
DO- 1
DEKLARACJA O WYSOKOŚCI OPŁATY ZA GOSPODAROWANIE ODPADAMI
KOMUNALNYMI
dla nieruchomości, na których zamieszkują mieszkańcy oraz nieruchomości, na których znajdują się domki
letniskowe, lub innych nieruchomości wykorzystywanych na cele rekreacyjno-wypoczynkowe,
wykorzystywanych jedynie przez część roku
Podstawa prawna:
Składający:
Termin składania:
Miejsce składania:
Ustawa z 13 września 1996 r. o utrzymaniu czystości i porządku w gminach (tekst jednolity: Dz. U. z 2013 r. poz. 1399 z późn. zm.)
Właściciel nieruchomości, na której zamieszkują mieszkańcy w rozumieniu ustawy o utrzymaniu czystości i porządku w gminach oraz
właściciele nieruchomości, na których znajdują się domki letniskowe, lub innych nieruchomości wykorzystywanych na cele rekreacyjnowypoczynkowe, wykorzystywane jedynie przez część roku,
w ciągu 14 dni od dnia zamieszkania lub 14 dni od dnia, w którym nastąpiły zmiany danych określonych w deklaracji
Urząd Miejski w Strykowie, ul. T. Kościuszki 27, 95-010 Stryków
A. MIEJSCE SKŁADANIA DEKLARACJI
Nazwa i adres siedziby organu, do którego należy złożyć deklarację:
Burmistrz Strykowa, ul. T. Kościuszki 27, 95-010 Stryków
B. OBOWIĄZEK ZŁOŻENIA DEKLARACJI
B.1. Cel złożenia deklaracji (zaznaczyć właściwy kwadrat)
1.
Pierwsza deklaracja1
2. Nowa deklaracja, składana w przypadku:
Zmiany deklaracji będącej podstawą
ustalenia wysokości opłaty
Ustania obowiązku uiszczenia opłaty2
Data powstania obowiązku
ponoszenia opłaty
_____-_____-_______
Data zaistnienia zmian będących
podstawą ustalenia wysokości opłaty
_____-_____-_______
Data ustania obowiązku ponoszenia opłaty
_____-_____-_______
dz.
mies.
dz.
mies.
dz.
mies.
rok
rok
rok
3.
Korekta deklaracji3
Data zaistnienia zmian
_____-_____-_______
dz.
mies.
rok
C. PODMIOT ZOBOWIĄZANY DO ZŁOŻENIA DEKLARACJI
4.
Rodzaj podmiotu (zaznaczyć właściwy kwadrat)
Właściciel nieruchomości/użytkownik wieczysty
Współwłaściciel/współużytkownik wieczysty
Zarządca nieruchomości
Inny sposób władania nieruchomością
C.1. DANE IDENTYFIKACYJNE PODMIOTU SKŁADAJĄCEGO DEKLARACJĘ
* dotyczy właścicieli nieruchomości będącymi osobami fizycznymi **dotyczy pozostałych podmiotów
5. Składający deklarację (zaznaczyć właściwy kwadrat)
Osoba fizyczna
Osoba prawna
Jednostka organizacyjna nieposiadająca osobowości prawnej
6. Nazwisko i imię*/Pełna nazwa**
7. PESEL*
8. REGON**
9. NIP**
10. Imię Ojca*
11. Imię Matki*
12. Nr telefonu (obowiązkowo dla podmiotów innych niż osoby fizyczne)
13.
Adres e-mail (obowiązkowo dla podmiotów innych niż osoby fizyczne)
C.2. ADRES ZAMIESZKANIA*/ADRES SIEDZIBY**
14. Kraj
15. Województwo
16. Powiat
17. Gmina
18. Ulica
19. Nr domu
21. Miejscowość
22. Kod pocztowy
23. Poczta
20. Nr lokalu
DO- 1(3)
1/5
C.3. INFORMACJA O WSPÓŁWŁAŚCICIELACH NIERUCHOMOŚCI4 (w przypadku większej liczby współwłaścicieli
nieruchomości, należy wypełnić formularz DO-1/A stanowiący załącznik do deklaracji)
1. WSPÓŁWŁAŚCICIEL NIERUCHOMOŚCI (wpisać adres miejsca zamieszkania)
24. Nazwisko i Imię
25. PESEL
26. Imię Ojca
27. Imię Matki
28. Kraj
29. Województwo
30. Powiat
31. Gmina
32. Ulica
33.
Nr domu
35. Miejscowość
36. Kod pocztowy
37.
Poczta
34. Nr lokalu
C.4. WYPEŁNIAJĄ PODMIOTY NIE BĘDĄCE OSOBAMI FIZYCZNYMI
38. Osoby upoważnione do reprezentowania podmiotu
______________________________________________________________________________________________________________
_______________________________________podstawa umocowania____________________________________________________
______________________________________________________________________________________________________________
_______________________________________podstawa umocowania____________________________________________________
Sposób reprezentacji: ____________________________________________________________________________________________
______________________________________________________________________________________________________________
C.5. ADRES DO KORESPONDENCJI – jeśli jest inny niż adres podany w części C.2.
39. Kraj
40. Województwo
41. Powiat
42. Gmina
43. Ulica
44. Nr domu
46. Miejscowość
47. Kod pocztowy
48. Poczta
45. Nr lokalu
D. DANE NIERUCHOMOŚCI, NA KTÓREJ POWSTAJĄ ODPADY KOMUNALNE
D.1. ADRES NIERUCHOMOŚCI
49. Ulica
50. Nr domu
51. Nr lokalu
52. Miejscowość
53. Kod pocztowy
54. Poczta
55. Nr ewidencyjny działki (w przypadku braku nr
porządkowego nieruchomości)
56. Obręb (w przypadku braku nr porządkowego nieruchomości)
D.2. RODZAJ NIERUCHOMOŚCI (zaznaczyć właściwy kwadrat)
57.
58.
nieruchomość, na której znajduje się domek letniskowy, lub inna
nieruchomość wykorzystywana na cele rekreacyjno-wypoczynkowe,
wykorzystywana jedynie przez część roku
nieruchomość
zamieszkała
D.3. RODZAJ ZABUDOWY (wypełnić tylko dla nieruchomości zamieszkałej)
59.
60.
Zabudowa jednorodzinna
61.
Zabudowa wielorodzinna, w
której obowiązki właściciela
nieruchomości obciążają zarządcę
nieruchomości lub zarząd
wspólnoty mieszkaniowej
Zabudowa wielorodzinna, w
której obowiązki właściciela
nieruchomości obciążają właścicieli
poszczególnych lokali
DO- 1(3)
2/5
E. OŚWIADCZENIA
E.1. OŚWIADCZENIE O SPOSOBIE ZBIERANIA I GROMADZENIA ODPADÓW KOMUNALNYCH
62.
Oświadczam, iż odpady komunalne powstające na nieruchomości wskazanej w części D będą zbierane
w następujący sposób: (zaznaczyć znakiem „x” właściwy kwadrat)
Selektywny
Zmieszany
E.2. OŚWIADCZENIE O LICZBIE ZAMIESZKUJĄCYCH OSÓB
63.
Oświadczam, iż na nieruchomości wskazanej w części D zamieszkuje ...........................osoby/osób
(podać liczbę zamieszkujących osób)
F. WYLICZENIE OPŁATY ZA GOSPODAROWANIE ODPADAMI KOMUNALNYMI DLA NIERUCHOMOŚCI ZAMIESZKAŁYCH
F.1. OPŁATA ZA GOSPODAROWANIE ODPADAMI KOMUNALNYMI ZBIERANYMI W SPOSÓB SELEKTYWNY
Rodzaj gospodarstwa
domowego
(1)
Gospodarstwo
jednoosobowe na
nieruchomości
wskazanej w części D
Liczba gospodarstw
domowych na
nieruchomości
wskazanej w części D
(2)
Stawka opłaty od gospodarstwa
domowego określona w uchwale
Rady Miejskiej w Strykowie 6
5
Kwota miesięcznej opłaty
(iloczyn kol(2) i (3))
(3)
(4)
64.
65.
66.
Gospodarstwo
dwuosobowe na
nieruchomości
wskazanej w części D
67.
zł/gospodarstwo domowe/miesiąc
68.
69.
Gospodarstwo
trzyosobowe na
nieruchomości
wskazanej w części D
70.
zł/gospodarstwo domowe/miesiąc
71.
72.
Gospodarstwo
czteroosobowe na
nieruchomości
wskazanej w części D
73.
zł/gospodarstwo domowe/miesiąc
74.
Gospodarstwo
pięcioosobowe i większe
na nieruchomości
wskazanej w części D
76.
zł/gospodarstwo domowe/miesiąc
77.
zł
zł
zł
75.
zł
78.
zł
zł/gospodarstwo domowe/miesiąc
79.
Miesięczna opłata: należy zsumować iloczyny w kol. (4)
zł/miesiąc
80.
Opłata kwartalna (należy pomnożyć liczbę z poz. 79 przez 3)
zł/kwartał
DO- 1(3)
3/5
F.2. OPŁATA ZA GOSPODAROWANIE ODPADAMI KOMUNALNYMI ZBIERANYMI W SPOSÓB ZMIESZANY
81.
Stawka opłaty od mieszkańca określona w uchwale Rady Miejskiej w Strykowie6
zł/osobę/miesiąc
82.
Liczba mieszkańców zamieszkujących nieruchomość wskazaną w części D
83.
Miesięczna opłata (kwotę z poz. 81 należy pomnożyć przez liczbę osób wskazaną w poz. 82)
zł/miesiąc
84.
Opłata kwartalna (należy pomnożyć liczbę z poz. 83 przez 3)
zł/kwartał
G. OPŁATA ZA GOSPODAROWANIE ODPADAMI KOMUNALNYMI DLA NIERUCHOMOŚCI, NA KTÓRYCH ZNAJDUJĄ SIĘ
DOMKI LETNISKOWE, LUB INNE NIERUCHOMOŚCI WYKORZYSTYWANE NA CELE REKREACYJNO-WYPOCZYNKOWE
Ryczałtowa roczna stawka opłaty za gospodarowanie odpadami komunalnymi za rok od domku
letniskowego lub od innej nieruchomości wykorzystywanej na cele rekreacyjno-wypoczynkowe,
określona w uchwale Rady Miejskiej w Strykowie7
Liczba domków letniskowych lub innych nieruchomości wykorzystywanych na cele rekreacyjnowypoczynkowe
Ryczałtowa roczna opłata za gospodarowanie odpadami komunalnymi dla nieruchomości, na
których znajdują się domki letniskowe, lub inne nieruchomości wykorzystywane na cele
rekreacyjno-wypoczynkowe (poz. 85 należy pomnożyć przez poz. 86)8
85.
zł/rok
86.
87.
zł/rok
H. INFORMACJA O ZAŁĄCZNIKACH
Pełnomocnictwo
Inny załącznik w ilości
Informacja o współwłaścicielach nieruchomości DO-1/A
szt.
9
I. UZASADNIENIE ZŁOŻENIA NOWEJ DEKLARACJI/KOREKTY DEKLARACJI
88.
J. PODPIS OSOBY SKŁADAJACEJ DEKLARACJĘ
89.
Data wypełnienia (dzień-miesiąc-rok)
90.
Czytelny podpis właściciela nieruchomości/wszystkich współwłaścicieli/
osoby upoważnionej
_____-_____-______
K. ADNOTACJE ORGANU
91.
Uwagi organu
92.
Podpis osoby sprawdzającej
DO- 1(3)
4/5
POUCZENIE
W przypadku nie wpłacenia w terminach określonych odrębną uchwałą Rady Miejskiej w Strykowie,
kwoty opłaty z poz. 80, 84, 87 bądź też wpłacenia jej w niepełnej wysokości, niniejsza deklaracja stanowi
podstawę do wystawienia tytułu wykonawczego, zgodnie z przepisami ustawy z 17 czerwca 1966 r. o
postępowaniu egzekucyjnym w administracji (Dz. U. z 2014 r., poz. 1619 z późn. zm.).
Zgodnie z art. 6m ustawy z dnia 13 września 1996 r. o utrzymaniu czystości i porządku w gminach, właściciel nieruchomości jest
obowiązany złożyć do właściwego organu deklarację o wysokości opłaty za gospodarowanie odpadami komunalnymi w terminie 14 dni od
dnia zamieszkania na danej nieruchomości pierwszego mieszkańca. W przypadku zmiany danych będących podstawą ustalenia wysokości
należnej opłaty za gospodarowanie odpadami komunalnymi właściciel nieruchomości jest obowiązany złożyć nową deklarację w terminie 14
dni od dnia nastąpienia zmiany. Zgodnie z art. 6o cytowanej ustawy w razie niezłożenia deklaracji o wysokości opłaty za gospodarowanie
odpadami komunalnymi albo uzasadnionych wątpliwości co do danych zawartych w deklaracji właściwy organ określa, w drodze decyzji,
wysokość opłaty za gospodarowanie odpadami komunalnymi, biorąc pod uwagę uzasadnione szacunki, w tym średnią ilość odpadów
komunalnych powstających na nieruchomości o podobnym charakterze.
OBJAŚNIENIA DO DEKLARACJI O WYSOKOŚCI OPŁATY ZA GOSPODAROWANIE ODPADAMI KOMUNALNYMI
Formularz przeznaczony jest dla właścicieli nieruchomości w Gminie Stryków, na których zamieszkują mieszkańcy, do których ma zastosowanie art. 6c ust. 1
ustawy z dnia 13 września 1996 r. o utrzymaniu czystości i porządku w gminach (tj. z 2013 r. poz. 1399 z póź. zm.) oraz dla właścicieli nieruchomości, na których
znajdują się domki letniskowe, lub innych nieruchomości wykorzystywanych na cele rekreacyjno-wypoczynkowe, wykorzystywanych jedynie przez część roku,
do których ma zastosowanie art. 6j ust. 3b w/w ustawy. Właścicielem nieruchomości w myśl ustawy jest także współwłaściciel, użytkownik wieczysty oraz
jednostki organizacyjne i osoby posiadające nieruchomości w zarządzie lub użytkowaniu, a także inne podmioty władające nieruchomością.
1
Dotyczy osób składających deklarację po raz pierwszy;
Dotyczy sytuacji, gdy posesja pozostaje niezamieszkała np. na skutek wyprowadzenia się mieszkańców lub ich zgonu;
3
Dotyczy zmian, które nie wpływają na podstawę ustalenia wysokości opłaty, a wynikają z oczywistych omyłek lub zmiany danych identyfikacyjnych właściciela
posesji (np. zmiana nazwiska składającego deklarację).
4
Należy wypełnić w przypadku, gdy nieruchomość ma więcej niż jednego właściciela;
5
Opłatę z poz. 80 lub 84 należy wpłacać w terminach:
do 10 kwietnia br. za I kwartał; do 10 lipca br. za II kwartał; do 10 października br. za III kwartał; do 15 grudnia br. za IV kwartał;
na rachunek bankowy Gminy Stryków nr 90 8785 0002 2001 0000 1993 0001 lub indywidualny nr przypisany do konta wymiarowego dla danej nieruchomości,
w tytule podając adres nieruchomości, na której powstają odpady komunalne i kwartał, za który dokonywana jest opłata, lub w kasie Urzędu Miejskiego w
Strykowie, ul. Kościuszki 27, 95-010 Stryków, pok. Nr 6, lub u inkasenta.
6
Uchwała Rady Miejskiej w Strykowie w sprawie wyboru metody ustalenia opłaty za gospodarowanie odpadami komunalnymi oraz ustalenia wysokości stawki
tej opłaty od nieruchomości zamieszkałych
7
Uchwała Rady Miejskie w Strykowie w sprawie ustalenia stawki opłaty za gospodarowanie odpadami komunalnymi na nieruchomościach, na których znajdują
się domki letniskowe, lub innych nieruchomościach wykorzystywanych na cele rekreacyjno-wypoczynkowe
8
Opłatę z poz. 87 należy wpłacić do 10 października br. na rachunek bankowy Gminy Stryków nr 90 8785 0002 2001 0000 1993 0001, lub indywidualny nr
przypisany do konta wymiarowego dla danej nieruchomości, w tytule podając adres nieruchomości, na której powstają odpady komunalne z dopiskiem
ryczałtowa opłata roczna za odbiór odpadów, lub w kasie Urzędu Miejskiego w Strykowie, ul. Kościuszki 27, 95-010 Stryków, pok. Nr 6, lub u inkasenta.
9
Informację o współwłaścicielach nieruchomości DO-1/A należy załączyć do deklaracji w przypadku, gdy liczba współwłaścicieli jest większa niż dwie osoby.
2
DO- 1(3)
5/5