PO-1 Informacja o nieruchomościach

Transkrypt

PO-1 Informacja o nieruchomościach
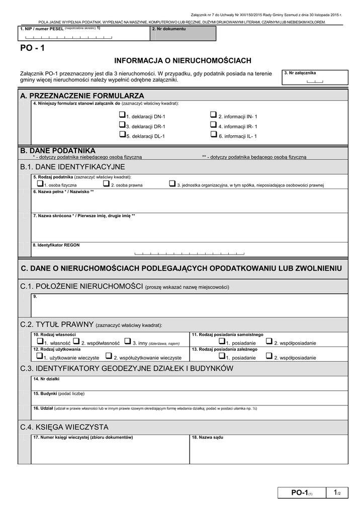
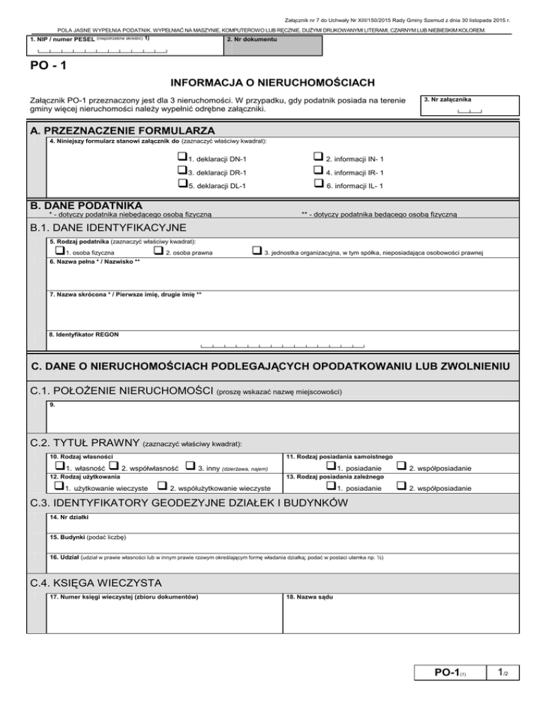
Załącznik nr 7 do Uchwały Nr XIII/150/2015 Rady Gminy Szemud z dnia 30 listopada 2015 r.
POLA JASNE WYPEŁNIA PODATNIK. WYPEŁNIAĆ NA MASZYNIE, KOMPUTEROWO LUB RĘCZNIE, DUŻYMI DRUKOWANYMI LITERAMI, CZARNYM LUB NIEBIESKIM KOLOREM.
1. NIP / numer PESEL (niepotrzebne skreślić) 1)
2. Nr dokumentu
PO - 1
INFORMACJA O NIERUCHOMOŚCIACH
Załącznik PO-1 przeznaczony jest dla 3 nieruchomości. W przypadku, gdy podatnik posiada na terenie
gminy więcej nieruchomości należy wypełnić odrębne załączniki.
3. Nr załącznika
A. PRZEZNACZENIE FORMULARZA
4. Niniejszy formularz stanowi załącznik do (zaznaczyć właściwy kwadrat):
1. deklaracji DN-1
2. informacji IN- 1
3. deklaracji DR-1
4. informacji IR- 1
5. deklaracji DL-1
6. informacji IL- 1
B. DANE PODATNIKA
* - dotyczy podatnika niebędącego osobą fizyczną
** - dotyczy podatnika będącego osobą fizyczną
B.1. DANE IDENTYFIKACYJNE
5. Rodzaj podatnika (zaznaczyć właściwy kwadrat):
1. osoba fizyczna
6. Nazwa pełna * / Nazwisko **
2. osoba prawna
3. jednostka organizacyjna, w tym spółka, nieposiadająca osobowości prawnej
7. Nazwa skrócona * / Pierwsze imię, drugie imię **
8. Identyfikator REGON
C. DANE O NIERUCHOMOŚCIACH PODLEGAJĄCYCH OPODATKOWANIU LUB ZWOLNIENIU
C.1. POŁOŻENIE NIERUCHOMOŚCI (proszę wskazać nazwę miejscowości)
9.
C.2. TYTUŁ PRAWNY (zaznaczyć właściwy kwadrat):
10. Rodzaj własności
1. własność
11. Rodzaj posiadania samoistnego
2. współwłasność
3. inny (dzierżawa, najem)
12. Rodzaj użytkowania
1. użytkowanie wieczyste
1. posiadanie
2. współposiadanie
13. Rodzaj posiadania zależnego
2. współużytkowanie wieczyste
1. posiadanie
2. współposiadanie
C.3. IDENTYFIKATORY GEODEZYJNE DZIAŁEK I BUDYNKÓW
14. Nr działki
15. Budynki (podać liczbę)
16. Udział (udział w prawie własności lub w innym prawie rzowym określającym formę władania działką; podać w postaci ułamka np. ½)
C.4. KSIĘGA WIECZYSTA
17. Numer księgi wieczystej (zbioru dokumentów)
18. Nazwa sądu
PO-1(1)
1/2
POLA JASNE WYPEŁNIA PODATNIK. WYPEŁNIAĆ NA MASZYNIE, KOMPUTEROWO LUB RĘCZNIE, DUŻYMI DRUKOWANYMI LITERAMI, CZARNYM LUB NIEBIESKIM KOLOREM.
D. DANE O NIERUCHOMOŚCIACH PODLEGAJĄCYCH OPODATKOWANIU LUB ZWOLNIENIU
D.1. POŁOŻENIE NIERUCHOMOŚCI (proszę wskazać nazwę miejscowości)
19.
D.2. TYTUŁ PRAWNY (zaznaczyć właściwy kwadrat):
20. Rodzaj własności
1. własność
21. Rodzaj posiadania samoistnego
2. współwłasność
3. inny (dzierżawa, najem)
22. Rodzaj użytkowania
1. posiadanie
2. współposiadanie
23. Rodzaj posiadania zależnego
1. użytkowanie wieczyste
2. współużytkowanie wieczyste
1. posiadanie
2. współposiadanie
D.3. IDENTYFIKATORY GEODEZYJNE DZIAŁEK I BUDYNKÓW
24. Nr działki
25. Budynki (podać liczbę)
26. Udział (udział w prawie własności lub w innym prawie rzowym określającym formę władania działką; podać w postaci ułamka np. ½)
D.4. KSIĘGA WIECZYSTA
27. Numer księgi wieczystej (zbioru dokumentów)
28. Nazwa sądu
E. DANE O NIERUCHOMOŚCIACH PODLEGAJĄCYCH OPODATKOWANIU LUB ZWOLNIENIU
E.1. POŁOŻENIE NIERUCHOMOŚCI
29.
E.2. TYTUŁ PRAWNY (zaznaczyć właściwy kwadrat):
30. Rodzaj własności
1. własność
31. Rodzaj posiadania samoistnego
2. współwłasność
3. inny (dzierżawa, najem)
32. Rodzaj użytkowania
1. użytkowanie wieczyste
1. posiadanie
2. współposiadanie
33. Rodzaj posiadania zależnego
2. współużytkowanie wieczyste
1. posiadanie
2. współposiadanie
E.3. IDENTYFIKATORY GEODEZYJNE DZIAŁEK I BUDYNKÓW
34. Nr działki
35. Budynki (podać liczbę)
36. Udział (udział w prawie własności lub w innym prawie rzowym określającym formę władania działką; podać w postaci ułamka np. ½)
E.4. KSIĘGA WIECZYSTA
37. Numer księgi wieczystej (zbioru dokumentów)
38. Nazwa sądu
1) Numer PESEL wpisują podatnicy będący osobami fizycznymi objętymi rejestrem PESEL, nieprowadzący działalności gospodarczej lub
niebędący zarejestrowanymi podatnikami podatku od towarów i usług. Identyfikator podatkowy NIP wpisują pozostali podatnicy.
PO-1(1)
2/2