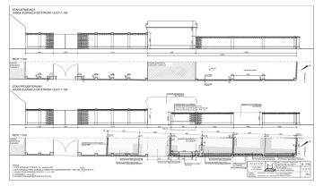
stan istniejący widok elewacji od strony ulicy 1:100 rzut 1

Transkrypt

stan istniejący widok elewacji od strony ulicy 1:100 rzut 1
~391
~444
~200
~255
~240
STAN ISTNIEJĄCY
WIDOK ELEWACJI OD STRONY ULICY 1:100
~765
~1111
~1605
~2370
RZUT 1:100
N
budynek gospodarczy
(częściowo rozebrany)
38
mur z cegły
otynkowany
mur z cegły
surowy
STAN PROJEKTOWANY
WIDOK ELEWACJI OD STRONY ULICY 1:100
~456
38
13
38
13
12 39
51
26
26
38
ogród warzywny
12
38
51
51
38
26
51
12 39
26
~90,70
ul. Kościelna
budynek
gospodarczy
z garażami
budynek gospodarczy
do rozbiórki
projektowany mur ceglany
fragment muru ceglanego
do rozbiórki
~444
~391
~200
~200
~255
(możliwość wykorzystania fragmentu ściany
przeznaczonego do rozbiórki budynku gospodarczego
- zwłaszcza kamiennego cokołu, ławy - POZ. 1.6)
~1111
374
391
~602
~456
~546
POZ. 4.4
UWAGA:
1. STAN ISTNIEJĄCY WG RYS. 21i - zawarty w PB
2. MUR PARKINGU PRZY KOŚCIELE FARNYM PW. NARODZENIA NMP - OZN. NR
3. UKŁAD I PLAN PARKINGU WG RYS. 1, 3 i 4 - PB
4. SZCZEGÓŁY - na rys. B5
5. KOLORYSTYKA NAWIERZCHNI WG RYS. B2
1
NA RYS. B1
25
kamienna (granitowa) kostka brukowa
10 x 10 x 6 cm - kolor szary (jasny) KS
391
10
500
~ 90,80
N
ul. Kościelna
10
projektowany mur ceglany
wg rys. B5
40
38
40
352
13
40
kamienna (granitowa) kostka brukowa
10 x 10 x 6 cm - kolor grafitowy (ciemny) KG
20
60
32
374
budynek gospodarczy
do rozbiórki
500
~ 90,70
kratka liniowa
odwodnienia OL
20
~ 90,85
12
projektowany murek ceglany
wg rys. B6
kamienna (granitowa) kostka brukowa
10 x 10 x 6 cm - kolor szary (jasny) KS
20
~ 90,80
10
250
500
kratka liniowa
odwodnienia OL
budynek
gospodarczy
z garażami
~ 90,90
500
500
13
RZUT 1:100
500
12
12
kamienna (granitowa) kostka brukowa
10 x 10 x 6 cm - kolor szary (jasny) KS
kamienna (granitowa) kostka brukowa
10 x 10 x 6 cm - kolor szary (jasny) KS
kamienna (granitowa) kostka brukowa
10 x 10 x 6 cm - kolor grafitowy (ciemny) KG
fragment muru
do rozbiórki
kratka liniowa odwodnienia
OL
kamienna (granitowa) kostka brukowa
10 x 10 x 6 cm - kolor grafitowy (ciemny) KG
PONIEC - UL. KOŚCIELNA I PARKING (ZADANIE II)
"S T U D I O M"
ul. Królowej Jadwigi 48/2
61-872 POZNAŃ
tel. (0-61) 852-94-80
Projektant:
Opracowanie:
Sprawdzający:
WOIA-WP0126, nr GT-10/76/P II
WOIA-WP0051, upr. nr 161/86/Pw
Przebudowa nawierzchni - rewitalizacja
Działki nr 154, 189/1, 189/3, 193/1
Mur przy parkingu
- rzut, przekroje i elewacje
(stan istniejący i projektowany)
arch. Andrzej Maciej Maleszka
arch. Wojciech Skórzewski
arch. Małgorzata Fornalczyk
B
PW
1:100 06.12r.
B4