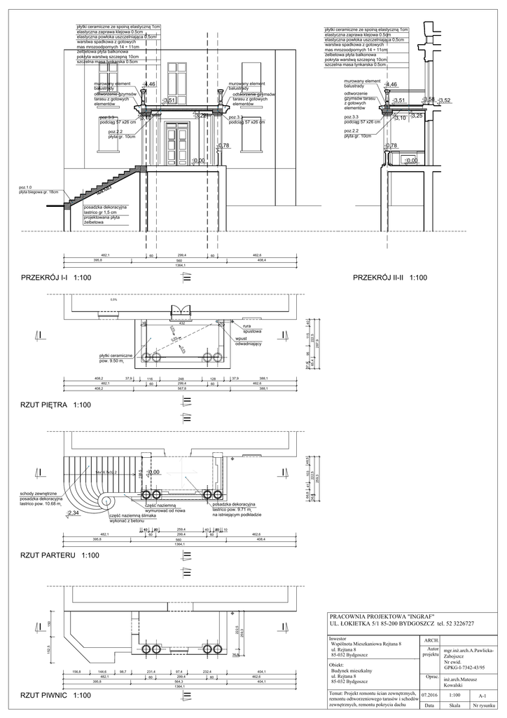
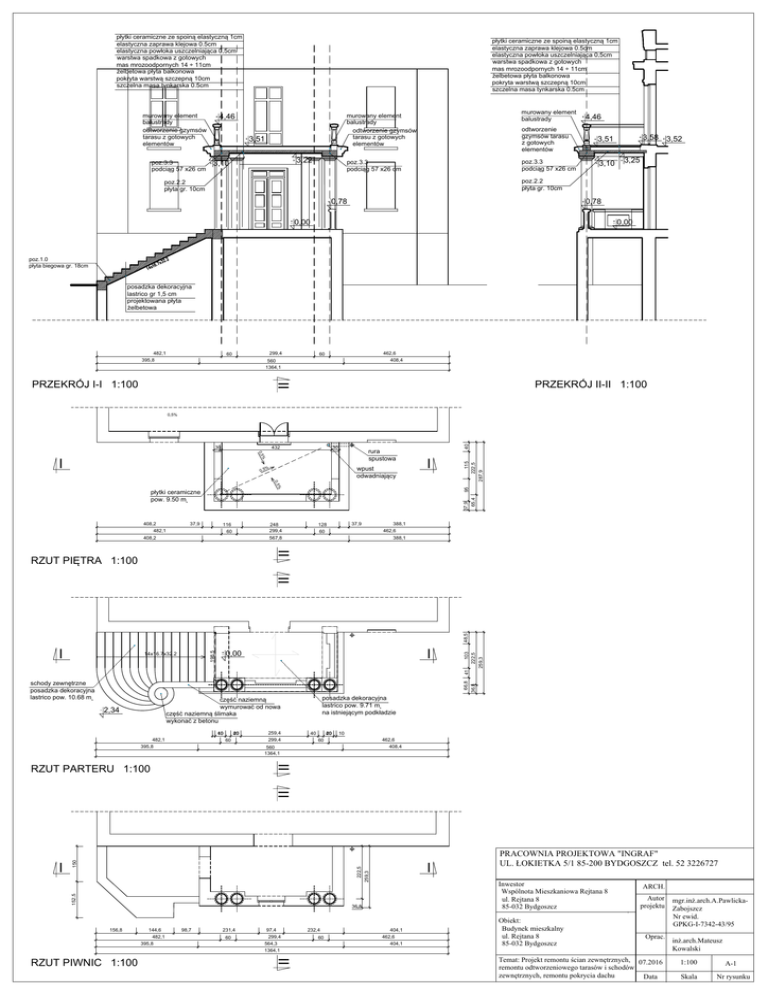
przekrój 1

Transkrypt

przekrój 1
płytki ceramiczne ze spoiną elastyczną 1cm
elastyczna zaprawa klejowa 0.5cm
elastyczna powłoka uszczelniająca 0,5cm
warstwa spadkowa z gotowych
mas mrozoodpornych 14 ÷ 11cm
żelbetowa płyta balkonowa
pokryta warstwą szczepną 10cm
szczelna masa tynkarska 0.5cm
murowany element
balustrady
odtworzenie gzymsów
tarasu z gotowych
elementów
+
płytki ceramiczne ze spoiną elastyczną 1cm
elastyczna zaprawa klejowa 0.5cm
elastyczna powłoka uszczelniająca 0,5cm
warstwa spadkowa z gotowych
mas mrozoodpornych 14 ÷ 11cm
żelbetowa płyta balkonowa
pokryta warstwą szczepną 10cm
szczelna masa tynkarska 0.5cm
+
3,51
+
poz.3.3
podciąg 57 x26 cm
+
murowany element
balustrady
murowany element
balustrady
odtworzenie gzymsów
tarasu z gotowych
elementów
4,46
3,10
+
odtworzenie
gzymsów tarasu
z gotowych
elementów
4,46
+
+
3,51
+
3,22
poz.3.3
podciąg 57 x26 cm
poz.3.3
podciąg 57 x26 cm
+
3,10
3,58 + 3,52
3,25
poz.2.2
płyta gr. 10cm
poz.2.2
płyta gr. 10cm
+
+
-
+
0,78
0,78
+
-
0,00
0,00
poz.1.0
płyta biegowa gr. 18cm
posadzka dekoracyjna
lastrico gr 1,5 cm
projektowana płyta
żelbetowa
482,1
395,8
299,4
60
462,6
408,4
60
560
1364,1
II
PRZEKRÓJ I-I 1:100
PRZEKRÓJ II-II 1:100
432
30
0,5
%
rura
spustowa
I
%
wpust
odwadniający
0,5
I
0,5
95
%
37,9
65,4
płytki ceramiczne
pow. 9.50 m˛
408,2
482,1
408,2
115
222,5
287,9
30
40
0,5%
37,9
116
60
248
299,4
567,8
37,9
128
60
388,1
462,6
388,1
II
RZUT PIĘTRA 1:100
0,00
I
66,8
36,8
41
+
-
103
222,5
259,3
198,5
48,5
II
14x16.7x32.2
I
schody zewnętrzne
posadzka dekoracyjna
lastrico pow. 10.68 m˛
-
posadzka dekoracyjna
lastrico pow. 9.71 m˛
na istniejącym podkładzie
część naziemną
wymurować od nowa
część naziemną ślimaka
wykonać z betonu
2,34
10
40
482,1
395,8
40
20
60
259,4
299,4
40
40
20
10
462,6
408,4
60
560
1364,1
II
RZUT PARTERU 1:100
222,5
259,3
150
II
PRACOWNIA PROJEKTOWA "INGRAF"
UL. ŁOKIETKA 5/1 85-200 BYDGOSZCZ tel. 52 3226727
I
Inwestor
Wspólnota Mieszkaniowa Rejtana 8
ul. Rejtana 8
85-032 Bydgoszcz
152,5
I
36,8
156,8
98,7
231,4
60
97,4
299,4
564,3
1364,1
II
RZUT PIWNIC 1:100
144,6
482,1
395,8
232,4
60
404,1
462,6
404,1
Obiekt:
Budynek mieszkalny
ul. Rejtana 8
85-032 Bydgoszcz
ARCH.
Autor
projektu
mgr.inż.arch.A.PawlickaZabojszcz
Nr ewid.
GPKG-I-7342-43/95
Oprac.
Temat: Projekt remontu ścian zewnętrznych, 07.2016
remontu odtworzeniowego tarasów i schodów
zewnętrznych, remontu pokrycia dachu
Data
inż.arch.Mateusz
Kowalski
1:100
Skala
A-1
Nr rysunku