RZUT DACHU - Gmina Czerwin

Transkrypt

RZUT DACHU - Gmina Czerwin
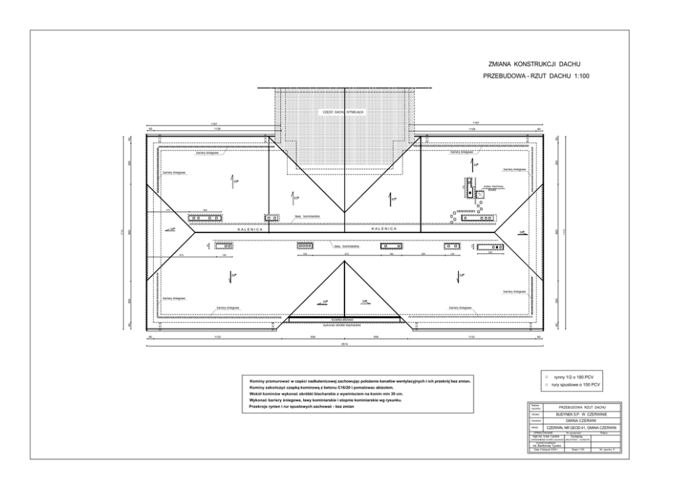
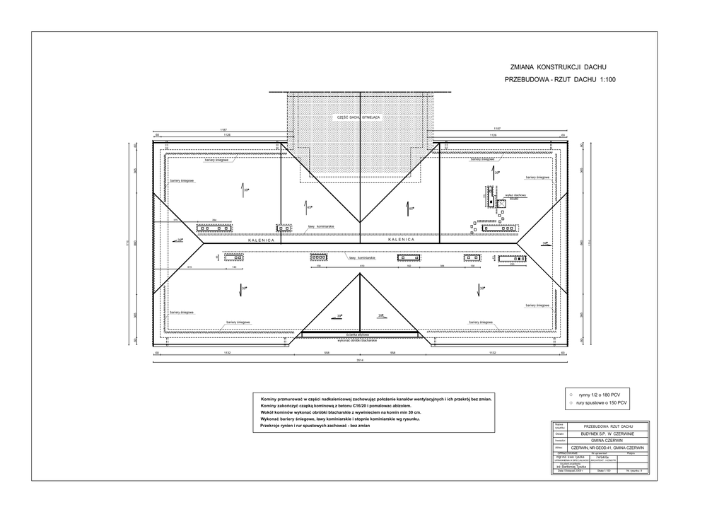
ZMIANA KONSTRUKCJI DACHU
PRZEBUDOWA - RZUT DACHU 1:100
CZĘŚĆ DACHU ISTNIEJĄCA
1187
1187
1126
1126
60
60
60
60
365
365
bariery śniegowe
bariery śniegowe
39
bariery śniegowe
bariery śniegowe
170
39
45
375
wyłaz dachowy
80x80
45
284
43
610
130
140
1710
39
ławy kominiarskie
615
860
KALENICA
KALENICA
43
860
39
182
39
384
230
130
39
bariery śniegowe
365
365
bariery śniegowe
39
39
bariery śniegowe
bariery śniegowe
60
ścianka attylowa
60
1710
ławy kominiarskie
wykonać obróbki blacharskie
60
1132
558
558
1132
60
3514
rynny 1/2 o 180 PCV
Kominy przmurować w części nadkalenicowej zachowując połoŜenie kanałów wentylacyjnych i ich przekrój bez zmian.
rury spustowe o 150 PCV
Kominy zakończyć czapką kominową z betonu C16/20 i pomalowac abizolem.
Wokół kominów wykonać obróbki blacharskie z wywinieciem na komin min 30 cm.
Wykonać bariery śniegowe, ławy kominiarskie i stopnie kominiarskie wg rysunku.
Przekroje rynien i rur spustowych zachować - bez zmian
Nazwa
rysunku:
PRZEBUDOWA RZUT DACHU
BUDYNEK S.P. W CZERWINIE
Obiekt:
GMINA CZERWIN
Inwestor:
Adres:
CZERWIN, NR GEOD.41, GMINA CZERWIN
OPRACOWANIE:
mgr inŜ. Ewa Tyszka
Nr uprawnień
Podpis
74/94/0s
UPRAWNIENIA W SPECJALNOSCI ARCHITEKT. I KONSTR.
Asystent projektanta
inŜ. Bartłomiej Tyszka
Data: 5 listopad 2009 r
Skala 1:100
Nr. rysunku: 9