D:\PROJEKTY\TRZEBNICA STAROSTWO\Prusice

Transkrypt

D:\PROJEKTY\TRZEBNICA STAROSTWO\Prusice
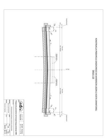
Krawężnik/opornik
0,15
+ 0,10
-0,02
Ściek
0,00
Pas ruchu
szer. istniejąca
Zaokrąglić na dł. 1m
wyłagodzić załamanie
1
SKALA 1:25
1
Zaokrąglić na dł. 1m
wyłagodzić załamanie
Pas ruchu
szer. istniejąca
3%
SPRAWDZIŁ:
0,00
Ściek
-0,02
dr o
Krawężnik/opornik
0,15
+ 0,10
J a k u b
Frąckowiak
56-320 Krośnice
ul. P o l n a 10
PODPIS:
DATA:
SKALA:
09.2014
1:25
PODPIS:
Rys. nr 6
NR RYSUNKU:
P.W.
STADIUM:
Konstrukcja przekroju daszkowego na nawierzchni z kostki granitowej
Włodzimierz Frąckowiak
mgr inż. Jakub Frąckowiak
OPRACOWAŁ:
TYTUŁ RYSUNKU:
Polepszenie parametrów technicznych drogi powiatowej 1330D
in
OBIEKT:
KONSTRUKCJA PRZEKROJU DASZKOWEGO NA NAWIERZCNI JEZDNI Z KOSTKI GRANITOWEJ
3%
oś drogi