Dane techniczne pompowni EPS

Transkrypt

Dane techniczne pompowni EPS
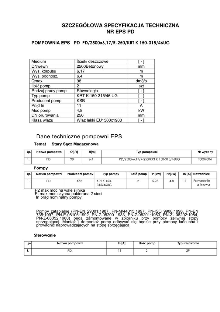
SZCZEGÓŁOWA SPECYFIKACJA TECHNICZNA
NR EPS PD
POMPOWNIA EPS PD PD/2500x6,17/R-250/KRT K 150-315/46UG
Medium
DNwewn
Wys. korpusu
Wys. podnosz.
Qmax
Ilość pomp
Rodzaj pracy pomp
Typ pomp
Producent pomp
Prąd In
Moc pomp
DN orurowania
Klasa włazu
Ścieki deszczowe
2500Betonowy
6,17
6,4
98
2
Równoległa
KRT K 150-315/46 UG
KSB
11
4,8
250
Właz lekki EU1300x1900
[-]
mm
m
m
dm3/s
szt
[-]
[-]
[-]
A
kW
mm
[-]
Dane techniczne pompowni EPS
Temat
Lp.
1.
Stary Sącz Magazynowa
Nazwa pompowni
PD
Q[l/s]
H[m]
98
6.4
Typ pompowni
Nr wyceny
PD/2500x6,17/R-250/KRT K 150-315/46UG
P0009004
Pompy
Lp.
Nazwa pompowni
Producent pompy
1.
PD
KSB
Typ pompy
KRT K 150315/46UG
Ilość pomp
2
Pl[kW]
5.93
P2[kW]
4.8
In [A] Prowadnice
11
Prowadnic
a linowa
P2 max moc na wale silnika
PI max moc czynna pobierana 2 sieci
In prąd nominalny pompy
Pompy zatapialne (PN-EN 29001:1987, PN-M/44015:1997, PN-ISO 9908:1996, PN-EN
735:1997, PN-E-08106:1992, PN-Z-08200 1983, PN-Z-08201:1983, PN-Z- 08202:1984,
PN-Z-08052:1980) będą zamontowane w zbiorniku przy pomocy Ŝeliwnej stopy
sprzęgającej. MontaŜ i demontaŜ pomp odbywać się będzie przy pomocy łańcucha i
prowadnic naprowadzających na stopę sprzęgającą.
Sterowanie
Lp1.
Nazwa pompowni
PD
In [A]
11
Ilość pomp
Typ sterowania
2
2P
KARTA INFORMACYJNA POMPOWNI EPS
TYP: PD/2500 -6,17 /R -250 / KRT K 150-315/46UG
Stary Sącz ul. Magazynowa
Nazwa elementu
1 Orurowanie DN 250
szt.
mb
2 Zawór kulowy zwrotny DN 250
2
3 Zasuwa DN250
2
Właz Właz lekki EU stal k.o. 1300x1900
5
1
2
Pompa KSB
KRT K 150-315/46UG
Pi= 5,93kW P2=4,8 kW ln= 11 A
6 Kołnierz normowy DN 250
1
7 Szafa sterownicza
1
8 Zbiornik BETON B45 0 25OOmm H=6,17m 1
9 Drabina
1
10 Pomost eksploatacyjny
1
PE 100 SDR17 PN 10(280X246,8)
Oznaczenie
m n.p.m.
1
Hpok
309,34
2
Hter
309,30
3
Htło
307,80
4
Hdopl 400
305,27
5
Hdop2
6
H alarm
305,47
7
Hmax
305,17
8
Hmin
303,97
9
Hsuch
303,87
10 Hdna
11
12
ai
C(2
303,32
Specyfikacja szaf sterowniczych prod. Ecol-Unicon -TYP 2P
OPIS OGÓLNY
Podstawowym zadaniem rozdzielnicy zasilająco - sterowniczej jest bez obsługowe automatyczne
uruchamianie pomp w zaleŜności od poziomu ścieków w pompowni.
Funkcje szafy sterowniczej:
sterowanie pracą pomp: automatyczne lub ręczne
naprzemienna praca pomp (zapobieganie nadmiernemu zuŜywaniu się pomp)
czasowe załączanie pomp w przypadku małego napływu cieczy
sygnalizacja pracy i awarii pompy
zabezpieczenie pompy przed pracą w „suchobiegu"
gniazdo serwisowe 230V 16A AC
gniazdo agregatu prądotwórczego
sygnalizator optyczno - akustyczny stanów awaryjnych, z moŜliwością odłączenia sygnału akustycznego realizowane przez sterownik
• przycisk spompowania ścieków poniŜej poziomu suchobiegu
• opóźnienie startu drugiej pompy po powrocie zasilania
• licznik czasu pracy i ilości załączeń pomp - realizowane przez sterownik
• moŜliwość blokowania równoległej pracy pomp
• moŜliwość ustawienia limitu czasu pracy pomp
• kontrola 5 poziomów ścieków
•
•
•
•
•
•
•
•
Zabezpieczenia szafy sterowniczej:
•
zabezpieczenie róŜnicowoprądowe
zabezpieczenie przeciw/przepięciowe klasy kl .C
zabezpieczenie od zaniku bądź złej kolejności faz napięcia zasilającego
zabezpieczenie zwarciowe silnika kaŜdej pompy
zabezpieczenie przeciąŜeniowe, termiczne silników pomp
zabezpieczenie nadmiarowo-prądowe układu sterowania
•
•
•
•
•
OBUDOWA SZAFY STERÓW NICZEJ
Na rozdzielnice dla pompowni dobrano obudowę z cokołem, oraz z podwójnymi drzwiami o
stopniu ochrony IP 65, fundament do wkopania obok pompowni lub posadowienia na
pompowni
Na wewnętrznych drzwiach rozdzielnicy zamontowane są: panel LCD, przełączniki Auto-Ręka, lampki
pracy i awarii pomp, przełącznik Sieć-Agregat, gniazdo 230VAC, gniazdo agregatu 400VAC.
WyposaŜenie szafy sterowniczej:
•
•
•
•
•
•
•
•
•
•
•
•
•
•
•
•
sterownik mikroprocesorowy
ogranicznik przepięć kl. C
wyłącznik róŜnicowoprądowy
rozruch bezpośredni, dla mocy >5,5 kW soft start
zabezpieczenie nadprądowe układu sterowania
CKF
przełączniki Auto-Ręka
przełącznik Sieć-Agregat
wyłączniki silnikowe
ogrzewanie szafy 50W z termostatem
gniazdo 230VAC
gniazdo agregatu 400VAC
zasilacz impulsowy 24VDC/2A
sygnalizator optyczno - dźwiękowy z opcją wyłączanie dźwięku
przycisk spompowania ścieków poniŜej suchobiegu
lampki pracy i awarii pomp
Lp.
Nazwa pompowni
WyposaŜenie
Nr wyceny
1.
PD
Sonda hydrostatyczna SG-25S / 0 - 4m H20 / L = lOm + 2szt. pływaki z kablem
neop ren owym
P0009004
• Korpus
Lp. Nazwa
pompowni
Mat. korpusu Ilość studni Śr. korpusu Wys. korpusu Śr. orurowania Śr. zaworu
1.
Betonowy
PD
1
2500
6.17
250
250
Śr. zasuwy Właz
250
Właz lekki EU
stal
k.o.
1300x1900,
Zbiorniki pompowni zaprojektowano z elementów betonowych i Ŝelbetowych wykonanych z betonu
wibroprasowanego C35/45, wodoszczelnego (W8), nasiąkliwość do 5%, mrozoodpornego F-150
spełniającego wymagania normy PN-EN 1917, posiadają aprobatę techniczną IBDiM oraz COBRTI Instal.
Zbiornik betonowy moŜe być posadowiony w trudnych warunkach gruntowo- wodnych. Ze względu na
duŜy cięŜar własny stanowi zbiornik typu cięŜkiego. Zbiorniki będą się składać z elementów: Dennicy
Ŝelbetowej (gdy warunki gruntowo wodne będą niekorzystne dennica wykonana będzie ze stopą przeci
wyporową). Dennica jest elementem prefabrykowanym, stanowiącym monolityczne połączenie części
pionowej oraz Ŝelbetowej płyty fundamentowej. Kręgów łączonych na felce wg DIN 4034 cz. I i uszczelek
międzykręgowych (dla średnic wew. 01000, 0 1200, 0 1500) lub na felce wg DIN 4034 cz. II i łączonych
przy pomocy zaprawy wodoszczelnej lub klejów montaŜowych (dla średnic wew. 0 2000, 0 2500, 0 3000).
Kręgi są elementami prefabrykowanymi, betonowymi ze zbrojeniem obwodowym.
Płyty przykrywającej z otworem na właz. Płyty są elementami prefabrykowanymi, Ŝelbetowymi.
Charakterystyka eksploatacyjna zbiorników:
Szczelność (dzięki odpowiedniemu systemowi łączenia segmentów). Przenoszenie duŜych obciąŜeń
w gruncie.
Lp.
Nazwa pompowni
WyposaŜenie
Nr wyceny
Drabina do poziomu pomostu
1.
PD
Pomost eksploatacyjny
Poręcz złazowa - 2szt.
Deflektor
Odsadzka
Pogrubienie dna 15 cm
P0009004
• Orurowanie
Orurowanie kształtki (o grubości ścianki min. 2,OOmm) wewnątrz przepompowni będą wykonane ze
stali kwasoodpornej (1.4301, PN-EN 10088-1) łączone na kołnierze aluminiowe.
• Armatura
Zawór zwrotny kulowy
• Wykonanie wg. normy: EN 1074-3, PN-EN 12050-4:2002
• Połączenia kołnierzowe i owiercenie PN-EN 1092-2:1999, ciśnienie PN 10 lub gwintowane gwint
rurowy calowy wg PN-ISO -7- 1:1995
• Długość zabudowy wg szereg 48, PN-EN 558-1:2001
• Korpus , pokrywa i klin wykonane z Ŝeliwa szarego lub Ŝeliwa sferoidalnego
• Prosty i pełny przelot
• Kula wulkanizowana NBR , czasza kuli wykonana ze stopu aluminium, stali lub Ŝeliwa
• Ochrona antykorozyjna powłoką na bazie Ŝywicy epoksydowej, minimum 250 mikronów wg normy DIN
30677
• Śruby łączące pokrywę z korpusem ze stali nierdzewnej, wpuszczane i zabezpieczone masą zalewową
Zasuwa miękkouszczelniona, krótka szer. 14, do ścieków. Zabudowana wewnątrz korpusu.
• Wykonanie wg. normy: EN 1171, EN 1074-1 i EN 1074-2
• Połączenia kołnierzowe i owiercenie PN-EN 1092-2, ciśnienie PN10 lub gwintowane, gwint rurowy calowy
PN-ISO-7-1 :1995
• Długość zabudowy krótka wg PN-EN 558-1, szer. 14
• Korpus, pokrywa i klin wykonane z Ŝeliwa szarego lub z Ŝeliwa sferoidalnego
• Prosty przelot zasuwy, bez przewęŜeń i bez gniazda w miejscu zamknięcia.
• Klin zawulkanizowany na całej powierzchni tj. zewnątrz i wewnątrz gumą NBR
• Ochrona antykorozyjna powłoką na bazie Ŝywicy epoksydowej, minimum 250 mikronów wg normy DIN
30677
• Śruby łączące pokrywę z korpusem ze stali nierdzewnej, wpuszczone i zabezpieczone masą zalewową