NPB PW druk

Transkrypt

NPB PW druk
21
30
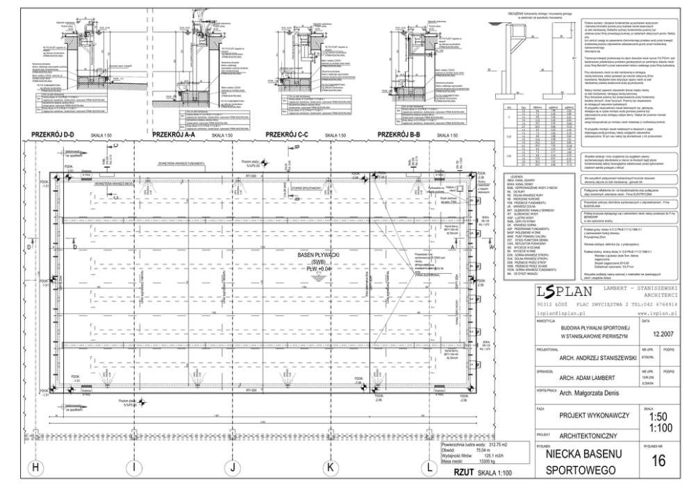
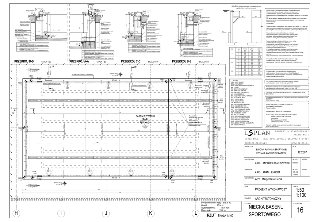
PRZEKRÓJ C-C
SKALA 1:50
10
4
Strzemiona zbrojenia
betonu nadlanego-wyprowadzic
podczas zbrojenia plyty fundamentowej
(FIRMA BUDOWLANA)
Ruszt rynny (PP)
RA. -0.65
11
25 10
T
Dno ze stali nierdzewnej
Drobny kliniec 4÷12,8 PN-B-11112:96 II 1
-zageszczac warstwowo, dostarczenie i wykonanie FIRMA BUDOWLANA
Geowloknina dzielaca warstwy klinca
-dostarczenie i wykonanie FIRMA BUDOWLANA
19cm Gruby kliniec 4÷31,5 PN-B-11112:96 II 1
-zageszczac warstwowo, dostarczenie i wykonanie FIRMA BUDOWLANA
PRZEKRÓJ B-B
B
DN 150
RA.-1.935
RABL.
DN 200
RA.-0.74
UWS.
ŚRODEK
-0.56
UWS.
ŚRODEK
-0.56
STOPIEŃ SPOCZYNKOWY
Drabinka
w niszy
245
FDOK.
-2.06
Slupki startowe
wg spec. FINA
A
1 902
500
GW=1.80m
1 000
Przewidzieć rurę
wyrównawczą PE DN50 pod
niecką
do odprowadzenia
ewentualnie zbierającej się
wody
(FIRMA BUDOWLANA)
KANAŁ ODPŁYWOWY
Linia sygnalizacji nawrotu
linia załamania dna
GW=1.80m
1 250
760
Linia sygnalizacji falstartu
BASEN PŁYWACKI
(SWB)
PLW.+0.04
600
A
50
T[m]
1.0
1.2
1.4
1.6
1.8
2.0
1.0
1.2
1.4
1.6
1.8
2.0
1.0
1.2
1.4
1.6
1.8
2.0
W[kN/m]
5.0
7.2
9.8
12.8
16.2
20.0
5.0
7.2
9.8
12.8
16.2
20.0
5.0
7.2
9.8
12.8
16.2
20.0
qo[kN/m]
1.66
2.40
3.26
4.26
5.40
6.66
2.22
3.02
3.98
4.99
6.27
7.62
3.33
4.11
5.10
6.61
7.47
8.88
qu[kN/m]
3.33
4.80
6.53
8.53
10.80
13.33
2.78
4.18
5.82
7.81
9.93
12.38
1.67
3.09
4.70
6.19
8.73
11.12
LEGENDA
ABKA. KANAL SSAWNY
BOKA. KANAL DENNY
BABL. ODPROWADZENIE WODY Z NIECKI
RA. OS RURY
RS. DOLNA KRAWEDZ RURY
KB. WIERCENIE RUROWE
FDB. PRZEBICIE FUNDAMENTU
UK. KRAWEDZ DOLNA
BKT. GŁĘBOKOŚC KANAŁU DENNEGO
WT. GLEBOKOSC WODY
WSP. LUSTRO WODY
RABL. ODPLYW RYNNY
OK. KRAWEDZ GORNA
ASP. PRZERWANIE FUNDAMENTU
BASP. WGLEBIENIE W DNIE
MWE. PUNT POMIARU CHLORU
EST. DYSZA PUNKTOWA DENNA
UWS. REFLEKTOR PODWODNY
WS. WYCIECIE W ŚCIANIE
BS. WYCIECIE W DNIE
DOK. GORNA KRAWEDZ STROPU
DUK. DOLNA KRAWEDZ STROPU
DDB. PRZEBICIE PRZEZ STROP
WDB. PRZEBICIE PRZEZ SCIANE
FDOK. GORNA KRAWEDZ FUNDAMENTU
MA. OS DYSZY MASAZU
FDOK.
-2.06
3
Linia sygnalizacji nawrotu
BOKA.
DN 125
RA.-1.875
4
500
Sciany
nawrotowe
z tulejami
wtykowymi
Farbowanie na Odpływ z
niecki
scianie czolowej
B
UWS.
ŚRODEK
-0.56
10
UWS.
ŚRODEK
-0.56
C
0,50
2 502
GW=1.35m
0,25
5
1 350
0
6
D
FDOK.
-1.51
r[m]
SKALA 1:50
FDOK.
-2.06
FDOK.
-2.06
CHLOR MWE.
RT=300
qu
qu
5cm
Tolerancja krawędzi przelewowej na całym obwodzie niecki wynosi %% P2mm i jest
każdorazowo potwierdzana pomiarem geodezynjnym po zamknięciu obwodu niecki
przez firmę Berndorf a przed wykonaniem betonu nadlanego przez firmę budowlaną.
Przy wbudowaniu niecki ze stali nierdzewnej w istniejącą
nieckę betonową, należy sprawdzić jej nośność statyczną (firma
budowlana). Niezbędne dane dotyczące ciężaru niecki ze stali
nierdzewnej zostaną dostarczone przez jej producenta.
PŁYTA FUNDAMENTOWA wg obliczen konstruktora
(FIRMA BUDOWLANA)
SKALA 1:50
50
ZEWNĘTRZNA KRAWĘDŹ FUNDAMENTU
WEWNĘTRZNA KRAWĘDŹ NIECKI
50
W
Strzemiona zbrojenia
betonu nadlanego-wyprowadzic
podczas zbrojenia plyty fundamentowej
(FIRMA BUDOWLANA)
FDOK. -1.88
Kanał denny
BKT=160+40
62,55m3/h
D
W
Beton nadlany C20/25 wykonac po montażu ścian niecki
(FIRMA BUDOWLANA)
50
Ukosować wewn. krawędź!
-1.64
DN 50
RA.-0.65
Poziom plaży:
%%P0.00
qo
qo
PŁYTA PLAŻY wsparta na
słupach
wg obliczen konstruktora
(FIRMA BUDOWLANA)
Rynna
przelewowa
Podane wymiary i zbrojenia fundamentów są wymiarami wytycznymi
i stanowią minimalne wymiary przy budowie niecek basenowych
ze stali nierdzewnej. Dokładne wymiary fundamentów powinny być
ustalowe przez firmę prowadzącą budowę, po badaniach statycznych gruntu. Należy
przy
tym zwrócić uwagę na zapewnienie równomiernego przelewu wody przez krawędź
przelewową poprzez odpowiednie zabezpieczenie gruntu przed mozliwością
nierównomiernego
obsunięcia się.
r
Poziom plaży:
±0.00
4
5
120
168
Beton nadlany C20/25 wykonac po montażu ścian niecki
(FIRMA BUDOWLANA)
Dno ze stali nierdzewnej
Drobny kliniec 4÷12,8 PN-B-11112:96 II 1
5cm
-zageszczac warstwowo, dostarczenie i wykonanie FIRMA BUDOWLANA
Geowloknina dzielaca warstwy klinca
-dostarczenie i wykonanie FIRMA BUDOWLANA
Gruby kliniec 4÷31,5 PN-B-11112:96 II 1
16cm
-zageszczac warstwowo, dostarczenie i wykonanie FIRMA BUDOWLANA
Dno ze stali nierdzewnej
Drobny kliniec 4÷12,8 PN-B-11112:96 II 1
5cm
-zageszczac warstwowo, dostarczenie i wykonanie FIRMA BUDOWLANA
Geowloknina dzielaca warstwy klinca
-dostarczenie i wykonanie FIRMA BUDOWLANA
25cm Gruby kliniec 4÷31,5 PN-B-11112:96 II 1
-zageszczac warstwowo, dostarczenie i wykonanie FIRMA BUDOWLANA
50
13
30
20
10
50
Wewnętrzna krawędź niecki
4
30
RA. -0.74 wg obliczen konstruktora
(FIRMA BUDOWLANA)
PŁYTA FUNDAMENTOWA wg obliczen konstruktora
(FIRMA BUDOWLANA)
PŁYTA FUNDAMENTOWA wg obliczen konstruktora
(FIRMA BUDOWLANA)
Drabinka
w niszy
FDOK.
-1.51
PLW. +0.04
PŁYTA PLAŻY wsparta na
słupach
25 10
-1.37
C
FDOK.
-1.51
Ruszt rynny (PP)
Rynna
przelewowa
11
Ukosować wewn. krawędź!
Beton nadlany C20/25 wykonac po montazu ścian
niecki
(FIRMA BUDOWLANA)
FDOK. -2.06
RABL.
DN 200
RA.-0.74
betonować
ze spadkiem
Kątownik szalunkowy
Poziom plaży:
±0.00
FDOK. -1.58
-1.76
PRZEKRÓJ A-A
4
20
120
Strzemiona zbrojenia
betonu nadlanegowyprowadzic podczas zbrojenia
plyty fundamentowej
(FIRMA BUDOWLANA)
25 10
50
Ukosować wewn. krawędź!
SKALA 1:50
13
24
FDOK. -1.51
50
PLW. +0.04
PŁYTA PLAŻY wsparta na
słupach
wg obliczen konstruktora
(FIRMA BUDOWLANA)
10 25
-1.31
PŁYTA FUNDAMENTOWA wg obliczen konstruktora
(FIRMA BUDOWLANA)
Dno ze stali nierdzewnej
Drobny kliniec 4÷12,8 PN-B-11112:96 II 1
5cm
-zageszczac warstwowo, dostarczenie i wykonanie FIRMA BUDOWLANA
Geowloknina dzielaca warstwy klinca
-dostarczenie i wykonanie FIRMA BUDOWLANA
Gruby kliniec 4÷31,5 PN-B-11112:96 II 1
15cm
-zageszczac warstwowo, dostarczenie i wykonanie FIRMA BUDOWLANA
PRZEKRÓJ D-D
Ruszt rynny (PP)
Rynna
przele
wowa
11
30
120
135
Ukosować wewn. krawędź!
20
50
180
Strzemiona zbrojenia
betonu nadlanego-wyprowadzic podczas
zbrojenia plyty fundamentowej
(FIRMA BUDOWLANA)
Beton nadlany C20/25 -wykonac po
montazu ścian niecki
(FIRMA BUDOWLANA)
11
120
PŁYTA PLAŻY wsparta na
słupach
wg obliczen konstruktora
(FIRMA BUDOWLANA)
Wewnętrzna krawędź niecki
Wewnętrzna krawędź niecki
30
10
Ruszt rynny (PP)
Rynna
przelewowa
Kątownik szalunkowy
Poziom plaży:
4 ±0.00
Wewnętrzna krawędź niecki
13
Kątownik szalunkowy
141
PLW. +0.04
4
PLW. +0.04
4
30
Poziom plaży:
±0.00
50
13
10
Kątownik szalunkowy
OBCIĄŻENIE fudnamentu dolnego i mocowania górnego
w zależności od wysokości mocowania
5
50
4
Nalezy również zapewnić odpowiedni drenaż między niecką
ze stali nierdzewnej i istniejącą niecką betonową.
Rury drenażowe powinny być przeprowadzone przez fundamenty
kanałów dennych i ścian bocznych. Powinny byc dopasowane
do istniejących warunków budowlanych.
W przypadku nieszczelności niecek betonowych (np. pęknięcia),
dostająca się w czasie montażu woda gruntowa powinna być
odprowadzona przez istniejący odpływ denny. Odpływ ten powinien również
zachować
swoją funkcjonalność po montażu niecki metalowej (z możliwością kontroli)
W przypadku montażu niecek metalowych w obszarach z ciągle
dopływającą wodą gruntową, należy uwzględnić odpowiednie
zabezpieczenia. W tym celu należy się skontaktować z ich producentem.
Wszelkie atrakcje i inne urządzenia (za wyjątkiem zaworu
wyrównawczego) wbudowane w niecce na klockach bądź płycie
fundamentowej należy bezwzględnie zabetonować przed wykonaniem
ostatnich warstw podsypki z klińca!
We wszystkich połączeniach kołnierzowych krućców stosować
elementy złączne ze stali nierdzewnej - gatunek A4
Podłączenia reflektorów do i od transformatorów oraz podłączenie
złącz kontrolnych uziemienia niecki - Firma ELEKTRYCZNA
Przewidzieć pokrywy zbiorników wyrównawczych z odpowietrzeniem - Frma
BUDOWLANA
Próbkę kruszywa stykającego się z elementami niecki nalezy przekazac do F-my
BERNDORF
w celu wykonania analizy
Podkład gruby: kliniec 4-31,5 PN-B-11112:1996 II 1
z zachowaniem funkcji drenażu.
Przynajmniej 20cm
Warstwa dzieląca: włóknina (np. z polipropylenu).
Podkład drobny: drobny kliniec 4-12,8 PN-B-11112:1996 II 1
Warstwa o grubości około 5cm, dobrze
zagęszczona.
Stopień zagęszczenia ID=0,85
Dokładność wykonania: %% P1cm
Wszystkie podkłady nalezy wykonać z materiałów nie zawierających
ziemi i związków żelaza.
L PLAN
90312 ŁÓDŹ
LAMBERT - STANISZEWSKI
ARCHITEKCI
PLAC ZWYCIĘSTWA 2 TEL:042 6764914
[email protected]
INWESTYCJA
DATA
2
BUDOWA PŁYWALNI SPORTOWEJ
W STANISŁAWOWIE PIERWSZYM
BOKA.
DN 125
RA.-1.875
NR UPR.
ARCH. ANDRZEJ STANISZEWSKI
PODPIS
87/00/WŁ
UWS.
ŚRODEK
-0.56
UWS.
ŚRODEK
-0.56
FDOK.
-2.06
SPRAWDZIŁ
NR UPR.
ARCH. ADAM LAMBERT
PODPIS
15/R-256
/ŁOIA/04
FDOK.
-1.51
RT=300
Drabinka
w niszy
betonować
ze spadkiem
50
10
UWS.
ŚRODEK
-0.56
UWS.
ŚRODEK
-0.56
FDOK.
-1.51
PROJEKTOWAŁ
12.2007
1
245
Kanał denny
BKT=160+40
62,55m3/h
www.lsplan.pl
Drabinka
w niszy
FDOK.
-2.06
Poziom plaży:
%%P0.00
WSPÓŁPRACA
FDOK.
-2.06
Arch. Małgorzata Denis
FAZA
85
1 867
SKALA
PROJEKT WYKONAWCZY
650
2 602
PROJEKT
H
I
J
K
L
Powierzchnia lustra wody: 312.75 m2
Obwód:
75.04 m
Wydajność filtrów:
125.1 m3/h
Masa niecki:
13300 kg
RZUT
SKALA 1:100
ARCHITEKTONICZNY
RYSUNEK
NIECKA BASENU
SPORTOWEGO
1:50
1:100
RYSUNEK NR
16