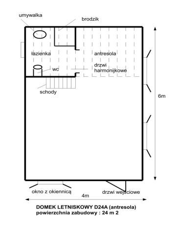
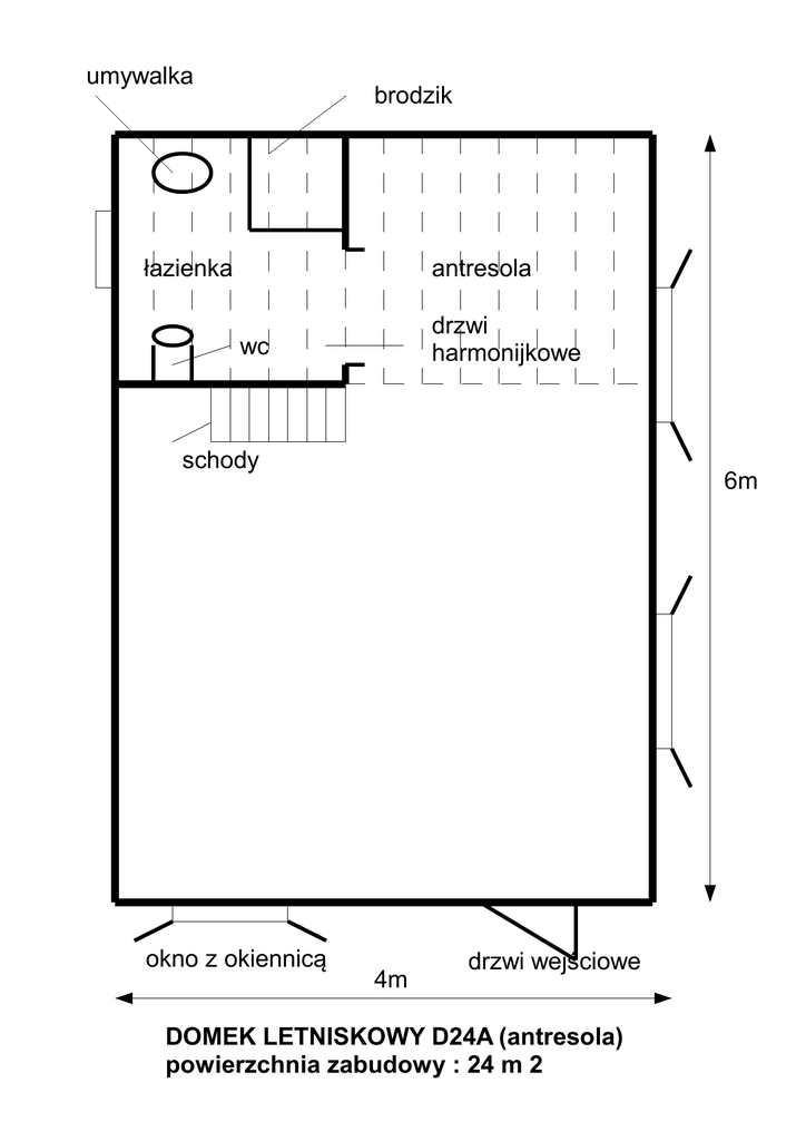
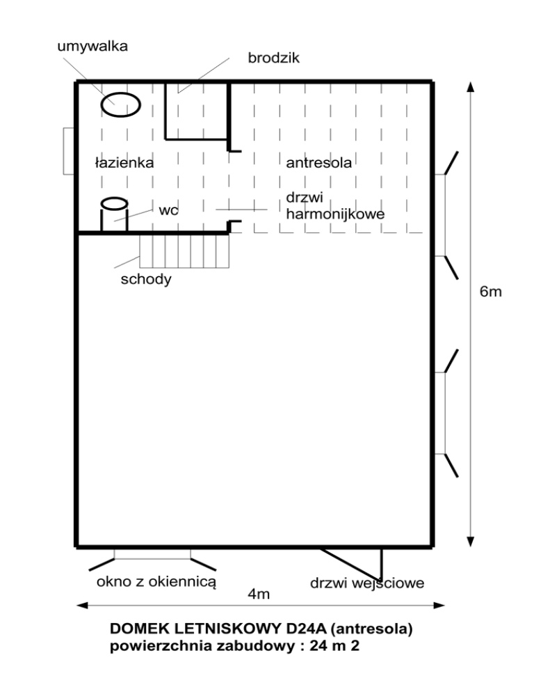
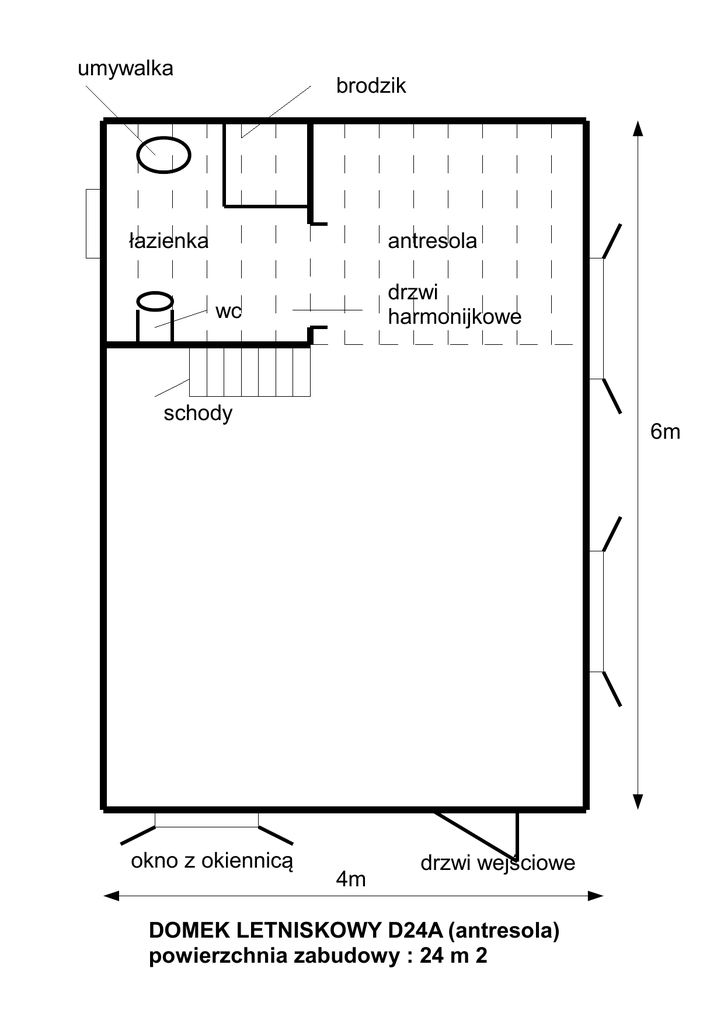
antresola łazienka brodzik umywalka wc drzwi harmonijkowe

Transkrypt

antresola łazienka brodzik umywalka wc drzwi harmonijkowe
umywalka
brodzik
łazienka
antresola
drzwi
harmonijkowe
wc
schody
okno z okiennicą
6m
4m
drzwi wejściowe
DOMEK LETNISKOWY D24A (antresola)
powierzchnia zabudowy : 24 m 2