pobierz - Dimplex

Transkrypt

pobierz - Dimplex
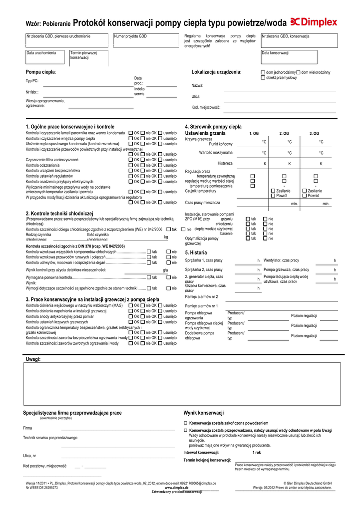
Wzór: Pobieranie
Protokół konserwacji pompy ciepła typu powietrze/woda
Nr zlecenia GDD, pierwsze uruchomienie
Data uruchomienia
Regularna konserwacja pompy ciepła
jest szczególnie zalecana ze względów
energetycznych!
Numer projektu GDD
Nr zlecenia GDD, konserwacja
Termin pierwszej
konserwacji
Data konserwacji
Pompa ciepła:
Lokalizacja urządzenia:
Data
prod.:
Indeks
serwis
u
klientó
w:
Typ PC:
Nr fabr.:
Wersja oprogramowania,
ogrzewanie:
Ulica:
Kod, miejscowość:
4. Sterownik pompy ciepła
Ustawienia grzania
nie OK
nie OK
nie OK
usunięto
usunięto
usunięto
nie OK
nie OK
nie OK
nie OK
nie OK
nie OK
usunięto
usunięto
usunięto
usunięto
usunięto
usunięto
nie OK
usunięto
Regulacja przez
temperaturę zewnętrzną
regulację według wartości stałej
temperaturę pomieszczenia
Czujnik temperatury
nie OK
usunięto
Czas pracy mieszacza
2. Kontrole techniki chłodniczej
(Przeprowadzane przez serwis posprzedażowy lub specjalistyczną firmę zajmującą się techniką
chłodniczą)
Kontrola szczelności obiegu chłodniczego zgodnie z rozporządzeniem (WE) nr 842/2006
tak
Rodzaj czynnika
Ilość czynnika
kg
chłodniczego:
chłodniczego:
Kontrola szczelności zgodnie z DIN 378 (rozp. WE 842/2006)
Kontrola wzrokowa wszystkich komponentów chłodniczych...............................
Kontrola wzrokowa przewodów rurowych i połączeń ..........................................
Kontrola uchwytów, mocowań i odsprzężenia drgań ..........................................
tak
tak
tak
Wynik kontroli przy użyciu detektora nieszczelności:
nie
nie
nie
g/a
Wymagana ponowna kontrola..............................................................................
Wynik:
Wymogi dotyczące szczelności są spełnione zgodnie ze stanem techniki ........
tak
nie
tak
nie
3. Prace konserwacyjne na instalacji grzewczej z pompą ciepła
Kontrola ciśnienia wejściowego w naczyniu wzbiorczym (MAG)
OK
Kontrola ciśnienia napełnienia w instalacji grzewczej
OK
Kontrola anody antykorozyjnej przez pomiar
OK
Kontrola ustawień krzywych grzewczych
OK
Kontrola ogranicznika temperatury bezpieczeństwa, grzałek elektrycznych i
grzałki kołnierzowej
OK
Kontrola szczelności zaworów bezpieczeństwa ogrzewania i wody
OK
Kontrola szczelności zaworów zwrotnych ogrzewania i wody
OK
dom wielorodzinny
Nazwa:
1. Ogólne prace konserwacyjne i kontrole
Kontrola i czyszczenie lameli parownika oraz wanny kondensatu
OK
Kontrola i czyszczenie wnętrza pompy ciepła
OK
Ułożenie węża spustowego kondensatu (kontrola wzrokowa)
OK
Kontrola i czyszczenie przewodów powietrznych przy instalacji wewnętrznej
OK
Czyszczenie filtra zanieczyszczeń
OK
Kontrola odszraniania
OK
Kontrola urządzeń bezpieczeństwa
OK
Kontrola ustawień regulatorów
OK
Kontrola osadzenia przyłączy elektrycznych
OK
Wyliczenie minimalnego przepływu wody na podstawie
zmierzonych temperatur zasilania i powrotu
OK
W przypadku modyfikacji działania aktualizacja oprogramowania regulatora
OK
dom jednorodzinny
obiekt przemysłowy
nie OK
nie OK
nie OK
nie OK
usunięto
usunięto
usunięto
usunięto
nie OK
nie OK
nie OK
usunięto
usunięto
usunięto
1. OG
2. OG
3. OG
Krzywa grzewcza
Punkt końcowy
°C
°C
°C
Wartość maksymalna
°C
°C
°C
Histereza
K
K
K
Zasilanie
Powrót
Zasilanie
Powrót
min.
Instalacje, sterowanie pompami
ZPO (M16) przy
grzaniu
chłodzeniu
nie ciepłej wodzie użytkowej
basenie
Optymalizacja pompy
grzewczej
tak
tak
tak
tak
tak
min.
nie
nie
nie
nie
nie
5. Historia
Sprężarka 1, czas pracy
h
Wentylator, czas pracy
h
Sprężarka 2, czas pracy
h
Pompa grzewcza, czas pracy
h
h
Pompa ładująca ciepłą wodę
użytkową, czas pracy
h
2. generator ciepła, czas
pracy
Grzałka kołnierzowa, czas
pracy
Pamięć alarmów nr 2
h
Pamięć alarmów nr 1
Pompa obiegowa
ogrzewania
Pompa obiegowa ciepłej
wody użytkowej
Dodatkowa pompa
obiegowa
Producent/
typ
Producent/
typ
Producent/
typ
Poziom regulacji
Poziom regulacji
Poziom regulacji
Uwagi:
Wynik konserwacji
Specjalistyczna firma przeprowadzająca prace
(ewentualnie pieczątka)
Firma
 Konserwacja została zakończona powodzeniem
__________________________________________
Technik serwisu posprzedażowego
__________________________________________
Ulica, nr
__________________________________________
Kod pocztowy, miejscowość
 Konserwacja została przeprowadzona, należy usunąć wady odnotowane w polu Uwagi
Wady odnotowane w protokole konserwacji należy niezwłocznie usunąć lub zlecić ich
usunięcie,
ponieważ mają one wpływ na gwarancję producenta.
Interwał konserwacji:
1 rok
Termin kolejnej konserwacji: _____________________________________
Prace konserwacyjne należy przeprowadzić i potwierdzić najpóźniej w ciągu
trzech miesięcy od wymaganego terminu.
__ - ________
_____________________________
konserwacji pompy ciepła typu powietrze woda_02_2012_extern.doce-mail: [email protected]
Wersja
Tel. / 11/2011
 faks▪ PL_Dimplex_Protokół
__________________________________________
Nr WEEE DE 26295273
E-mail
www.dimplex.de
__________ ___
Zatwierdzony protokółData
konserwacji
__________________________________________
© Glen Dimplex Deutschland GmbH
Wersja: 07/2012 Prawo do zmian oraz błędów zastrzeżone.
_____________________________________
Podpis