piwnica_06_bud Kotlownia (1) - pdfMachine from Broadgun
Transkrypt
										piwnica_06_bud Kotlownia (1) - pdfMachine from Broadgun
                                        
                                        
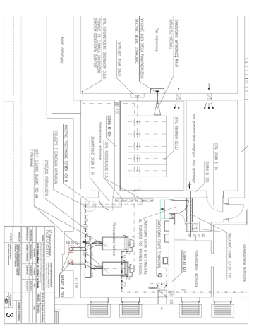
                                NAZWA PROJEKTANT SPRAWDZAJ¥CY INWESTOR RYSUNEK Studio Projektowo Realizacyjne 53-434 Wrocùaw, ul. Kùoœna 9/13 [email protected], tel/fax 71 797-86-75 Projekt budowlany budowy wewnêtrznej instalacji gazu zasilaj¹cej kotùowniê olejowo-gazow¹ wraz z przebudow¹ kotùowni w zakresie dostosowania pomieszczenia istniej¹cej kotùowni do wymagañ kotùowni olejowo-gazowej w piwnicy budynku PZSPSW w Trzebnicy 30.08.2013 r. data 245/00/DUW 30.08.2013 r. nr uprawnieñ Paweù Jêdrzejewski 286/94/UW imiê i nazwisko Grzegorz Tomaszczyk Powiatowy Zespóù Specjalnych Placówek Szkolno –Wychowawczych w Trzebnicy ul. Nowa 1, 55-100 Trzebnica Instalacje sanitarne. Rzut pomieszczeñ kotùowni - BRANÝA STADIUM Sanitarna Projekt budowlany podpis 3 NUMER RYSUNKU PODZIA£KA 1:50
 doc
                    doc download
															download                                                         Reklamacja
															Reklamacja                                                         
		     
		     
		     
		     
		     
		     
		     
		     
		     
		     
		     
		     
		     
		     
		     
		     
		     
		     
		     
		     
		    