DILM95-XSL DILM150-XSL DILM225-XSL DILM250-XSL

Transkrypt

DILM95-XSL DILM150-XSL DILM225-XSL DILM250-XSL
A
11/05 AWA2100-2302
Montageanweisung
Installation Instructions
Notice d’installation
Istruzioni per il montaggio
Instrukcja montażu
Инструкция по монтажу
DILM95-XSL
DILM150-XSL
DILM225-XSL
DILM250-XSL
DILM400-XSL
DILM150-XP2
DILM95-XSS
DILM150-XR
Lebensgefahr durch elektrischen Strom!
Nur Elektrofachkräfte und elektrotechnisch
unterwiesene Personen dürfen die im Folgenden beschriebenen Arbeiten ausführen.
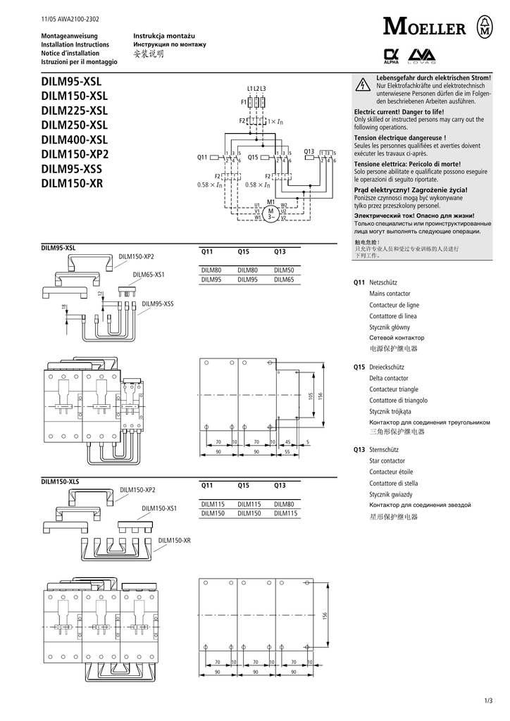
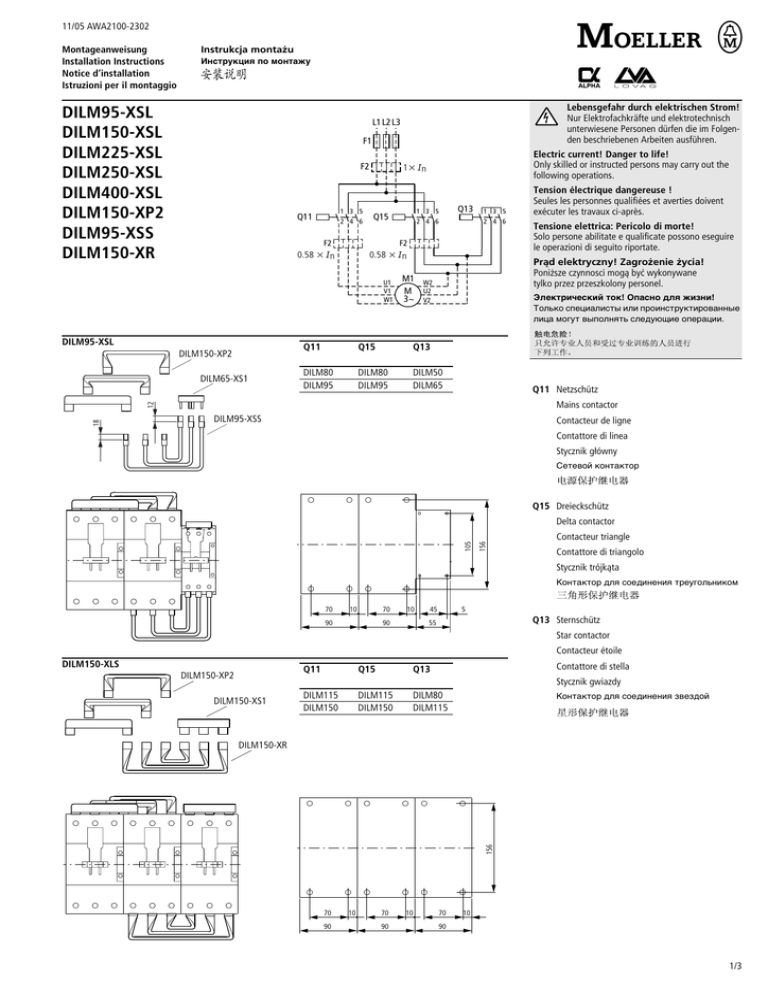
L1 L2 L3
F1
F2
1 3 5
2 4 6
Q11
DILM65-XS1
Q13
1 3 5
2 4 6
F2
0.58 x I n
U1
V1
W1
DILM150-XP2
1 3 5
2 4 6
Q15
F2
0.58 x I n
DILM95-XSL
Electric current! Danger to life!
Only skilled or instructed persons may carry out the
following operations.
1x I n
M1
M
3~
Tensione elettrica: Pericolo di morte!
Solo persone abilitate e qualificate possono eseguire
le operazioni di seguito riportate.
Prąd elektryczny! Zagrożenie życia!
Poniższe czynnosci mogą być wykonywane
tylko przez przeszkolony personel.
W2
U2
V2
Электрический ток! Опасно для жизни!
Только специалисты или проинструктированные
лица могут выполнять следующие операции.
Q11
Q15
Q13
DILM80
DILM95
DILM80
DILM95
DILM50
DILM65
Q11 Netzschütz
Mains contactor
12
18
Tension électrique dangereuse !
Seules les personnes qualifiées et averties doivent
exécuter les travaux ci-après.
DILM95-XSS
Contacteur de ligne
Contattore di linea
Stycznik główny
Cетевой контактор
Q15 Dreieckschütz
156
105
Delta contactor
Contacteur triangle
Contattore di triangolo
Stycznik trójkąta
Контактор для соединения треугольником
70
10
70
90
10
90
45
5
Q13 Sternschütz
55
Star contactor
Contacteur étoile
DILM150-XLS
DILM150-XP2
Q11
Q15
Q13
Contattore di stella
DILM115
DILM150
DILM115
DILM150
DILM80
DILM115
Контактор для соединения звездой
Stycznik gwiazdy
DILM150-XS1
156
DILM150-XR
70
90
10
70
90
10
70
10
90
1/3
Q15
Q13
DILM185
DILM225
DILM185
DILM225
DILM115
DILM150
10
120
120
140
10
10
90
10
Q15
Q13
DILM250
DILM250
DILM185
160
Q11
11/05 AWA2100-2302
15
DILM250-XSL
70
140
160
Q11
156
DILM225-XSL
120
10
120
140
15
2/3
10
120
140
140
15
10
Q11
Q15
Q13
DILM300
DILM400
DILM300
DILM400
DILM185
DILM250
15
130
90
100
160
180
DILM400-XSL
130
160
15
120
160
15
Anschlusstechnik
Terminations
Technique da raccordement
Tipi di collegamento
Zaciski przyłączeniowe
10
140
25
Achtung!
Bei Überbreite des Kabelschuhs Klemmabdeckung verwenden!
Техника присоединения
Attention!
Use cover for oversized cable lugs!
11/05 AWA2100-2302
Attention !
Pour les cosses de grande largeur, utilisier le
couvre-borne !
DILM50
DILM65
DILM80
DILM95
DILM115
DILM150
Anschlussschienen
Terminal bars
Rails de raccordement
Sbarre di collegamento
Szyny przyłączeniowe
DILM185
DILM225
DILM250
DILM300
DILM400
DILM500
20 mm
25 mm
30 mm
Attenzione!
Utilizare la copertura morsetti nel caso di capicorda
maggiorati!
Uwaga!
Stosuj osłony przy przewymiarowanych końcówkach
kablowych!
Внимание!
При превышении ширинъ кабельного
наконечника применять клеммную крышку!
Присединительные шины
Anschlussschrauben
Terminal screws
Vis de serrage
Viti di collegamento
Śruby zaciskowe
M 10
M 10
M 10
24 Nm
24 Nm
24 Nm
Присединительные винты
Drehmoment
Tightening torque
Couple de serrage
Moment dokręcenia
Par de aprieteKрутящий момент
3 Nm
Achtung!
Schraube beim Anziehen gegenhalten
Attenzione!
Tenere ferma la vite durante il serraggio!
10 Nm
Attention!
Retain screw when fixing!
Attention !
Maintenir la vis lors du serrage !
Uwaga!
Przytrzymaj srubę przy montażu!
Внимание!
Винт при завинчивании держать с
противоположной стороны!
3/3
Moeller GmbH, Industrieautomation, D-53105 Bonn
© 2005 by Moeller GmbH
Änderungen
vorbehalten
11/05 AWA2100-2302
Printed in Germany (12/05)
FD