zał. nr 1 Las Dębowy.cdr

Transkrypt

zał. nr 1 Las Dębowy.cdr
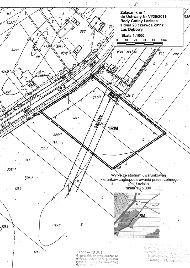
Załącznik nr 1
do Uchwały Nr VI/29/2011
Rady Gminy Łaziska
z dnia 28 czerwca 2011r.
Las Dębowy
Skala 1:1000
0
10
20
30
40
50m
E
1RM
Wyrys ze studium uwarunkowań
i kierunków zagospodarowania przestrzennego
gm. Łaziska
skala 1:25 000