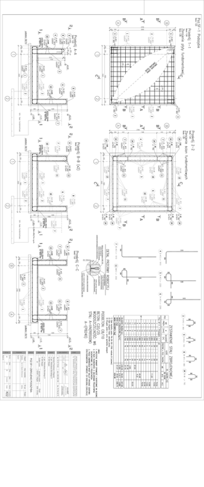
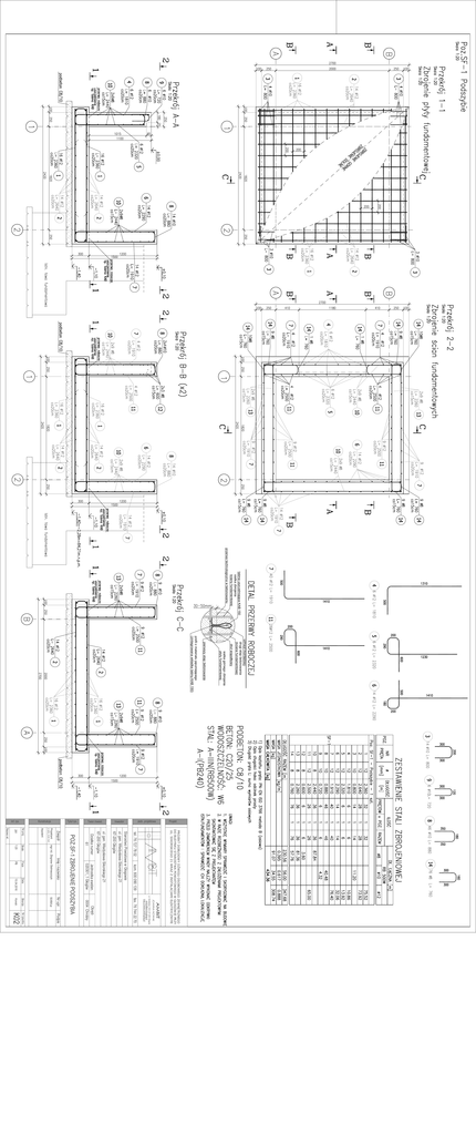
POZ.SF-1 ZBR OJEN IE P O DSZY B IA

Transkrypt

POZ.SF-1 ZBR OJEN IE P O DSZY B IA
taśma uszczelniająca KAB 150
siatka zbrojenia
ściany fundamentowej
przerwa technologiczna w betonowaniu
drut wiązałkowy
uchwyt montażowy
drugi etap betonowania
(ściana fundamentowa)
siatka górnego zbrojenia
płyty fundamentowej
pierwszy etap betonowania
profil z materiału pęczniejącego
(zintegrowana wkładka taśmy KAB 150)
Projekt
Jedn. projektowa
Inwestor
Teren inwest.
Tytuł rys.
Konstrukcja
Inf. rys.
kom. 600 090 139
Obręb
0004 Chrobry
fax. 76 744 22 70
[email protected]
http://www.ambit.glog.pl
ul. Kotlarska 1A/3; 67-200 Głogów
JOANNA NOWAK
PROJEKT DOBUDOWY DŹWIGU OSOBOWEGO ZEWNĘTRZNEGO
DO BUDYNKU STAROSTWA POWIATOWEGO W GŁOGOWIE PRZY
UL. SIKORSKIEGO 21 WRAZ Z INSTALACJAMI ELEKTRYCZNYMI
tel. 76 727 78 02
Starostwo Powiatowe w Głogowie
ul. gen. Władysława Sikorskiego 21
67-200 Głogów
Jednostka ewiden.
020301_1 Głogów
ul. gen. Władysława Sikorskiego 21
67-200 Głogów
Działka numer
61
Nr rysunku
Podpis
Branża
K02
Nr upr.
Data
Konstr.
Imię i nazwisko
Faza
15.04.2016
50/89/Lw
Skala
PB
mgr inż. Zbigniew Stelmaszczyk
POZ.SF-1 ZBROJENIE PODSZYBIA
Zespół
w specj. konst.-bud.
Projektant
Nr proj.
1:20
Asystent
281
Nazwa wł.