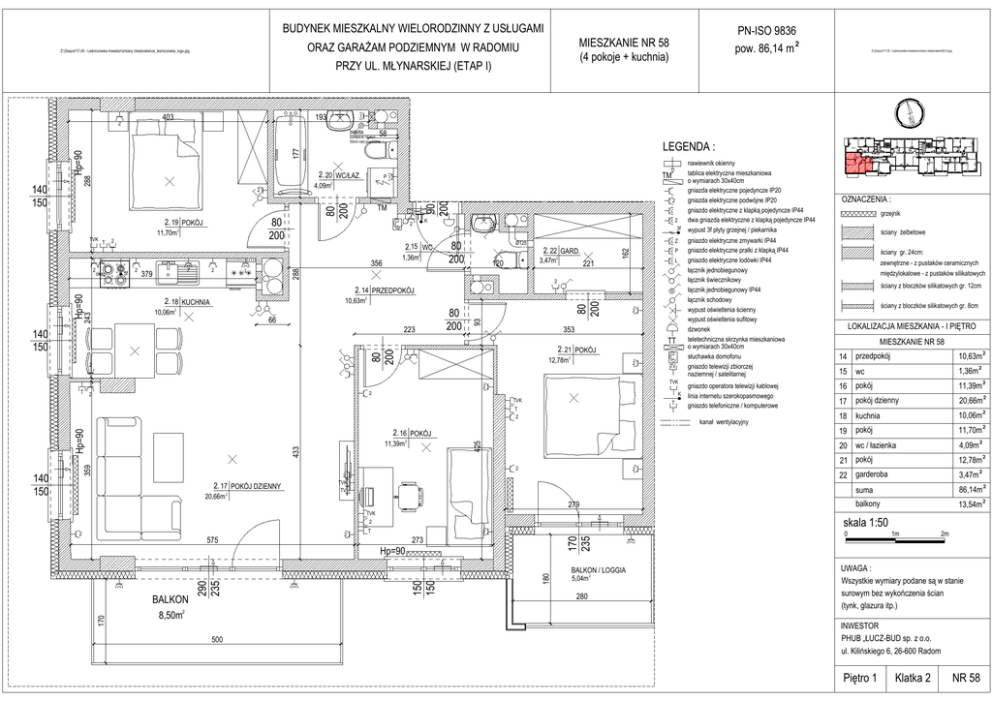
PN-ISO 9836 pow. 86,14 mŕ BUDYNEK MIESZKALNY

Transkrypt

PN-ISO 9836 pow. 86,14 mŕ BUDYNEK MIESZKALNY
PN-ISO 9836
pow. 86,14 m
MIESZKANIE NR 58
(4 pokoje + kuchnia)
403
193
2
177
LEGENDA :
11,70m 2
T
2
TM
2.15 WC
1,36m2
356
okap
3f
2
Z
379
2
L
2
3f
gniazdo elektryczne zmywarki IP44
Z
80
200
2. 22 GARD.
3,47m2
221
120
288
2
grzejnik
TT K
2
OZNACZENIA :
2
162
80
200
2. 19
TVK
80
200
2
nawiewnik okienny
tablica elektryczna mieszkaniowa
o wymiarach 30x40cm
gniazda elektryczne pojedyncze IP20
TM
P
90
200
P
L
2
10,63m2
2. 18 KUCHNIA
243
10,06m
2
66
223
140
150
80
200
80
200
Hp=90
2. 14
2
93
140
150
58
2. 20
4,09m2
288
Hp=90
bidetta
353
dzwonek
teletechniczna skrzynka mieszkaniowa
o wymiarach 30x40cm
TT
80
200
2. 21
2
12,78m 2
2
2
2
K
TVK
T
Hp=90
T
2
425
433
359
140
150
11,39m
2
2
2. 17
20,66m 2
gniazdo operatora telewizji kablowej
linia internetu szerokopasmowego
gniazdo telefoniczne / komputerowe
15
2
2
TVK
TV
1,36m
wc
16
11,39m
17
20,66m
18
2. 16
10,63m
14
gniazdo telewizji zbiorczej
naziemnej / satelitarnej
TV
TVK
2
T
MIESZKANIE NR 58
10,06m
kuchnia
19
11,70m
20
4,09m
21
12,78m
22 garderoba
3,47m
suma
86,14m
balkony
13,54m
279
TVK
skala 1:50
2
575
2
T
2
170
235
2
273
170
180
150
150
BALKON
8,50m2
290
235
Hp=90
BALKON / LOGGIA
2
5,04m
0
1m
2m
UWAGA :
280
(tynk, glazura itp.)
INWESTOR
500
Klatka 2
NR 58