0. widok z góry 1:20 1 widok z przodu 1:20 P7 bok 1:20 0. widoki

Transkrypt

0. widok z góry 1:20 1 widok z przodu 1:20 P7 bok 1:20 0. widoki
P7
67
widok z góry
1:20
regał na czasopisma
regał na czasopisma
33,3
142
33,3
Drz
Drz
1,8
1,8
76,4
80
1,8
1,8
1,8
1,8
1,8
63,4
67
widok z przodu
120
Drz
26
27,8
1,8
50
1
90
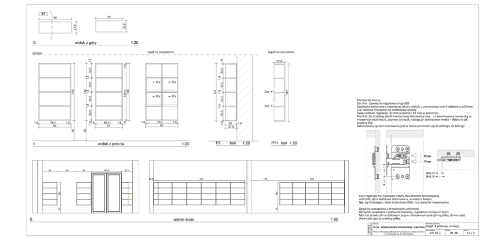
Montaż do ściany:
Dac-Ter - Zawieszka regulowana typ 807
Zawieszka wykonana z najwyższej jakości metalu z zamontowanymi 4 dyblami o ø10 mm
oraz dwoma miejscami na dodatkowe wkręty.
Dwie czołowe regulacje: 22 mm w pionie i 19 mm w poziomie.
Montaż: Do ściennej płytki montażowej dosuwamy szaę z zamontowaną zawieszką, w
momencie dociśnięcia, poprzez zatrzask, następuje zawieszenie mebla – działa to jak
zawiasy klip.
Zastosowany system mocowania jest w stanie przenosić ciężar udźwigu do 600 kg!
33,3
33,3
1,8
1,8
Drz
33,3
Drz
1,8
33,3
138,4
142
33,3
Drz
142
1,8
142
76,4
80
50
1,8
27,8
1,8
1,8
33,3
1,8
1,8
1,8
ściana
142
0.
P7
27,8
27,8
80
1,8
07
90
187,9
P7
1:20
bok
P71 bok 1:20
1:20
67,7
26,8
175
537
400
widoki ścian
1:50
Regał na czasopisma z drzwiczkami uchylnymi.
Drzwiczki wykonane z pleksy bezbarwnej, o grubości minimum 6mm.
Montaż drzwiczek na stalowym pręcie mocowanym pod górną półką, dolna część
drzwiczek oparta o dolną półkę.
RYSUNEK
POGLĄDOWY
50
0.
Cały regał łącznie z plecami z płyty dwustronnie laminowanej.
materiał: płyta meblowa laminowana, w kolorze białym.
Np. wg Kronospan, biały brylantowy 8681, lub materiał równoważny
50
142
142
12,5
Temat:
BLOG - KOMPLEKSOWE WYPOSAŻENIE PLACÓWKI
Filia nr 2 Miejskiej Biblioteki Publicznej im. Galla Anonima
ul. Perseusza 13, 67-200 Głogów
Nazwa rysunku:
Regał 4 półkowy, wiszący
Nr mebla:
07/ 07.1
Skala:
01:20
Ilość:
13 / 1