A _ Auto-przebudowanie modelu

Transkrypt

A _ Auto-przebudowanie modelu
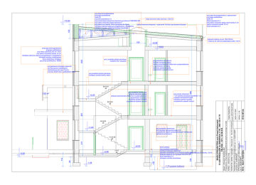
proj papa termozgrzewalna
proj papa podkladowa
deski 25
klapa dymowa wyłaz dachowy 120x120
proj folia budowlana 0,3
proj konstrukcja kratownica drewniana gruntowna FOBOSEM M4
proj wełna mineralna deska dachowa 4
proj wełna min twarda 16cm mocowana do desek
belka drewniana okapowa + opierzenie 10x18cm gruntowana fobosem
istniejace pokrycie papa po przygotowaniu i przepaleniu
istniejace warstwy nadstropowe(płyty korytkowe )
strop zelebetowy istniejacy
122
+10,90
proj papa termozgrzewalna z opierzeniami
proj papa podkladowa
deski 25
folia budowlana 0,3
proj wełna mineralna deska dach twarda 4 cm
wełna mineralna twarda 16 cm
folia budowlana 0,3
~8%
~8%
~8%
katownik stalowy ocynk 100x100mm
kotwiony do wienca podpierajacy belke 10x18
120
+8,98
+8,64
proj posadzka płytyki granitowe
rozbiórka istn posadzki
645
proj papa termozgrzewalna
projpapa podkladowa
proj deska dachowa 2x2 cm =4cm
proj wełna mineralna twarda 16 cm
istniejace pokrycie papa po przygotowaniu i przepaleniu
istniejace warstwy nadstropowe
strop zelebetowy istniejacy
proj strop podwieszony 60x60
proj posadzka ceramiczna
wylewka sampoziomujaca
izolacja przeciwwodna deitermann podposadzkowa
z wywinieciem na sciany
rozbiórka parkiet mozaika
uzupełnienie wylewki cement
przygotowane istniejące wsporniki
do mocowania nowej blachy
dachówkowej alu typu Corona
proj łaty 20x20 stal z podkladkami elast
proj posadzka płytyki granitowe
istniejace schody lastrico beton
proj posadzka ceramiczna
wylewka sampoziomujaca
izolacja przeciwwodna deitermann podposadzkowa
z wywinieciem na sciany
rozbiórka parkiet mozaika
uzupełnienie wylewki cement
9x16,44
28
-1,44
110
80
114
113
19
3 x15
28
125
-0,48
-0,63
KOTŁOWNIA
proj posadzka ceramiczna
warstwa iziolacyjna deiterman
wylewka cementowa 5 cm zbrojona siatką przeciwskurcz fi 5 oczko 15x15
ilzolacja cieplna 8 cm styropian PS-E-FS 30
folia budowalna 0,3
istniejaca szlichta cementowa
-1,74 poziom kotłowni
SKALA 1: 50
DATA: 07 2007
50-416 Twardogóra czesc:ARCHITEKKTURA
RYS NR 6A
RYS : RZUT PARTERU
±0,00
PROJEKTANT:arch.Paweł Kalinowski upr. nr 162/84 WBPP
upr.kons.nr 13/98 PSOZ
SPRAWDZAJĄCY:arch.Stefan Zalewski
upr.nr. 290/84/WBPP
211
11x14,85
28
INWESTOR: GMINA Twardogóra , Ratuszowa 14
proj posadzka ceramiczna
proj warstwa samopoziomujaca 0,5
uzupełnienie warstw podposadzkowych istniejacych
(wylewka cementowa )
ADRES : MOSZYCE 55a
+1,63
TEMAT: PROJEKT BUDOWLANY
Przebudowy i zmiany sposobu użytkowania budynku biurowego na hotel
9x14,85
28
FAZA:P.BUD-WYK.
proj panele drewniane
1 cm warstwa akustyczna podklad 1 cm
wylewka samopoziomujaca
rozbiórka parkiet mozaika
uzupełnienie wylewki cement
281
+4,45
BIURO PROJEKTÓW arch.Paweł Kalinowski
51-428 WROCŁAW UL.NIBORSKA 3 TEL. 0601 58 61 79
TEL/FAX / 071 / 34 56 814
0,02 m 2
990
9x16,44
28