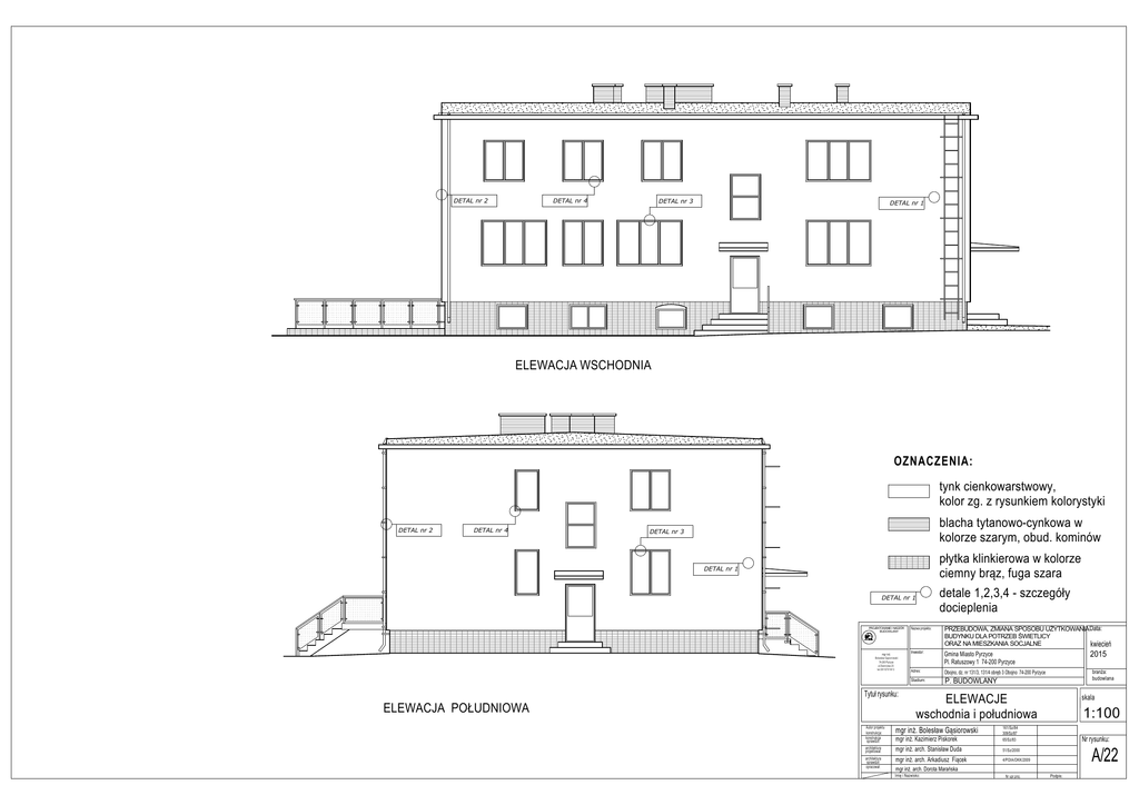
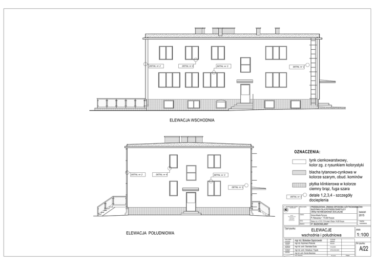
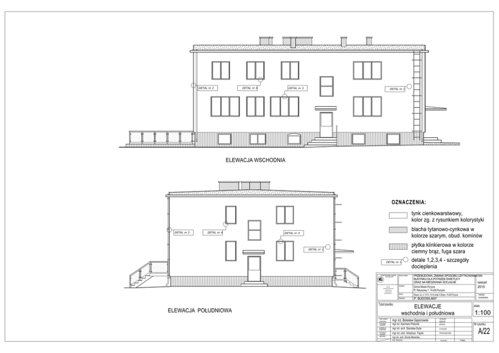
ELEWACJA WSCHODNIA ELEWACJA

Transkrypt

ELEWACJA WSCHODNIA ELEWACJA
DETAL nr 2
DETAL nr 4
DETAL nr 3
DETAL nr 1
ELEWACJA WSCHODNIA
OZNACZENIA:
tynk cienkowarstwowy,
kolor zg. z rysunkiem kolorystyki
DETAL nr 2
DETAL nr 4
blacha tytanowo-cynkowa w
kolorze szarym, obud. kominów
DETAL nr 3
płytka klinkierowa w kolorze
ciemny brąz, fuga szara
DETAL nr 1
DETAL nr 1
PROJEKTOWANIE I NADZÓR
BUDOWLANY
mgr inż.
Bolesław Gąsiorowski
74-200 Pyrzyce
ul.Dworcowa 23
tel.091/5701613
Tytuł rysunku:
ELEWACJA POŁUDNIOWA
Autor projektu
konstrukcja:
konstrukcja
sprawdził:
architektura
projektował:
architektura
sprawdził:
opracował:
detale 1,2,3,4 - szczegóły
docieplenia
Nazwa projektu:
PRZEBUDOWA, ZMIANA SPOSOBU UŻYTKOWANIAData:
BUDYNKU DLA POTRZEB ŚWIETLICY
ORAZ NA MIESZKANIA SOCJALNE
kwiecień
Inwestor:
Gmina Miasto Pyrzyce
Pl. Ratuszowy 1 74-200 Pyrzyce
Adres:
Obojno, dz. nr 131/3, 131/4 obręb 3 Obojno 74-200 Pyrzyce
Stadium:
P. BUDOWLANY
2015
branża:
budowlana
ELEWACJE
wschodnia i południowa
mgr inż. Bolesław Gąsiorowski
mgr inż. Kazimierz Piskorek
mgr inż. arch. Stanisław Duda
mgr inż. arch. Arkadiusz Fiącek
skala
1:100
161/Sz/84
309/Sz/87
65/Sz/83
Nr rysunku:
A/22
51/Sz/2000
4/POIA/OKK/2009
mgr inż. arch. Dorota Marańska
Imię i Nazwisko:
Nr upr.proj.
Podpis: