D:\Dysk D\archiwalne_nowe

Transkrypt

D:\Dysk D\archiwalne_nowe
ŚT
ho=2,56
ho=2,56
22 p. porz.
1,82 gres
ho=2,40
26 komunikacja
16,78 gres
21 pokój szkoleń
9,94 gres
ho=2,56
29 śluza
2,11 gres
ho=2,40
ho=2,56
27 pokój kierownika
6,75 gres
K700
28 boks jałowy
7,56 gres
STRL
32 zmywalnia
5,12 gres
ho=2,56
33 mag opatrunków
17,35 gres
archiwum
ho=2,56
hp=129
KZT
ho=2,56
S40
hp=129
ho=2,56
ho=2,40
hp=129
ho=2,56
ho=2,40
hp=129
02 pokój kierownika
11,78 gres
ho=2,56
06 schowek porz.
2,94 gres
36 komunikacja
25,35 gres
05 pok. socjalny
9,16 gres
ho=2,56
ho=2,56
24 pokój socjalny
4,29 gres
23 wc prac.
2,88 gres
03 recepcja
6,71 gres
01 pobór materiału
8,45 gres
S40
ho=2,56
chłodziarka wysoka
OP
07 rozdział mater.
ho=2,56
5,98 gres
hp=90
hp=90
hp=129
ho=2,56
09 serologia
15,05 gres
08 bank krwi
4,32 gres
OP
- istniejące ściany z cegły pełnej
- projektowane ściany z cegły pełnej
- wyburzenia
- projektowane ściany z gazobetonu
pojemnik na ręczniki papierowe
- projektowane ścianki GKB
chłodziarka niska (podblatowa)
dozownik do płynów dezynfekcyjnych
wieszak ścienny
hp=129
OKAP
hp=129
hp=129
S40
12 anal. ogólna i hematologia
24,58 gres
ścianka wys. 200cm
ho=2,56
11 pom. hig.-sanit.
6,45 gres
10 komunikacja
34,60 gres
35 mag wyr. medycznych
13,35 gres
PATIO
S40
ho=2,40
S40
hp=129
S40
AUTOB
KGLL
S40
13 szatnia
7,65 gres
S40
S40
37 wentylatorownia
11,86 gres
S40
hp=129
ho=2,56
14 odpady
2,16 gres
hp=129
ELK
15 chemia i immunochemia
20,85 gres
S40
S40
S40
ho=2,40
BA 400
S40
38 komunikacja
18,89 gres
GZM
S40
18 śluza br.
2,54 gres
S40
19 pom. hig.-sant.
5,34 gres
20 śluza czysta
3,20 gres
ho=2,56
S40
S40
Bio II
POWIERZCHNIA REZERWOWA (pustostan)
17 pracownia mikrobiologii
20,97 gres
SEGMENT IZBY PRZYJĘĆ
VITEK2
OKAP
AUTOB
AAHEM
RZMR
KGLL
KGMTR
ALZTR
CLN1
WRK
analizator biochemiczny BA 400
stacja uzdatniania wody
okap laboratyryjny
automatyczny aparat do wykonywania
oznaczeñ OB (SEDI-15)
automatyczny analizator hematologiczny
XS-1000i
rozmra¿arka do osocza
koagulologia
koagulometr Sysmex CA-500
analizator cobas u411 system
cieplarka CLN 32 ECO
wirówka MPW-223e
230 VAC, 150 W
230 VAC, 50 W
230 VAC, 500 W, pod³¹czenie wody, kan.sanit. \U+
podłączenie wody, 230 VAC
wentylator 0,2 kW, pod³¹czenie do wyci¹gu
230 VAC / 50 - 60 Hz; nominalny pobór pr¹du 1A, pr¹d
szczytowy 3,6A
230 VAC / 50 - 60 Hz; 210 W
230 VAC / 50 - 60 Hz, program Plasma 45° <75 W, max. moc =
1800 W, zabezpieczenie 8 A slow at 230 VAC
230 VAC; 380-400 W
230 VAC / 50 - 60 Hz; 380-400 W; wyrównanie ciep³a 344kcal/h,
1365 BTU/h; 2 godz. pracy ci¹g³ej / dobê
230 VAC / 50 - 60 Hz; 60 W; bezp. 2,5 AT
230 VAC / 50 - 60 Hz; 300 W; T 3,15 A
230 VAC / 50 - 60 Hz, 120 W
WARUNKI POD£¥CZENIA
SUW
analizator elektrolitowy cobas 9180
URZ¥DZENIE
ZESTAWIENIE WYPOSA¯ENIA TECHNOLOGICZNEGO
BA 400
analizator gazometryczny
SYMBOL
GZM
ELK
cieplarka
200 W
230VAC/50-60 Hz; 700W
230 VAC, 1250 W
komora laminarna I klasy bezpieczeñstwa
230V/50Hz, 1,5 kW, pod³¹czenie do wentylacji - 70 %
recyrkulacji, 30 % powietrza zewnêtrznego
230V, zabezp. 4A
CLN2
230V/50Hz, 85VA
analizator immunochemiczny cobas E 411
K700
Bio II Advance 3 - komora laminarna II
klasy bezpieczeñstwa
analizator mikrobiologiczny
Bio II
230V/50Hz, 600W
VITEK2
lm2
sterylizator na gor¹ce powietrze
lampa bakteriobójcza, obszar dzia³ania
10-20m 2
E 411
STRL
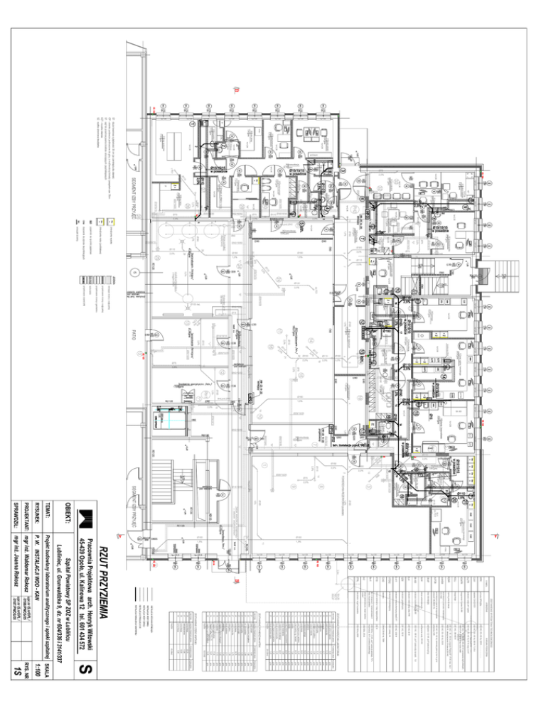
ZESTAWIENIE POWIERZCHNI LABORATORIUM
08
09
05
06
07
02
03
04
komunikacja
pom. higieniczno -sanitarne
prac. analizy og. i hematol.
bank krwi
pracownia serologii
pokój socjalny
schowek porządkowy
rozdział materiału
pokój kierownika
recepcja
poczekalnia
3,68
20,97
2,54
7,65
2,16
20,85
34,60
6,45
24,58
4,32
15,05
9,16
2,94
5,98
11,78
6,71
8,07
gres
gres
gres
gres
gres
gres
gres
gres
gres
gres
gres
gres
gres
gres
gres
gres
gres
gres
gres
POWIERZCHNIA POSADZKA
8,45
gres
10
11
12
szatnia
odpady
prac. chemii i immunochemii
5,34
3,20
NAZWA POMIESZCZENIA
punkt poboru materiału
13
14
15
śluza materiałowa
pracownia mikrobiologii
śluza osobowa brudna
NR POM.
01
16
17
18
NR POM.
pokój szkoleń
pomieszczenie porządkowe
wc pracowników
NAZWA POMIESZCZENIA
6,75
7,56
2,11
4,29
8,25
16,78
9,94
1,82
2,88
gres
gres
gres
gres
gres
gres
gres
gres
gres
gres
gres
gres
gres
gres
204,68m2
pom. higieniczno-sanitarne
śluza osobowa czysta
RAZEM
19
20
21
22
23
pokój socjalny
komora przyjęć
komunikacja
7,10
5,42
5,12
gres
11,86
18,89
8,98
POSADZKA
24
25
26
pokój kierownika
boks jałowy
śluza osobowa
17,35
13,81
POWIERZCHNIA
27
28
29
ekspedycja
magazyn płynów infuzyjnych
zmywalnia
13,35
ZESTAWIENIE POWIERZCHNI APTEKI
30
31
32
magazyn opatrunków
magazyn leków
122,53m2
magazyn wyrobów medyczn.
RAZEM
33
34
65,08m2
S
POSADZKA
35
wentylatorownia
komunikacja
komunikacja
POWIERZCHNIA
25,35
RAZEM
NAZWA POMIESZCZENIA
komunikacja
ZESTAWIENIE CZĘŚCI WSPÓLNEJ
NR POM.
36
37
38
39
INSTALACJA WOD-KAN ISTNIEJĄCA
INSTALACJA WODY ZIMNEJ
INSTALACJA WODY CIEPŁEJ
INSTALACJA KANALIZACJI SANITARNEJ
INSTALACJA CYRKULACJI C.W.
RZUT PRZYZIEMIA
Pracownia Projektowa arch. Henryk Witowski
45-439 Opole, ul. Kalinowa 12 tel. 601 434 572
Projekt budowlany laboratorium analitycznego i apteki szpitalnej SKALA
Szpital Powiatowy SP ZOZ w Lublińcu
Lubliniec, ul. Grunwaldzka 9, dz. nr 604/336 i 3141/337
TEMAT:
mgr inż. Joanna Rokosz
upr.nr IS.nrOPL /
/0187/PWOS/05
upr.nr IS.nrOPL /
/0188/PWOS/05
1S
RYS. NR
1:100
P. W. INSTALACJI WOD - KAN
SPRAWDZIŁ:
PROJEKTANT: mgr inż. Waldemar Rokosz
RYSUNEK:
OBIEKT:
hp=129
hp=129
hp=129
hp=129
hp=129
hp=129
ho=2,56
S40
04 poczekalnia
8,07 gres
S40
25 komora przyjęć
8,25 gres
ho=2,56
30 ekspedycja
7,10 gres
ho=2,56
34 mag leków
13,81 gres
ho=2,56
31 magaz. pł. infuz.
5,42 gres
SF
SEGMENT IZBY PRZYJĘĆ
ŚT - śluza towarowa o głębokości 30 cm (po zamknięciu obu okienek)
OP - okienko podawcze podnoszone do góry, z możliwością blokady i parapetem szer. 30cm
ST - sejf do przechowywania środków odurzających i psychotropowych
KZT - kozetka lekarska
SZ - szafka ubraniowa dwudzielna
39 komunikacja
8,98 gres
hp=129
hp=129
hp=129
hp=129
hp=129
hp=129
hp=129
hp=129
hp=129
hp=129
hp=129
hp=129
16 śluza mat.
3,68 gres