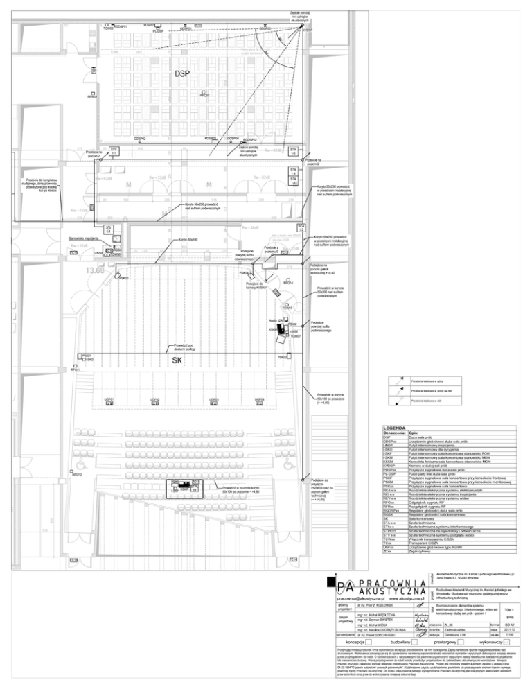
Rys. EP06

Transkrypt

Rys. EP06
Przebicie kablowe w górę
Przebicie kablowe w górę i w dół
Przebicie kablowe w dół
LEGENDA
Oznaczenie: Opis:
DSP
GDSPxx
I-INSP
I-SKD
I-SKF
I-SKM
KSKM
KVDSP
PDSPxx
PL-DSP
PSKF
PSKM
PSKxx
REA x-x
REI x-x
REV x-x
RFOxx
RFRxx
RGDSPxx
RGSK
SK
STA x-x
STI x-x
STPL01
STV x-x
TCWxx
TCxx
UGFxx
ZCxx
DuŜa sala prób
Urządzenie głośnikowe duŜa sala prób
Pulpit interkomowy inspicjenta
Pulpit interkomowy dla dyrygenta
Pulpit interkomowy sala koncertowa stanowisko FOH
Pulpit interkomowy sala koncertowa stanowisko MON
Konsoleta foniczna sala koncertowa stanowisko MON
Kamera w duŜej sali prób
Przyłącze sygnałowe duŜa sala prób
Pulpit party line duŜa sala prób
Przyłącze sygnałowe sala koncertowa przy konsolecie frontowej
Przyłącze sygnałowe sala koncertowa przy konsolecie monitorowej
Przyłącze sygnałowe sala koncertowa
Rozdzielnia elektryczna systemu elektroakustyki
Rozdzielnia elektryczna systemu inspicjenta
Rozdzielnia elektryczna systemu wideo
Odgałęźnik sygnału RF
Rozgałęźnik sygnału RF
Regulator głośności duŜa sala prób
Regulator głośności sala koncertowa
Sala koncertowa
Szafa techniczna
Szafa techniczna systemu interkomowego
Szafa techniczna na rejestratory i odtwarzacze
Szafa techniczna systemu podglądu wideo
Włącznik transparentu CISZA
Transparent CISZA
Urządzenie głośnikowe typu frontfill
Zegar cyfrowy