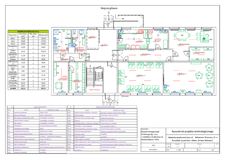
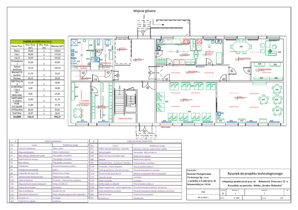
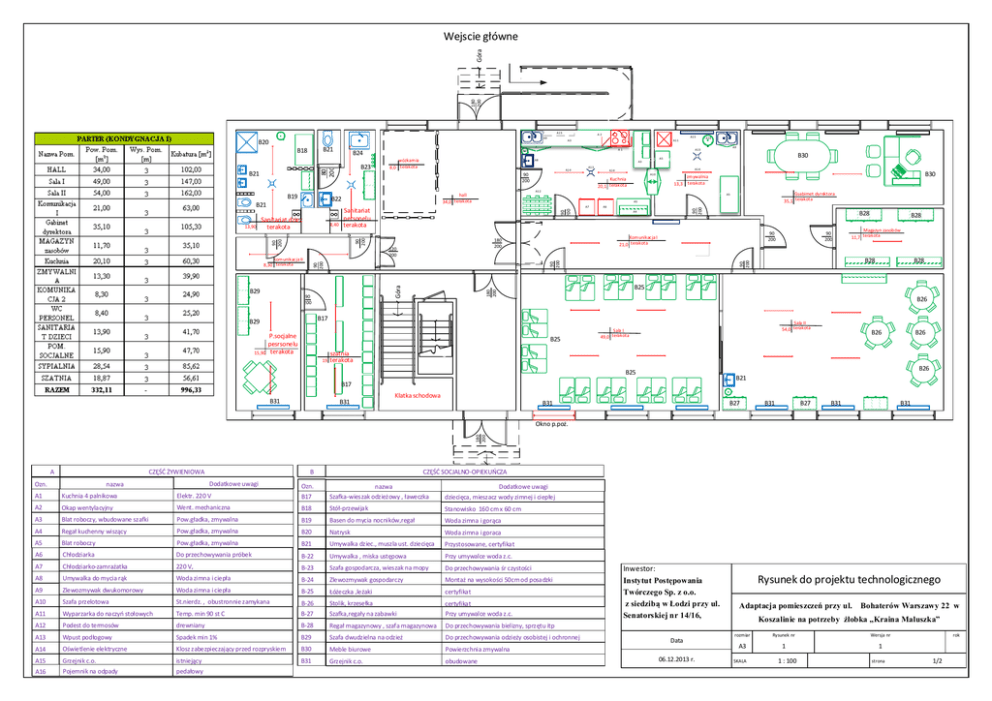
Wejscie główne Rysunek do projektu technologicznego

Transkrypt

Wejscie główne Rysunek do projektu technologicznego
180
200
Góra
Wejscie główne
A15
B19
A10
Kuchnia
20,1 terakota
A7
90
200
A6
1,4 m x 0,7 m
A4
90
200
90
200
180
200
Góra
90
200
90
200
B28
Magazyn zasobów
11,7 terakota
B28
B28
B25
Dół
B26
Sala II
54,0 terakota
Sala I
49,0 terakota
szatnia
terakota
B26
B25
B21
B17
B31
B26
B26
dół
B25
B31
Gsabimet dyrektora
35,1 terakota
B28
Komunikacja I
21,0 terakota
180
200
B17
19
B30
zmywalnia
13,3 terakota
1,5 mA5x 0,8 m
Sanitariat
personelu
terakota
90
200
P.socjalne
pesrsonelu
terakota
A14
A14
A5
120
200
B29
B30
0,7 m x 0,6 m
A12
90
200
8,40
Komunikacja II
8,30 terakota
15,90
A14
90
200
Sanitariat dziec
terakota
A3
A13
90
200
hall
34,0 terakota
A9
A13
A5
A8
B22
B21
B29
wózkarnia
8,0 terakota
1,6 m x 0,7 m
A1
A16
90
200
80
200
B21
A15
A11
A16
B24
B23
A2
90
200
B21
B18
13,90
4,6A3m x 0,7 m
A9
B20
Klatka schodowa
B27
B31
B31
B27
B31
B31
180
200
Okno p.poż.
CZĘŚĆ ŻYWIENIOWA
Ozn.
B
Dodatkowe uwagi
nazwa
Ozn.
CZĘŚĆ SOCJALNO-OPIEKUŃCZA
Góra
A
A1
Kuchnia 4 palnikowa
Elektr. 220 V
B17
nazwa
Szafka-wieszak odzieżowy , ławeczka
dziecięca, mieszacz wody zimnej i ciepłej
Dodatkowe uwagi
A2
Okap wentylacyjny
Went. mechaniczna
B18
Stół-przewijak
Stanowisko 160 cm x 60 cm
A3
Blat roboczy, wbudowane szafki
Pow.gładka, zmywalna
B19
Basen do mycia nocników,regał
Woda zimna i gorąca
A4
Regał kuchenny wiszący
Pow.gładka, zmywalna
B20
Natrysk
Woda zimna i goraca
A5
Blat roboczy
Pow.gładka, zmywalna
B21
Umywalka dziec., muszla ust. dziecięca
Przystosowane, certyfikat
A6
Chłodziarka
Do przechowywania próbek
B-22
Umywalka , miska ustępowa
Przystosowane,
certyfikat
Przy umywalce woda
z.c.
A7
Chłodziarko-zamrażatka
220 V,
B-23
Szafa gospodarcza, wieszak na mopy
Do przechowywania śr czystości
A8
Umywalka do mycia rąk
Woda zimna i ciepła
B-24
Zlewozmywak gospodarczy
Montaż na wysokości 50cm od posadzki
A9
Zlewozmywak dwukomorowy
Woda zimna i ciepła
B-25
Łóżeczka ,leżaki
certyfikat
A10
Szafa przelotowa
St.nierdz. , obustronnie zamykana
B-26
Stolik, krzesełka
A11
Wyparzarka do naczyń stołowych
Temp. min 90 st C
B-27
Szafka,regały na zabawki
certyfikat
Przy umywalce woda z.c.
A12
Podest do termosów
drewniany
B-28
Regał magazynowy , szafa magazynowa
Do przechowywania bielizny, sprzętu itp
A13
Wpust podłogowy
Spadek min 1%
B29
Szafa dwudzielna na odzież
Do przechowywania odzieży osobistej i ochronnej
A14
Oświetlenie elektryczne
Klosz zabezpieczający przed rozpryskiem
B30
Meble biurowe
Powierzchnia zmywalna
A15
Grzejnik c.o.
istniejący
B31
Grzejnik c.o.
obudowane
A16
Pojemnik na odpady
pedałowy
Inwestor:
Instytut Postępowania
Twórczego Sp. z o.o.
z siedzibą w Łodzi przy ul.
Senatorskiej nr 14/16,
Data
06.12.2013 r.
Rysunek do projektu technologicznego
Adaptacja pomieszczeń przy ul.
Bohaterów Warszawy 22 w
Koszalinie na potrzeby żłobka „Kraina Maluszka”
rozmiar
Rysunek nr
Wersja nr
A3
1
1
SKALA
1 : 100
strona
rok
1/2