Zestawienie materiałów z miedzi użytych do budowy domu

Transkrypt

Zestawienie materiałów z miedzi użytych do budowy domu
Zestawienie materiałów z miedzi użytych do budowy domu.
1. Obróbki dachowe i system rynnowy:
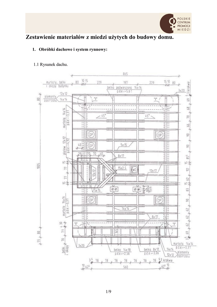
1.1 Rysunek dachu.
1/9
1.2 Zestawienie materiałów.
Rodzaj
materiału
Producent
Powierzchnia
uwalniająca jony Cu
(anty porostowa) (0,5
m²/m)
Blacha miedziana
klasyczna
KME
Blacha koszowa (0,4
m²/m)
Blacha miedziana
klasyczna
KME
Pas okapowy (0,2 m²/m)
Blacha miedziana
klasyczna
Zabezpieczenie deski
czołowej (0,11/m²)
Artykuł:
Długość (m)
Ilość (szt.)
Powierzchnia Waga
(m²)
(kg)
6
32,2
6
2,4
12,9
KME
34
6,8
36,5
Blacha miedziana
klasyczna
KME
34
3,7
19,9
Obróbka balkonu
(0,2/m)
Blacha miedziana
klasyczna
KME
4
0,8
4,3
Rynna spustowa 150
mm (0,33/mb)
Blacha miedziana
klasyczna
KME
34
11,2
60,1
Rura spustowa 80 mm
(0,33/m)
Blacha miedziana
klasyczna
KME
22
7,3
39,2
Kolano 72º ( 0,15
kg/szt.)
Blacha miedziana
klasyczna
12
1,8
Kosz (0,15 kg/szt.)
Blacha miedziana
klasyczna
6
0,9
Denko (0,05kg/szt.)
Blacha miedziana
klasyczna
10
0,5
Obejma (0,3kg/szt.)
18
5,4
Haki rynnowe (0,66
kg/szt.)
64
42,2
12
Razem:
255,9
Waga 1m² blachy miedzianej o grubości 0,6 mm = 5,37 kg/mb
Na dach zużyto 256 kg miedzi.
2. Rysunki parteru i piętra
2/9
Parter
3/9
Piętro
Powierzchnia użytkowa parteru i piętra ok. 100 m² ( dom średniej wielkości)
4/9
3. Instalacja wody pitnej
Rodzaj
materiału
Producent
Długość
(m)
Rura Ø 28x1,5 (stan twardy, )
waga 1,11 kg/m
Miedź
Hutmen
2,5
2,8
Rura Ø 22 (stan twardy)
waga 0,587 kg/m
Miedź
Hutmen
5,5
3,2
Rura Ø18 ( stan twardy)
waga 0,475 kg/m
Miedź
Hutmen
3,0
1,4
Rura Ø 15 (stan twardy)
waga 0,391 kg/m
Miedź
Hutmen
1,5
0,6
Rura Ø18 ( stan miekki)
waga 0,475 kg/m
Miedź
Wieland
13,0
6,2
Rura Ø 15 (stan miękki)
waga 0,391kg/m
Miedź
Wieland
16,5
6,5
Trójnik zaprasowywany 28
0,0918 kg
Miedź
IBP
2
0,18
Trójnik zaprasowywany 22
0,055 kg
Miedź
IBP
3
0,17
Trójnik zaprasowywany 18
0,0336 kg
Miedź
IBP
1
0,03
Trójnik zaprasowywany 15
0,0216 kg
Miedź
IBP
2
0,04
Mufa zaprasowowywane
redukcyjna 28x22 0,15
Miedź
IBP
1
0,15
Brąz
IBP
1
0,01
Brąz
IBP
3
0,11
Brąz
IBP
1
0,04
Brąz
IBP
7
0,29
Kolano zaprasowywane
dwukielichowe 90º 28 0,0711 kg
Miedź
IBP
4
0,28
Kolano zaprasowywane
dwukielichowe 90º 22 0,046kg
Miedź
IBP
6
0,28
Artykuł:
Nypel przejściowy (60% Cu)
zaprasowywany GZ 28/1
0,101 kg
Nypel przejściowy
zaprasowywany GZ 22/¾
0,061 kg
Nypel przejściowy
zaprasowywany GW 22/¾
0,068 kg
Nypel przejściowy
zaprasowywany GZ 18/¾
0,069 kg
5/9
Ilość
(szt.)
Waga
(kg)
Kolano zaprasowywane
dwukielichowe 90º 18 0,028 kg
Miedź
IBP
7
0,2
Kolano zaprasowywane
dwukielichowe 90º 15 0,017 kg
Miedź
IBP
2
0,03
Kolano zaprasowywane
dwukielichowe 45º 28 0,0466 kg
Miedź
IBP
1
0,05
Kolano zaprasowywane
dwukielichowe 45º 22 0,0341
Miedź
IBP
1
0,03
Brąz
IBP
2
0,03
Mufa zaprasowywana 15
0,023 kg
Razem:
22,58
6/9
4. Ciepła woda użytkowa
Rodzaj
materiału
Producent
Długość
(m)
Rura Ø18 ( stan twardy)
waga 0,475 kg/m
Miedź
Hutmen
3,0
1,4
Rura Ø 15 (stan twardy)
waga 0,391 kg/m
Miedź
Hutmen
4,0
1,5
Rura Ø18 ( stan miekki)
waga 0,475 kg/m
Miedź
Wieland
13,0
6,2
Rura Ø 15 (stan miękki)
waga 0,391kg/m
Miedź
Wieland
15,0
5,8
Trójnik zaprasowywany 15
0,0216 kg
Miedź
IBP
1
0,02
Brąz
IBP
5
0,21
Brąz
IBP
2
0,05
Miedź
IBP
4
0,11
Miedź
IBP
5
0,09
Miedź
IBP
2
0,04
Miedź
IBP
3
0,03
Miedź
IBP
4
0,05
Artykuł:
Nypel przejściowy
zaprasowywany GZ 18/¾
0,069 kg
Nypel przejściowy
zaprasowywany GZ 15/½
0,04 kg
Kolano zaprasowywane
dwukielichowe 90º 18
0,028 kg
Kolano zaprasowywane
dwukielichowe 90º 15
0,017 kg
Kolano zaprasowywane
dwukielichowe 45º 18
0,0205 kg
Kolano zaprasowywane
dwukielichowe 45º 15
0,0113 kg
Mufa redukcyjna zaprasowywana
18/15
0,013
Razem:
Ilość
(szt.)
Waga
(kg)
18,5
7/9
5. Ogrzewanie podłogowe.
Rodzaj
materiału
Producent
Długość
(m)
Rura Ø 28x1,0 (stan twardy, )
waga 0,755 kg/m
Miedź
Hutmen
7,0
5,3
Rura Ø 22 (stan twardy)
waga 0,587 kg/m
Miedź
Hutmen
2,0
1,2
Rura Cuprotherm Plus 14 x 0,8
waga 0,295 kg/m
Miedź
Wieland
350,0
103,3
Rozdzielacz 5 drogowy
Mosiądz
Wieland
1
Rozdzielacz 7 drogowy
Mosiądz
Wieland
1
Miedź
IBP
3
0,45
Brąz
IBP
10
1,01
Brąz
IBP
2
0,14
Miedź
IBP
10
0,71
Miedź
IBP
11
0,51
Miedź
IBP
5
0,17
Miedź
IBP
10
0,3
Artykuł:
Mufa redukcyjna zaprasowywana
28x22
0,15 kg
Nypel przejściowy
zaprasowywany GZ 28/1
0,101 kg
Nypel przejściowy
zaprasowywany GW 22/1
0,068 kg
Kolano zaprasowywane
dwukielichowe 90º 28
0,0711 kg
Kolano zaprasowywane
dwukielichowe 90º 22
0,046 kg
Kolano zaprasowywane
dwukielichowe 45º 22
0,0341 kg
Łącznik przelotowy
do lutowania 14
0,03
Razem:
Ilość
(szt.)
Waga
(kg)
113,1
8/9
6. Solar
Artykuł:
Rodzaj
materiału
Producent
Długość
(m)
Rura 22x1,0 (stan twardy, ) waga
0,587 kg/m
Miedź
Hutmen
0,5
0,3
Rura 18x1 (stan twardy)
waga 0,475 kg/m
Miedź
Hutmen
2,0
1,0
Rura 18x1 ( stan miękki)
waga 0,475 kg/m
Miedź
Wieland
23,0
10,9
Miedź
IBP
2
0,09
Miedź
IBP
5
0,14
Miedź
IBP
1
0,02
Trójnik zaprasowywany 18
0,0336 kg
Miedź
IBP
1
0,03
Nypel przejściowy
zaprasowywany GW 18/¾
0,0613
Brąz
IBP
1
0,06
Kolano zaprasowywane
dwukielichowe 90º 22
0,046 kg
Kolano zaprasowywane
dwukielichowe 90º 18
0,028 kg
Kolano zaprasowywane
dwukielichowe 45º 18
0,0205 kg
Razem:
Ilość
(szt.)
Waga
(kg)
12,5
7. Ilość kg miedzi zużytej w budynku.
Ilość miedzi (kg)
256,0
21,0
18,0
110,0
12,0
20,0
437
Rodzaj prac:
1. Obróbki dachowe i system rynnowy:
2. Instalacja wody pitnej
3. Instalacje ciepłej wody użytkowej
4. Ogrzewanie podłogowe
5. Instalacja solarna
6. Szacunkowa waga złączek i kształtek
Razem:
8. Wnioski


Do wykonania prac dekarskich oraz instalacji wewnątrz budynku zużyto ok.
437 kg miedzi.
Ilości materiałów zużytych podczas prac określono na podstawie projektu
wykonawczego oraz faktur zakupowych.
9/9