Przedmiot Wybieralny III - Technologia CAD

Transkrypt

Przedmiot Wybieralny III - Technologia CAD
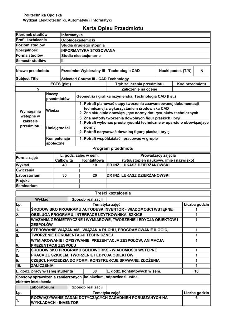
Politechnika Opolska
Wydział Elektrotechniki, Automatyki i Informatyki
Karta Opisu Przedmiotu
Kierunek studiów
Profil kształcenia
Poziom studiów
Specjalność
Forma studiów
Semestr studiów
Informatyka
Ogólnoakademicki
Studia drugiego stopnia
INFORMATYKA STOSOWANA
Studia niestacjonarne
II
Nazwa przedmiotu
Przedmiot Wybieralny III - Technologia CAD
Subject Title
Całk.
5
Wymagania
wstępne w
zakresie
przedmiotu
Nauki podst. (T/N)
N
Selected Course III - CAD Technology
ECTS (pkt.)
Tryb zaliczenia przedmiotu
Kod przedmiotu
Zaliczenie na ocenę
Kont.
1,2 Prakt.
3,2
Nazwy
Geometria i grafika inżynierska, Technologia CAD (I st.)
przedmiotów
1. Potrafi planować etapy tworzenia zaawansowanej dokumentacji
technicznej z wykorzystaniem środowiska CAD
Wiedza
2. Zna aktualnie obowiązujące normy dot. rysunków technicznych
3. Zna metody tworzenia dowolnych figur płaskich i brył
1. Potrafi wykonać proste rysunki techniczne w oparciu o obowiązujące
normy
Umiejętności
2. Potrafi narysować dowolną figurę płaską i bryłę
…
Kompetencje
1. Potrafi współdziałać i pracować w grupie
społeczne
Program przedmiotu
Forma zajęć
Wykład
Ćwiczenia
Laboratorium
Projekt
Seminarium
L. godz. zajęć w sem.
Prowadzący zajęcia
Całkowita
Kontaktowa
(tytuł/stopień naukowy, imię i nazwisko)
40
10
DR INŻ. LUKASZ DZIERŻANOWSKI
|
|
80
20
DR INŻ. LUKASZ DZIERŻANOWSKI
|
|
|
Treści kształcenia
Wykład
Sposób realizacji
Tematyka zajęć
ŚRODOWISKO PROGRAMU AUTODESK INVENTOR - WIADOMOŚCI WSTĘPNE
OBSŁUGA PROGRAMU, INTERFACE UŻYTKOWNIKA, SZKICE
WIĄZANIA GEOMETRYCZNE I WYMIAROWE, TWORZENIE I EDYCJA OBIEKTÓW I
ZESPOŁÓW
3.
STEROWANIE WIĄZANIAMI, WIĄZANIA RUCHU, PROGRAMOWANIE ILOGIC,
4.
TWORZENIE DOKUMENTACJI TECHNICZNEJ
5.
WYMIAROWANIE I OPISYWANIE, PREZENTACJA ZESPOŁÓW, ANIMACJA
6.
PREZENTACJI ZESPOŁU
ŚRODOWISKO PROGRAMU SOLIDWORKS - WIADOMOŚCI WSTĘPNE
7.
PRACA ZE SZKICEM, TWORZENIE I EDYCJA OBIEKTÓW
8.
CZĘSCI, NARZEDZIA DO FORM, KONSTRUKCJE SPAWANE, ZŁOŻENIA
9.
10.
ZALICZENIA
L. godz. pracy własnej studenta
30
L. godz. kontaktowych w sem.
Sposoby sprawdzenia zamierzonych kolokwium, odpowiedzi ustne,
efektów kształcenia
Laboratorium
Sposób realizacji
Lp.
Tematyka zajęć
ROZWIĄZYWANIE ZADAŃ DOTYCZĄCYCH ZAGADNIEŃ PORUSZANYCH NA
1.
WYKŁADACH - INVENTOR
Lp.
1.
2.
Liczba godzin
1
1
1
1
1
1
1
1
1
1
10
Liczba godzin
6
2.
3.
4.
5.
6.
KOLOKWIUM ZALICZENIOWE - INVENTOR
ROZWIĄZYWANIE ZADAŃ DOTYCZĄCYCH ZAGADNIEŃ PORUSZANYCH NA
KOLOKWIUM ZALICZENIOWE - SOLIDWORKS
PREZENTACJA ZAPROJEKTOWANYCH MODELI
ZALICZENIA
1
8
1
2
2
L. godz. pracy własnej studenta
60
L. godz. kontaktowych w sem.
20
Sposoby sprawdzenia zamierzonych kolokwia zaliczeniowe, wykonywanie ćwiczeń, prezentacja
efektów kształcenia
zaprezentowanych modeli
1. Potrafi wymienić zasady modelowania parametrycznego
Wiedza
2. Zna strukturę dokumentów w środowisku Inventor i Solid
Works
Efekty kształcenia dla
przedmiotu - po
zakończonym cyklu
kształcenia
Umiejętności
1. Potrafi utworzyć szkic, część i złożenie dla wskazanego
układu mechanicznego
2. Potrafi wykonać dokumentację techczniczną dla modelu
3. Ma umiejętności samokształcenia się.
Kompetencje
społeczne
1. Rozumie potrzebę ciągłego dokształcania się
2. Potrafi odpowiednio określić priorytety służące realizacji
określonego przez siebie lub innych zadania.
…
Metody dydaktyczne:
Prezentacje multimedialne wykładowcy, dyskusje, rozwiązywanie zadań praktycznych w środowisku
Inventor.
Forma i warunki zaliczenia przedmiotu:
Przedstawienie do oceny modelu narysowanego zgodnie z przedstawionymi założeniami.
Literatura podstawowa:
[1] Inventor 2010 Help – pomoc programu
[2] Noga B., Kosma Z., Parczewski J.: Inventor. Pierwsze kroki, Helion 2009
[3] Stasiak F.: Autodesk Inventor 11. Zbiór ćwiczeń, Expertbooks 2006
[4] Babiuch M.: SolidWorks 2009 PL. Ćwiczenia
[5] Kapias K.: SolidWorks 2001 Plus. Podstawy
[6]
[7]
[8]
Literatura uzupełniająca:
[1] Waguespack C., Jahraus L.: Mastering Autodesk Inventor 2010, Sybex 2009
[2] Samuel S.M., Robbins K.E., Paul N.: Beginning to Advanced SolidWorks 2011
[3]
[4]
[5]
[6]
[7]
______________
* niewłaściwe przekreślić
…………………………………………………..
……………………………………………………….
(kierownik jednostki organizacyjnej/bezpośredni przełożony:
pieczęć/podpis
(Dziekan Wydziału
pieczęć/podpis)