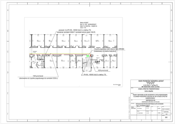
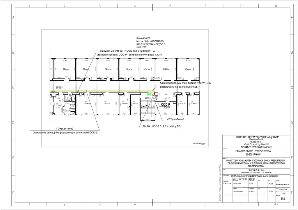
Czujnik pogodowy wiatr-deszcz typu WRG82 YDYp 4x1mm2

Transkrypt

Czujnik pogodowy wiatr-deszcz typu WRG82 YDYp 4x1mm2
Czujnik pogodowy wiatr-deszcz typu WRG82
(instalowany na dachu budynku)
YDYp 4x1mm2
YDYp 2x1mm2
(sterowanie od czujnika pogodowego do centralki COD-L)
PH 90, HDGS 3x2,5 z tablicy TG