załącznik nr 1

Transkrypt

załącznik nr 1
załącznik nr 1
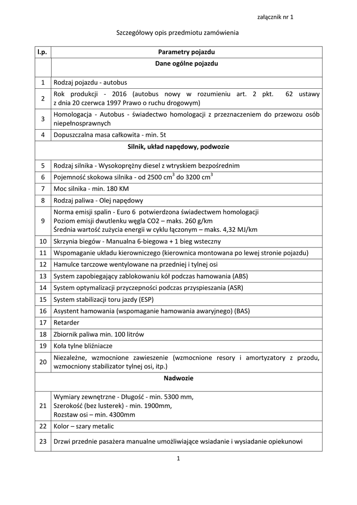
Szczegółowy opis przedmiotu zamówienia
l.p.
Parametry pojazdu
Dane ogólne pojazdu
1
Rodzaj pojazdu - autobus
2
Rok produkcji - 2016 (autobus nowy w rozumieniu art. 2 pkt.
z dnia 20 czerwca 1997 Prawo o ruchu drogowym)
3
Homologacja - Autobus - świadectwo homologacji z przeznaczeniem do przewozu osób
niepełnosprawnych
4
Dopuszczalna masa całkowita - min. 5t
62 ustawy
Silnik, układ napędowy, podwozie
5
Rodzaj silnika - Wysokoprężny diesel z wtryskiem bezpośrednim
6
Pojemność skokowa silnika - od 2500 cm3 do 3200 cm3
7
Moc silnika - min. 180 KM
8
Rodzaj paliwa - Olej napędowy
9
Norma emisji spalin - Euro 6 potwierdzona świadectwem homologacji
Poziom emisji dwutlenku węgla CO2 – maks. 260 g/km
Średnia wartość zużycia energii w cyklu łączonym – maks. 4,32 MJ/km
10 Skrzynia biegów - Manualna 6-biegowa + 1 bieg wsteczny
11 Wspomaganie układu kierowniczego (kierownica montowana po lewej stronie pojazdu)
12 Hamulce tarczowe wentylowane na przedniej i tylnej osi
13 System zapobiegający zablokowaniu kół podczas hamowania (ABS)
14 System optymalizacji przyczepności podczas przyspieszania (ASR)
15 System stabilizacji toru jazdy (ESP)
16 Asystent hamowania (wspomaganie hamowania awaryjnego) (BAS)
17 Retarder
18 Zbiornik paliwa min. 100 litrów
19 Koła tylne bliźniacze
20
Niezależne, wzmocnione zawieszenie (wzmocnione resory i amortyzatory z przodu,
wzmocniony stabilizator tylnej osi, itp.)
Nadwozie
Wymiary zewnętrzne - Długość - min. 5300 mm,
21 Szerokość (bez lusterek) - min. 1900mm,
Rozstaw osi – min. 4300mm
22 Kolor – szary metalic
23 Drzwi przednie pasażera manualne umożliwiające wsiadanie i wysiadanie opiekunowi
1
załącznik nr 1
Szczegółowy opis przedmiotu zamówienia
24
Dodatkowe przesuwne drzwi boczne z prawej strony pojazdu, umożliwiające wsiadanie
i wysiadanie pasażerom, w pełni przeszklone, elektryczne, jednoskrzydłowe
25 Nadwozie boczne w pełni oszklone, szyby podwójne, panoramiczne, termoizolacyjne
26 Szyba przednia ogrzewana, ze szkła klejonego z filtrem
27 Wysokość mierzona od linii podłogowej do sufitu nie mniej niż 1850 mm
28
Obniżony dwustopniowy podest ułatwiający wsiadanie i wysiadanie z kabiny pasażerskiej,
podest podświetlony
29
Wysokość mierzona od jezdni do płyty podłogowej jak najniższa zapewniająca komfort
wsiadania i bezpieczeństwo osób niepełnosprawnych
30 Światła obrysowe
31 Chlapacze
32 Dodatkowe kierunkowskazy dachowe
33 Okna w drzwiach tylnych, ogrzewane, przyciemniane
34
Elektrycznie sterowane i podgrzewane lusterka zewnętrzne, ze zintegrowanymi
kierunkowskazami
35 Światła do jazdy dziennej LED
36 Światła przeciwmgłowe z tyłu i przodu pojazdu
37 Dodatkowe trzecie światło hamowania STOP
38 Malowanie zderzaków , listew bocznych , lusterek w kolorze nadwozia
39 Oznakowanie pojazdu z przodu i tyłu symbolem „inwalidzi”
Wyposażenie
Ilość miejsc siedzących 19+1 (kierowca) z opcją umożliwiającą łatwy demontaż trzech foteli
40 pasażerskich znajdujących się na szynach podłogowych umożliwiających kotwiczenie
wózków inwalidzkich (atestowane)
41
Komfortowy, hydraulicznie resorowany, regulowany fotel kierowcy wyposażony w
zagłówek i trzypunktowe pasy bezpieczeństwa z ograniczeniem napięcia oraz podłokietnik
42
Komfortowe fotele w kabinie pasażerskiej klasy turystycznej uchylno-rozsuwane wykonane
z tapicerki materiałowej o wysokiej wytrzymałości na przetarcia z podłokietnikami
43
Fotele w kabinie pasażerskiej wyposażone w trzypunktowe pasy bezpieczeństwa
z ograniczeniem napięcia i zagłówki
44
Płaska podłoga wykonana z materiałów wysokiej wytrzymałości pokryta antypoślizgową,
łatwo zmywalną wykładziną o podwyższonych parametrach ścieralności
45 Komplet atestowanych zamocowań do kotwiczenia wózków inwalidzkich – 3 szt.
46 Komplet pasów do mocowania osób niepełnosprawnych ruchowo – 3 szt.
47
Pełne tapicerowanie przestrzeni pasażerskiej - pokrycie ścian, sufitu, słupków,
termoizolacja i wygłuszenie
48 Uchwyty wejściowe dla kierowcy i pasażera
2
załącznik nr 1
Szczegółowy opis przedmiotu zamówienia
49
Barierki bezpieczeństwa przy drzwiach bocznych oraz zamontowane uchwyty ułatwiające
wsiadanie i wysiadanie
50 Luk dachowy uchylny z młotkiem bezpieczeństwa pełniący rolę wyjścia awaryjnego
51 Półki na bagaż podręczny z oświetleniem LED i kanałem klimatyzacji oraz nagłośnieniem
52 Półka nad fotelami kierowcy i pasażera
53 Pokrywa schowka na środku deski rozdzielczej
54 Klimatyzacja kierowcy
55
Klimatyzacja dachowa części pasażerskiej z rozprowadzeniem (min. 10kW), parownik
klimatyzacji umieszczony na dachu w osłonie w kolorze nadwozia
56
Dodatkowe ogrzewanie konwektorowe, lewa i prawa strona niezależne od pracy silnika o
mocy min. 4 kW (elektroniczna regulacja),
57
Oświetlenie podsufitowe LED do jazdy nocnej i postojowe w przedziale kierowcy i części
pasażerskiej
58 Oświetlenie przejścia w części pasażerskiej
59 Zasłonki przeciwsłoneczne w oknach przedziału pasażerskiego
60
Wybijaki szyb samochodowych (min. 4 szt.) wraz z ostrzem do cięcia pasów zamontowane
na ścianach bocznych plus oznaczenie wyjść awaryjnych
61 Poduszka powietrzna kierowcy i pasażera
62 Lusterko wsteczne wewnętrzne
63 Elektrycznie sterowane szyby boczne przednie
64 Immobiliser
65 Tachograf cyfrowy z ważną legalizacją
66 Obrotomierz i prędkościomierz z licznikiem kilometrów i licznikiem dziennym
67 Automatyczna blokada drzwi w czasie jazdy
68 Centralny zamek sterowany zdalnie pilotem
69
Kierownica regulowana w dwóch płaszczyznach, wielofunkcyjna z komputerem
pokładowym
70 Instalacja alarmowa z pilotem
71 Homologowany ogranicznik prędkości do 100km/h
72 Czujnik światła i deszczu
73 Regulacja zasięgu reflektorów
74 Sygnalizator cofania
75 Kamera cofania
76 Wskaźnik temperatury zewnętrznej
77 Tempomat
3
załącznik nr 1
Szczegółowy opis przedmiotu zamówienia
78
Radioodtwarzacz CD wraz z głośnikami w przedniej i tylnej części z mikrofonem, MP3, USB
i zintegrowanym monitorem
79 Nawigacja GPS
80 Odtwarzacz DVD z podwieszonym monitorem składanym LCD min. 19’’
Winda hydrauliczna wewnętrzna
81
a) sterowanie elektryczne wraz z dopuszczeniem UDT,
b) udźwig minimum 300 kg,
c) minimum 2 siłowniki podnoszące,
d) automatycznie rozkładana blokada wózka na końcu platformy,
e) automatycznie rozkładana płyta łącząca platformę z podłogą pojazdu,
f) mechaniczna blokada platformy w pozycji do jazdy,
g) sterowanie - pilot na kablu spiralnym obsługujący wszystkie funkcje,
h) możliwość ręcznego sterowania windą,
i) kable zasilające z bezpiecznikiem głównym,
j) automatyczne rozkładanie poręczy,
k) agregat elektryczno-hydrauliczny zamontowany wewnątrz ramy windy,
l) ręczna pompa do podnoszenia w przypadku braku zasilania,
m) awaryjny system opuszczania platformy,
n) wyłącznik prądu windy,
o) maksymalna wysokość podnoszenia zgodna z wysokością podłogi w pojeździe,
p) winda ma spełniać dyrektywy bezpieczeństwa UE i posiadać znak CE,
q) gwarancja na windę minimum 24 miesiące.
82 Koło zapasowe
83 Komplet opon letnich i zimowych z felgami stalowymi i kołpakami ozdobnymi
84 Apteczka - 1 szt.
85
Gaśnica proszkowa (1kg), spełniająca wymagania normy europejskiej EN3 oraz Dyrektywy
Bezpieczeństwa PED 97/23/EC – 3 szt.
86 Trójkąt ostrzegawczy – 1 szt.
87 Klin pod koła – 1 szt.
88 Samochodowy podnośnik hydrauliczny – 1 szt.
89 Klucz do demontażu kół – 1 szt.
4