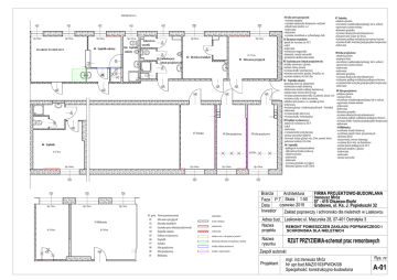
RZUT PRZYZIEMIA-schemat prac remontowych

Transkrypt

RZUT PRZYZIEMIA-schemat prac remontowych
91
121
Hp=90cm
Hp=121cm
04 Szpitalik zakaźny
05 GABINET WYCHOWAWCY
04a Szpitalik
zakaźny
Schowek na
szczotki
70
202
150
150
91
153
Hp=90cm
150
150
91
153
Hp=90cm
91
122
91
153
MODERNIZACJA
Hp=94cm
Hp=94cm
70
204
70
202
03 Łazienka przy
izbach przejściowych
90
205
H=271cm
02 Dyżurka strażników
01 Izba nowo przyjętych
96
204
86
204
86
204
86
204
80
204
80
204
88
204
70
204
80
204
80
204
70
202
92
202
80
202
60
202
07 Izolatka
08 Izba przejściowa
09 Izba przejściowa
06 Szpitalik
H=270cm
Hp=104cm
147
143
147
143
147
143
174
163
Hp=104cm
174
163
Hp=104cm
174
163
Hp=104cm
147
143
SIATKA
Hp=78cm
Hp=78cm
Hp=78cm
10 Biblioteka
H=265cm
90
200
88
200
H=265cm
Nr. pom.
01
02
03
04
05
06
07
08
09
10
Nazwa pomieszczenia
Izba nowo przyjętych
Dyżurka strażników
Łazienka przy izbach przejściowych
Szpitalik zakaźny
Gabinet wychowawcy
Szpitalik
Izolatka
Izba przejściowa
Izba przejściowa
Biblioteka
LEGENDA:
ściany istniejące
zamurownia
wyburzenia
obudowa rur c.o do pelnej wysokości
lokalizacja ułożenia nowej glazury, terakoty
ścianka szklana aluminiowa
ścianka z ogrzewaniem
01 Izba nowo przyjętych:
-wymiana parapetu
-wymiana okna(szyba bezpieczna -uchylna)
-zabudowanie pionów c.o
-tynkowanie
-malowanie
-wymiana oświetlenia w syficie(lampy led)
02 Dyżurka strażników:
-panele do wymiany na AC5
-cekol
-malowanie
-wyburzenie magazynku
-demontaż, montaż umywalki
-przełożenie okablowania kamer
03 Łazienka przy izbach przejściowych:
-ścianka murowana +glazura
-montaż osłony pisuaru
-wymiana kratki wentylacyjnej
-wymiana umywalek, pisuaru, brodzika, wc
-wymiana terakoty ok1,0x1,0m
04 Szpitalik zakaźny
-przesunąć drzwi do sanitariatów
-wyburzenie ścianki działowej
-zbudowanie ścianki szklanej aluminiowej
-zamurowanie otworu drzwiowego
-wymiana armatury(umywalka x2,natrysk, pisuar, wc)
-wymiana szyby w oknie na matową
-zabudowanie pionów c.o z pustaka gr.6cm
-tynkowanie
-wymiana glazury i terakoty(przedsionek + łazienka)
-malowanie
-wymiana kratki spływowej
-wymiana kratki wentylacyjnej
05 Gabinet wychowawcy:
-panele do wymiany na AC5
-cekol
-malowanie
-wymiana kratki wentylacyjnej
-montaz umywalki+dopływy
-licowanie ściany-glazura wys.2,0m, montaż lustra
-położenie terakoty1,0x1,0m
06 Szpitalik:
-podloga do wymiany(terakota)
-zlikwidować kratkę ściekową
-obudowa pionów
-tynkowanie
-malowanie
-wymiana grzejnika na większy
-demontaż glazury na dł.120cm
07 Izolatka:
-obudowa pionów
-oświetlenie wandaloodporne(lampy led w suficie)
-ogrzewanie ścienne-montaż
-demontaż grzejnika
-wymiana okna(szyba antywłamaniowa)
-przygotowanie ściany do obicia
-wykonanie podłogi-wykladzina dywanowa beżowa
-wymiana kratki wentylacyjnej(specjalnie bezpieczna)
-malowanie
08 Izba przejściowa:
-obudowa pionów
-usunięcie kraty
-oświetlenie wandaloodporne(lampy led w suficie)
-ogrzewanie ścienne-montaż
-tynkowanie
-malowanie
-demontaż grzejnika
-wymiana okna(szyba antywłamaniowa)
-wykonanie podłogi-wykładzina podłogowa beżowa
-wymiana kratki wentylacyjnej(specjalnie bezpieczna)
-malowanie
09 Izba przejściowa:
-obudowa pionów
-usunięcie kraty
-oświetlenie wandaloodporne(lampy led w suficie)
-ogrzewanie ścienne-montaż
-tynkowanie
-malowanie
-demontaż grzejnika
-wymiana okna(szyba antywłamaniowa)
-wykonanie podłogi-wykładzina podłogowa beżowa
-wymiana kratki wentylacyjnej(specjalnie bezpieczna)
-malowanie
10 Biblioteka:
-rozebranie ścianki działowej
-rozebranie paneli i listew przyściennych
-demontaż drzwi
-zamurowanie otworu okiennego
-wymiana drzwi istn. na aluminiowe
-montaż paneli podłogowych AC5
-położenie terakoty i glazury
-tynkowanie
-malowanie
-montaż umywalki
Branża
FIRMA PROJEKTOWO-BUDOWLANA
Architektura
Mróz
Faza P.T. Skala 1:50 Ireneusz
07 - 415 Olszewo-Borki
czerwiec 2015
Data
Grabowo, ul. Ks. J. Popiełuszki 32
Inwestor
Zakład poprawczy i schronisko dla nieletnich w Laskowcu
Adres bud. Laskowiec ul. Mazurska 28, 07-401 Ostrołęka 3
Nazwa
REMONT POMIESZCZEŃ ZAKŁADU POPRAWCZEGO I
projektu
SCHRONISKA DLA NIELETNICH
Nazwa
rysunku
RZUT PRZYZIEMIA-schemat prac remontowych
Zespół autorski:
Projektant
mgr. inż.Ireneusz Mróz
Nr upr.bud.MAZ/0103/PWOK/08
Specjalność: konstrukcyjno-budowlana
Rys. nr
A-01